Fnaim.fr
Menu

Achat Maison 7 pièces 142m² CHERBOURG-EN-COTENTIN 50100

368 000 Honoraires charge acquéreur inclus : 5.1% TTC (349085 € hors honoraires)

5 chambres

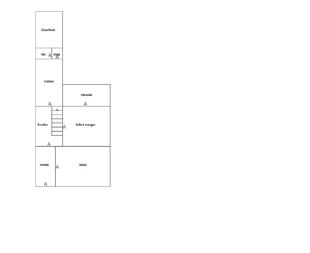
Description du bien

Belle maison de ville ayant conservé le caractère de l'ancien.
4 ou 5 chambres. Possibilité d'une 2ème salle d'eau.
54 m2 de pièces de vie avec une cuisine séparée. Arrière cuisine.
A proximité immédiate des écoles.
Les informations sur lesquels ce bien est exposé, sont disponibles sur le site www.georisques.gouv.fr
Estimation des coûts annuels : entre 1 850 EUR et 2 550 EUR par an
Prix moyens des énergies indexés sur les années 2021,2022 et 2023

Etat des risques et pollutions

Les informations sur les risques auxquels ce bien est exposé sont disponibles sur le site Géorisques : www.georisques.gouv.fr.

Caractéristiques du bien

Composition du bien

  • Type d'habitation : Maison
  • Nombre de chambres : 5
  • Nombre de salles de bain : 1
  • Cuisine : Type de cuisine Non communique

Aménagement du bien

  • Cave : Non
  • Garage / Parking : Non
    • Surface habitable : 142 m²

    Localisation du bien

    CHERBOURG-EN-COTENTIN (50100) , MANCHE (50) - NORMANDIE

    Ce bien n'est pas géolocalisé, pour connaitre sa géolocalisation, merci de contacter l'agence.

    Consommation énergétique

    • C (145 kWh/m² an)
      D (31 kgCO2/m².an)
      Plus d'info
      145
      31
      31
    • DPE réalisé après le 1er juillet 2021.
    • Entre 1850 € TTC / an et 2550 € TTC / an
      01/01/2000

    Nos professionnels vous accompagnent

    Contactez notre agence !

    12 RUE FRANCOIS LAVIEILLE 50130 CHERBOURG OCTEVILLE

    Appeler l’agence Tél : 02 33 10 12 10

    * Champs obligatoires

    Nous vous informons de l’existence de la liste d’opposition au démarchage téléphonique « BLOCTEL » sur laquelle vous pouvez vous inscrire (https://www.bloctel.gouv.fr).

    En complétant le formulaire «CONTACTEZ NOTRE AGENCE », je reconnais expressément que je consens au traitement de mes données personnelles et que je dispose du droit de retirer mon consentement à tout moment en m'adressant à support@fnaim.fr.
    En savoir plus sur la gestion de vos données et droits : consulter nos mentions légales, « article 5/ Données à caractère personnel ».

    En envoyant ce message, vous acceptez les conditions d'utilisation du site. Plus d'infos