Fnaim.fr
Menu

Exclusivité
Réf. 6149

Achat Maison 5 pièces 86m² JOEUF 54240

115 000 Honoraires charge vendeur

3 chambres Jardin Parking / Garage

Description du bien

En exclusivité Bon'Appart :
Anthony vous propose de découvrir cette maison familiale composée au rez-de-chaussée d'une cuisine fermée, et d'un salon/séjour lumineux avec accès à la terrasse.
Toilettes séparées à ce niveau.
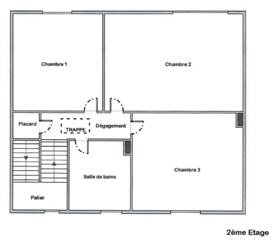
À l'étage, vous trouverez 3 chambres ainsi qu'une salle d'eau avec WC, et une trappe pour accéder au grenier isolé.
Le sous-sol, lui aussi isolé, se compose d'un espace buanderie, cave, atelier et d'un garage, pratique pour le stockage, atelier et stationnement.
Chauffage gaz, structure saine
Travaux à prévoir : remise aux normes électrique, rafraîchissement général, fenêtres double vitrage bois à moderniser.

Etat des risques et pollutions

Les informations sur les risques auxquels ce bien est exposé sont disponibles sur le site Géorisques : www.georisques.gouv.fr.

Caractéristiques du bien

Composition du bien

  • Type d'habitation : Maison
  • Nombre de chambres : 3
  • Cuisine : Type de cuisine Non communique

Aménagement du bien

  • Cave : Non
  • Garage / Parking : Oui
    • Surface habitable : 86 m²
    • Parking : Oui

    Localisation du bien

    JOEUF (54240) , MEURTHE-ET-MOSELLE (54) - GRAND-EST

    Ce bien n'est pas géolocalisé, pour connaitre sa géolocalisation, merci de contacter l'agence.

    Consommation énergétique

    • F (330 kWh/m² an)
      F (72 kgCO2/m².an)
      Plus d'info
      330
      72
      72
    • DPE réalisé après le 1er juillet 2021.
    • Entre 2450 € TTC / an et 3370 € TTC / an
      01/01/2023

    Nos professionnels vous accompagnent

    Contactez notre agence !

    75 Rue DE FRANCHEPRE 54240 JOEUF

    Appeler l’agence Tél : 03 82 22 22 22

    * Champs obligatoires

    Nous vous informons de l’existence de la liste d’opposition au démarchage téléphonique « BLOCTEL » sur laquelle vous pouvez vous inscrire (https://www.bloctel.gouv.fr).

    En complétant le formulaire «CONTACTEZ NOTRE AGENCE », je reconnais expressément que je consens au traitement de mes données personnelles et que je dispose du droit de retirer mon consentement à tout moment en m'adressant à support@fnaim.fr.
    En savoir plus sur la gestion de vos données et droits : consulter nos mentions légales, « article 5/ Données à caractère personnel ».

    En envoyant ce message, vous acceptez les conditions d'utilisation du site. Plus d'infos