Fnaim.fr
Menu

Acheter

Réf. SBV0008R3-LBC44

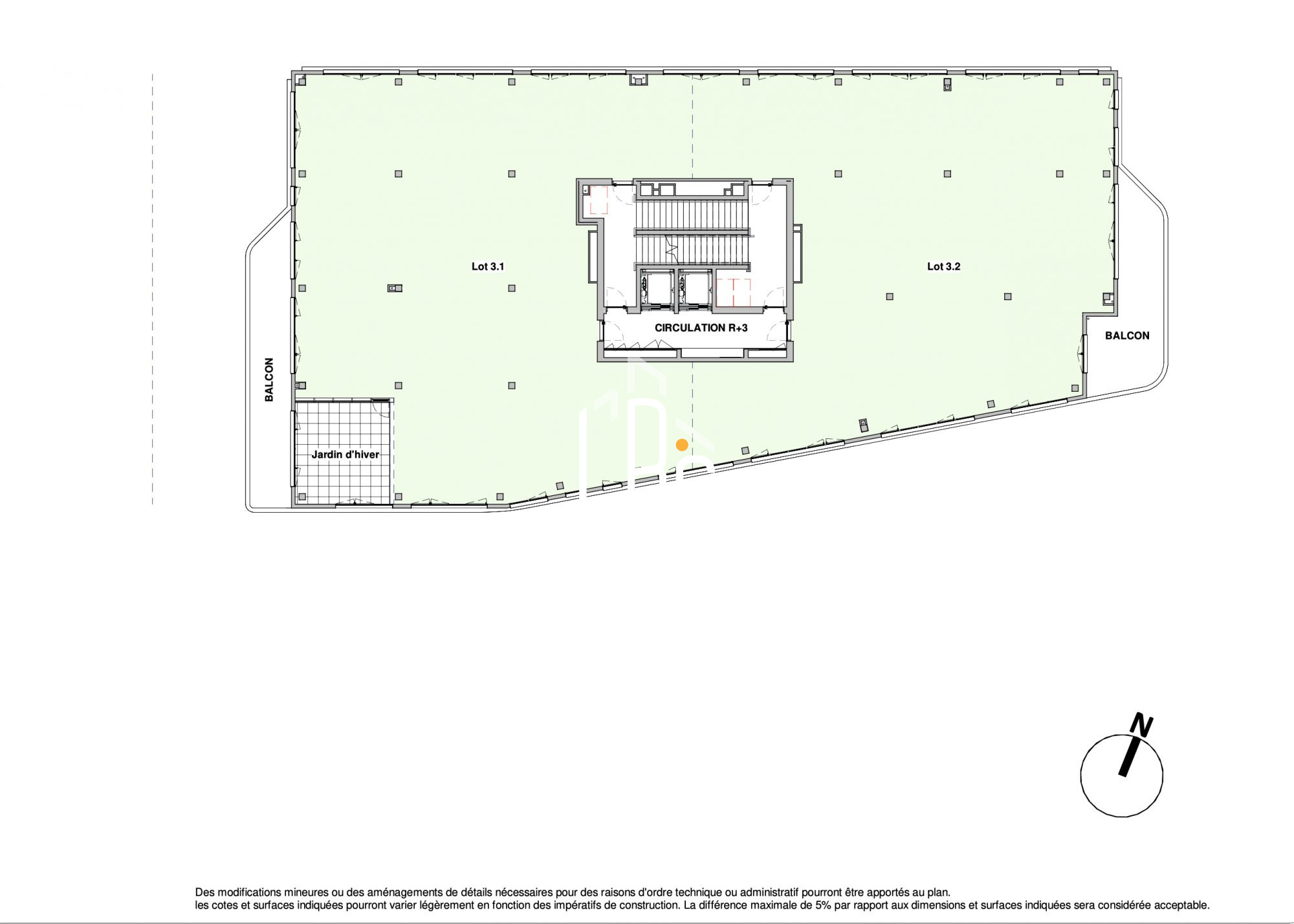
Achat Local Professionnel 669m² STE LUCE SUR LOIRE 44980

1 883 565 Honoraires charge acquéreur inclus : 3% TTC (1828703 € hors honoraires)

Description du bien

Au (R+3) de l'immeuble, deux plateaux de bureaux lumineux et spacieux d'une surface totale d'environ 670 m², situés rue Jules Verne à Sainte-Luce-sur-Loire, à proximité immédiate de toutes les commodités : commerces de détail, restaurants, services, pharmacie...
L'accès est facilité par la proximité de l'autoroute A811 (à 8 kms) et de la gare de Nantes (à 8 kms également). Le centre commercial Leclerc Paridis, avec ses nombreux commerces, se trouve à seulement 3 kms. Le site est desservi par les transports en commun de NANTES Métropole (NAOLIB ligne Chrono bus C7, arrêt 'La grille').
- Plateau de bureaux livré brut non cloisonné de 670 m2 environ, divisible en 2 plateaux (320 m2 et 297 m2), et 52 m² environ de parties communes.
- 16 places de stationnement en sous-sol.
- 2 balcons privative de 26 m2 environ
- 1 jardin d'hiver 21 m2 environ
- Accès sécurisé par visiophone/digicode
- Ascenseur
- Accès personnes à mobilité réduite (PMR)
Livraison début 2026.
Vous pouvez nous joindre au 02 55 07 86 35 Sonia Bernoville

Honoraires inclus de 3% HT à la charge de l'acquéreur. Prix hors honoraires 1 828 704 ? HT. Non soumis au DPE. Les informations sur les risques auxquels ce bien est exposé sont disponibles sur le site Géorisques : georisques.gouv.fr.

Votre conseiller Locaux Bureaux Commerces : Sonia BERNOVILLE
Agent commercial (Entreprise individuelle)
RSAC ADC 4401 2025 000 000 874
RCP RCACO-24-028977 GALIAN SMA BTP.
LOCAUX-BUREAUX-COMMERCES 02 55 07 86 35

Etat des risques et pollutions

Les informations sur les risques auxquels ce bien est exposé sont disponibles sur le site Géorisques : www.georisques.gouv.fr.

Caractéristiques du bien

Composition du bien

  • Surface totale : 669 m²
  • Surface utile : 670 m²

Consommation énergétique

DPE non soumis
mention indiquée sous la responsabilité de l’agence immobilière

Nos professionnels vous accompagnent

Contactez notre agence !

2 rue Robert Schuman 44400 REZE

Appeler l’agence Tél : 0255078635

* Champs obligatoires

Nous vous informons de l’existence de la liste d’opposition au démarchage téléphonique « BLOCTEL » sur laquelle vous pouvez vous inscrire (https://www.bloctel.gouv.fr).

En complétant le formulaire «CONTACTEZ NOTRE AGENCE », je reconnais expressément que je consens au traitement de mes données personnelles et que je dispose du droit de retirer mon consentement à tout moment en m'adressant à support@fnaim.fr.
En savoir plus sur la gestion de vos données et droits : consulter nos mentions légales, « article 5/ Données à caractère personnel ».

En envoyant ce message, vous acceptez les conditions d'utilisation du site. Plus d'infos