Fnaim.fr
Menu

Réf. LMV0002A-LBC44

Achat Local commercial 218m² LE BIGNON 44140

349 912 Honoraires charge acquéreur inclus : 5% TTC (332416 € hors honoraires)

Description du bien

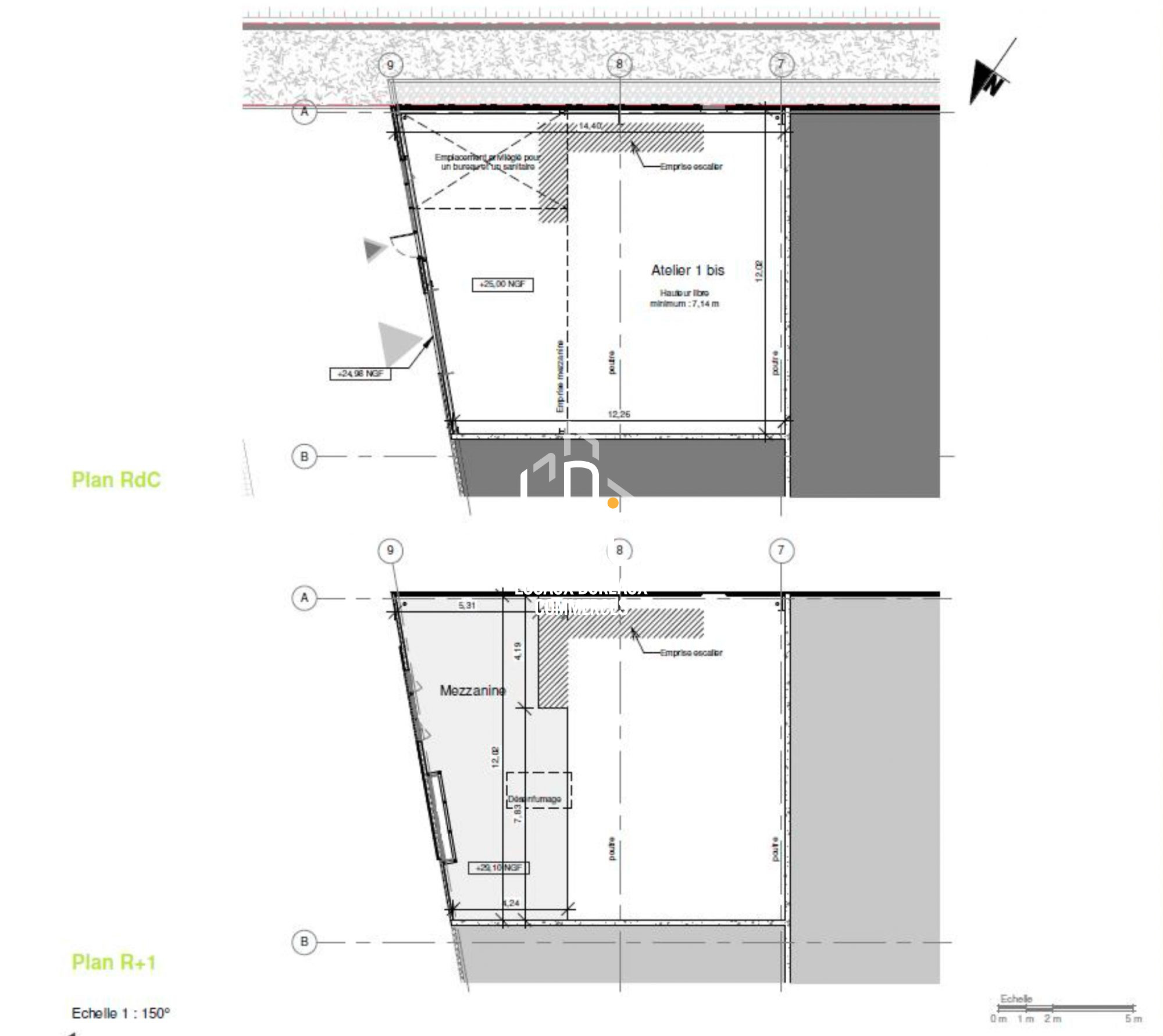
Village d'entreprises LE BIGNON, au Sud de Nantes :
Local d'activité neuf d'environ 217,90 m² comprenant une surface de stockage de 160,20 m² et une mezzanine de 57,70 m² en plancher collaborant, pouvant supporter une charge de 250kg/m² (escalier et garde-corps non compris) et disposant de 3 stationnements privatifs.
Livré brut de béton, le local est équipé d'huisseries et d'une porte sectionnelle de 3,43 X 3 mètres. Le raccordement électrique, incluant un compteur, des prises électriques, et un éclairage LED, est en place. Les fluides en attente sont prêts à être connectés.
La hauteur libre sous charpente est de 7,11 m en bas de pente et de 7,54 m au point haut, offrant ainsi un environnement spacieux et modulables selon vos besoins.
Le site sera équipé de clôtures rigides et d'un portail coulissant motorisé. Les parkings seront précâblés pour l'installation de bornes électriques.
Conforme aux normes RT2020, garantissant une performance énergétique optimale, cet espace est idéal pour les entreprises qui recherchent un environnement spacieux, modulable et performant. Il est situé dans un environnement dynamique et accessible, à proximité de Nantes et des grands axes routiers.
Prix de vente HT : 333 250 ? + Honoraires charge acquéreur 5 % HT du prix de vente + TVA 20%.
Pour plus d'informations contactez-nous au 02 55 07 86 35

Honoraires inclus de 5% HT à la charge de l'acquéreur. Prix hors honoraires 333 250 ? HT. Non soumis au DPE. Les informations sur les risques auxquels ce bien est exposé sont disponibles sur le site Géorisques : georisques.gouv.fr.
.
LOCAUX-BUREAUX-COMMERCES 02 55 07 86 35

Etat des risques et pollutions

Les informations sur les risques auxquels ce bien est exposé sont disponibles sur le site Géorisques : www.georisques.gouv.fr.

Caractéristiques du bien

Composition du bien

  • Surface totale : 218 m²

Consommation énergétique

DPE non soumis
mention indiquée sous la responsabilité de l’agence immobilière

Nos professionnels vous accompagnent

Contactez notre agence !

2 rue Robert Schuman 44400 REZE

Appeler l’agence Tél : 0255078635

* Champs obligatoires

Nous vous informons de l’existence de la liste d’opposition au démarchage téléphonique « BLOCTEL » sur laquelle vous pouvez vous inscrire (https://www.bloctel.gouv.fr).

En complétant le formulaire «CONTACTEZ NOTRE AGENCE », je reconnais expressément que je consens au traitement de mes données personnelles et que je dispose du droit de retirer mon consentement à tout moment en m'adressant à support@fnaim.fr.
En savoir plus sur la gestion de vos données et droits : consulter nos mentions légales, « article 5/ Données à caractère personnel ».

En envoyant ce message, vous acceptez les conditions d'utilisation du site. Plus d'infos