Fnaim.fr
Menu

Appartement 3 pièces 67m² GILETTE 06830 GILETTE
Réf. 424405YANB

Achat Appartement 3 pièces 67m² GILETTE 06830

350 000 Honoraires charge vendeur

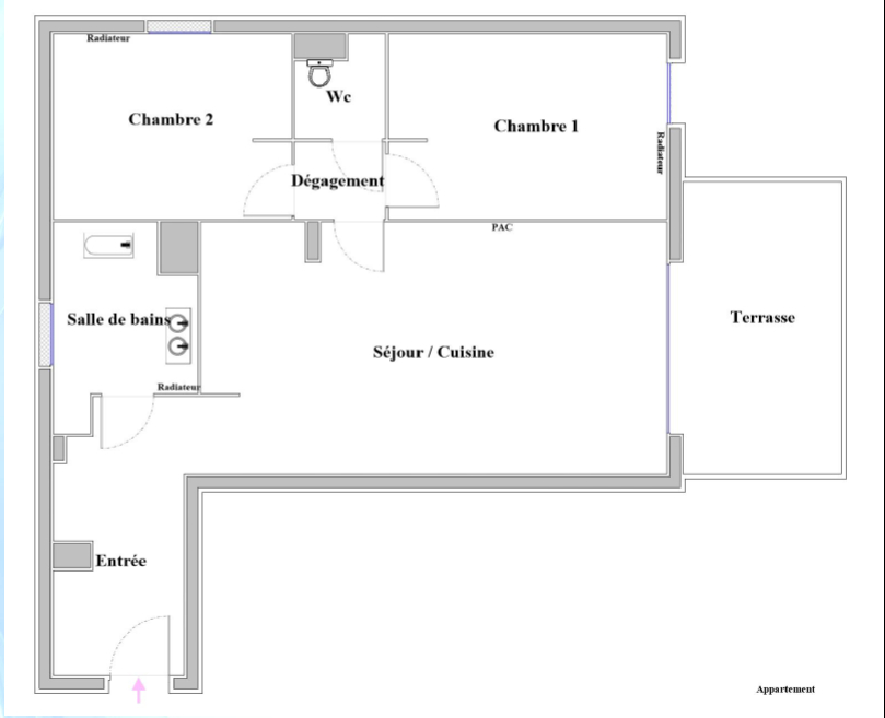
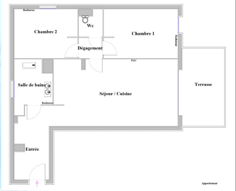
2 chambres

Description du bien

La Résidence HARMONIA, est une résidence innovante et durable qui se positionne comme une nouvelle alternative à l'habitat.
Engagée dans une démarche de qualité environnementale, Harmonia
bénéficie du référentiel ÉCOVALLÉE QUALITÉ, label qui garantit un niveau exigeant de performance environnementale.

Ici un magnifique T3 neuf de 67 m² habitable, une terrasse 10 m² et un double stationnement en enfilade, disponible immédiatement.

Prix : 350 000euros FAI, honoraires à charge vendeur.
DPE : A / GES : A
Montant estimé des dépenses annuelles d'énergie pour un usage standard entre 350 euros et 520 euros indexées aux années 2021, 2022 et 2023.
Pour visiter et vous accompagner dans votre projet, contactez Yannick BLANC, au 06 51 96 69 14 ou, par courriel à ya.blanc@proprietes-privees.com. Selon l'article L.561.5 du Code Monétaire et Financier, pour l'organisation de la visite, la présentation d'une pièce d'identité vous sera demandée. Cette annonce a été rédigée sous la responsabilité éditoriale de Yannick BLANC agissant sous le statut d'agent commercial immatriculé au RSAC ANTIBES 493615611 auprès de SAS PROPRIETES PRIVEES, au capital de 44 920 euros, ZAC LE CHÊNE FERRÉ - 44 ALLÉE DES CINQ CONTINENTS 44120 VERTOU ; SIRET 487 624 777 00040, RCS Nantes. Carte Professionnelle Transactions sur immeubles et fonds de commerce (T) et Gestion immobilière (G) n°CPI 4401 2016 000 010 388 délivrée par la CCI Nantes - Saint Nazaire. Compte séquestre n°30932508467 BPA SAINT-SEBASTIEN-SUR-LOIRE (44230). Garantie GALIAN-SMABTP - 89 rue de la Boétie, 75008 Paris - n°28137 J pour 2 000 000 euros pour T et 120 000 euros pour G. Assurance responsabilité civile professionnelle par GALIAN-SMABTP n° de police 28137.J
Mandat réf : 424405 - Le professionnel garantit et sécurise votre projet immobilier.

Yannick BLANC (EI) Agent Commercial - Numéro RSAC : ANTIBES 493615611 - .
Les informations sur les risques auxquels ce bien est exposé sont disponibles sur le site Géorisques : www. georisques. gouv. fr
Référence annonce : 424405YANB
Date de réalisation du diagnostic : 17/01/2025

Yannick BLANC (EI) Agent Commercial - Numéro RSAC : ANTIBES 493615611 - .

Etat des risques et pollutions

Les informations sur les risques auxquels ce bien est exposé sont disponibles sur le site Géorisques : www.georisques.gouv.fr.

Caractéristiques du bien

Composition du bien

  • Type d'habitation : Appartement
  • Cuisine : Simple
  • Nombre de pièce(s) : 3
  • Nombre de chambre(s) : 2

Aménagement du bien

Extérieur

  • Terrasse : Non
  • Balcon : Non

Partie Commune

  • Ascenseur : Non
  • Surface habitable : 67 m²

Localisation du bien

GILETTE (06830) , ALPES-MARITIMES (06) - PROVENCE-ALPES-COTE-D-AZUR

Ce bien n'est pas géolocalisé, pour connaitre sa géolocalisation, merci de contacter l'agence.

Consommation énergétique

  • A (49 kWh/m² an)
    A (1 kgCO2/m².an)
    Plus d'info
    49
    1
    1
  • DPE réalisé après le 1er juillet 2021.
  • Entre 350 € TTC / an et 520 € TTC / an
    Non communiqué

Nos professionnels vous accompagnent

Contactez notre agence !

44 Allée des Cinq Continents. ZAC Le Chêne Ferré 44120 VERTOU

Appeler l’agence Tél : 06 51 96 69 14

* Champs obligatoires

Nous vous informons de l’existence de la liste d’opposition au démarchage téléphonique « BLOCTEL » sur laquelle vous pouvez vous inscrire (https://www.bloctel.gouv.fr).

En complétant le formulaire «CONTACTEZ NOTRE AGENCE », je reconnais expressément que je consens au traitement de mes données personnelles et que je dispose du droit de retirer mon consentement à tout moment en m'adressant à support@fnaim.fr.
En savoir plus sur la gestion de vos données et droits : consulter nos mentions légales, « article 5/ Données à caractère personnel ».

En envoyant ce message, vous acceptez les conditions d'utilisation du site. Plus d'infos