Fnaim.fr
Menu

Appartement 3 pièces 61m² GRASSE 06130 GRASSE
Réf. 423789YANB

Achat Appartement 3 pièces 61m² GRASSE 06130

300 000 Honoraires charge vendeur

2 chambres

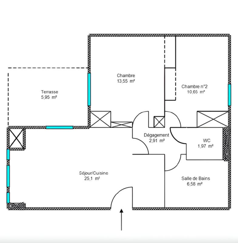
Description du bien

Superbe appartement T3 situé au 2ème étage, dans une copropriété de standing à la façade historique classée.

Surface habitable 61 m2.
Terrasse d'une surface de 6 m2 avec une très belle vue dégagée, aucun vis à vis.

L'appartement se compose comme suit :

Niveau inférieur (R+2)
Vaste entrée avec placard
Deux chambres avec placards aménagés, deux chambres disposent d'un petit balcon exposé Sud.
Une grande salle de bain avec WC

Spacieux séjour avec cuisine ouverte aménagée et équipée.

La copropriété dispose d'un agréable jardin privatif commun à la copropriété.

Vous avez la possibilité d'acquérir en supplément, un ou deux garage.

Charges de copropriété : 250 euros par mois comprenant les charges communes, location compteurs d'eau froide et consommation annuelle d'eau froide).

Chauffage et eau chaude sanitaire : individuels

Prix : 300 000 euros FAI, honoraires à charge vendeur.
DPE : D / GES : B
Montant estimé des dépenses annuelles d'énergie pour un usage standard entre 1 153 euros et 1 159 euros indexées aux années 2021, 2022 et 2023.
Pour visiter et vous accompagner dans votre projet, contactez Yannick BLANC, au 06 51 96 69 14 ou, par courriel à ya.blanc@proprietes-privees.com. Selon l'article L.561.5 du Code Monétaire et Financier, pour l'organisation de la visite, la présentation d'une pièce d'identité vous sera demandée. Cette annonce a été rédigée sous la responsabilité éditoriale de Yannick BLANC agissant sous le statut d'agent commercial immatriculé au RSAC ANTIBES 493615611 auprès de SAS PROPRIETES PRIVEES, au capital de 44 920 euros, ZAC LE CHÊNE FERRÉ - 44 ALLÉE DES CINQ CONTINENTS 44120 VERTOU ; SIRET 487 624 777 00040, RCS Nantes. Carte Professionnelle Transactions sur immeubles et fonds de commerce (T) et Gestion immobilière (G) n°CPI 4401 2016 000 010 388 délivrée par la CCI Nantes - Saint Nazaire. Compte séquestre n°30932508467 BPA SAINT-SEBASTIEN-SUR-LOIRE (44230). Garantie GALIAN-SMABTP - 89 rue de la Boétie, 75008 Paris - n°28137 J pour 2 000 000 euros pour T et 120 000 euros pour G. Assurance responsabilité civile professionnelle par GALIAN-SMABTP n° de police 28137.J
Mandat réf : 423789 - Le professionnel garantit et sécurise votre projet immobilier.

Yannick BLANC (EI) Agent Commercial - Numéro RSAC : ANTIBES 493615611 - .
Les informations sur les risques auxquels ce bien est exposé sont disponibles sur le site Géorisques : www. georisques. gouv. fr
Référence annonce : 423789YANB
Date de réalisation du diagnostic : 11/08/2025

Yannick BLANC (EI) Agent Commercial - Numéro RSAC : ANTIBES 493615611 - .

Etat des risques et pollutions

Les informations sur les risques auxquels ce bien est exposé sont disponibles sur le site Géorisques : www.georisques.gouv.fr.

Caractéristiques du bien

Composition du bien

  • Type d'habitation : Appartement
  • Cuisine : Simple
  • Nombre de pièce(s) : 3
  • Nombre de chambre(s) : 2

Aménagement du bien

Extérieur

  • Terrasse : Non
  • Balcon : Non

Partie Commune

  • Ascenseur : Non
  • Surface habitable : 61 m²

Localisation du bien

GRASSE (06130) , ALPES-MARITIMES (06) - PROVENCE-ALPES-COTE-D-AZUR

Ce bien n'est pas géolocalisé, pour connaitre sa géolocalisation, merci de contacter l'agence.

Consommation énergétique

  • D (237 kWh/m² an)
    B (7 kgCO2/m².an)
    Plus d'info
    237
    7
    7
  • DPE réalisé après le 1er juillet 2021.
  • Entre 1153 € TTC / an et 1559 € TTC / an
    Non communiqué

Nos professionnels vous accompagnent

Contactez notre agence !

44 Allée des Cinq Continents. ZAC Le Chêne Ferré 44120 VERTOU

Appeler l’agence Tél : 06 51 96 69 14

* Champs obligatoires

Nous vous informons de l’existence de la liste d’opposition au démarchage téléphonique « BLOCTEL » sur laquelle vous pouvez vous inscrire (https://www.bloctel.gouv.fr).

En complétant le formulaire «CONTACTEZ NOTRE AGENCE », je reconnais expressément que je consens au traitement de mes données personnelles et que je dispose du droit de retirer mon consentement à tout moment en m'adressant à support@fnaim.fr.
En savoir plus sur la gestion de vos données et droits : consulter nos mentions légales, « article 5/ Données à caractère personnel ».

En envoyant ce message, vous acceptez les conditions d'utilisation du site. Plus d'infos