Achat Appartement 1 pièce 25m² AIX EN PROVENCE 13100
159 000 € Honoraires charge acquéreur inclus : 6% TTC (150000 € hors honoraires)
Balcon
                        
            
                                 LES ANNONCES
                            
        
        
                
            Acheter
                            
        
                
            
                                LES ANNONCES
                            
        
        
                
            Acheter
        
    
Balcon
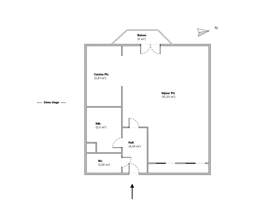
 CHEMIN DU BELVEDERE - AIX SUD - Idéalement située au deuxième étage d'un bel immeuble des années 1980, élégant appartement de 25,28 m2 loi Carrez. Chaleureux et confortable, cet appartement se compose d'une pièce principale avec rangements et coin cuisine équipé, d'une salle de bains ainsi qu'un WC séparé. Un balcon de 2m2 offrant une vue dégagée. Une cave privative. Endroit clair, calme et très agréable. Idéal premier achat ou investissement. Copropriété de 17 lots habitation.
 Contactez-nous dès maintenant pour programmer une visite !