Fnaim.fr
Menu

Acheter

Réf. LR2510038-LEBECIMMO

Achat Local commercial 52m² LORIENT 56100

231 000 Honoraires charge acquéreur inclus : 5% TTC (220000 € hors honoraires)

Description du bien

Ce bien vous est présenté par LE BEC Immobilier !

Situé en plein centre-ville de Lorient, au coeur d'une rue commerçante attractive et recherchée. Ce local commercial offre un emplacement de premier ordre et présente un fort potentiel d'évolution.
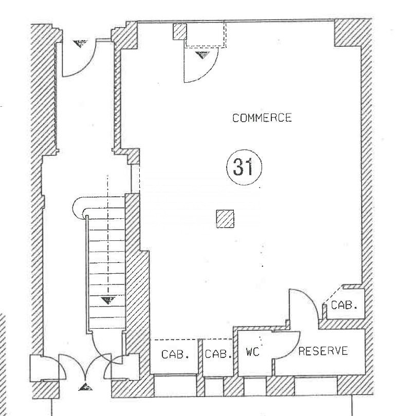
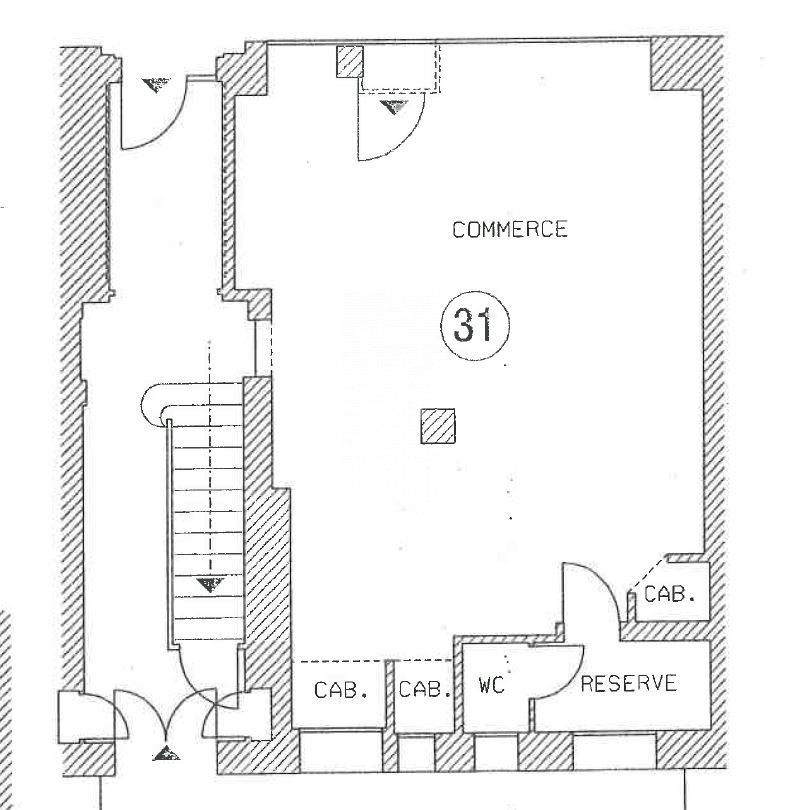
D'une superficie de 52 m² de plain-pied, il bénéficie d'une cour privative à l'arrière d'environ 80 m² constructible, permettant un agrandissement possible et la multiplication par deux de la surface existante.
Deux caves en sous-sol et un accès à une cour commune facilitant le stationnement.
Atouts : Local actuellement loué, garantissant une rentabilité immédiate, emplacement central dans une rue à fort passage, potentiel de valorisation important grâce à la cour constructible, bien entretenu et fonctionnel.

Les points forts :
- Situation
- Locataire en place
- Potentiel
- Revenus immédiats
-Possibilité extension de surface

RÉFÉRENCE : LR2510038

CONTACTEZ-NOUS au 02.97.76.02.04

Honoraires inclus de 5% à la charge de l'acquéreur. Prix hors honoraires 220 000 ?. Dans une copropriété de 13 lots. Aucune procédure n'est en cours. Non soumis au DPE. Les informations sur les risques auxquels ce bien est exposé sont disponibles sur le site Géorisques : georisques.gouv.fr.

Etat des risques et pollutions

Les informations sur les risques auxquels ce bien est exposé sont disponibles sur le site Géorisques : www.georisques.gouv.fr.

Caractéristiques du bien

Composition du bien

  • Surface totale : 52 m²

Informations sur la copropriété

  • Bien soumis au statut de la copropriété
  • Nombre de lots : 13
  • Procédure en cours : Non

Consommation énergétique

DPE non soumis
mention indiquée sous la responsabilité de l’agence immobilière

Nos professionnels vous accompagnent

Contactez notre agence !

197 RUE JEAN JAURES 56600 LANESTER

Appeler l’agence Tél : 0297760204

* Champs obligatoires

Nous vous informons de l’existence de la liste d’opposition au démarchage téléphonique « BLOCTEL » sur laquelle vous pouvez vous inscrire (https://www.bloctel.gouv.fr).

En complétant le formulaire «CONTACTEZ NOTRE AGENCE », je reconnais expressément que je consens au traitement de mes données personnelles et que je dispose du droit de retirer mon consentement à tout moment en m'adressant à support@fnaim.fr.
En savoir plus sur la gestion de vos données et droits : consulter nos mentions légales, « article 5/ Données à caractère personnel ».

En envoyant ce message, vous acceptez les conditions d'utilisation du site. Plus d'infos