Fnaim.fr
Menu

Acheter

Achat Terrain 661m² SEVRIER 74320

535 000 Honoraires charge acquéreur inclus : 5,9% TTC (505002 € hors honoraires)

Description du bien

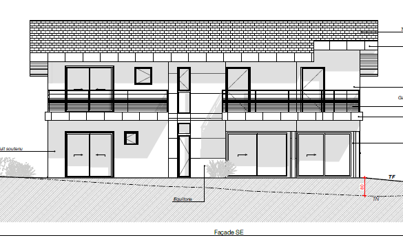
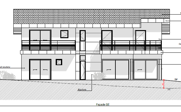
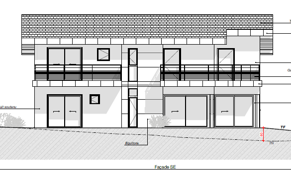
Terrain à 2 pas du lac, au calme - permis de construire accepté
Emplacement rare et privilégié à seulement quelques pas du lac, entre la piste cyclable et une charmante petite plage. Ce terrain libre de constructeur est situé dans un environnement calme et préservé.
Un permis de construire RE2020 conçu par un architecte a déjà été accordé et purgé de tout recours, avec l'aval des concessionnaires. Il propose une maison au design soigné, dont les plans intérieurs peuvent encore être adaptés selon vos besoins.
Caractéristiques du projet :


Surface habitable : 138,72 m2


Garage : 17,50 m2


3 places de stationnement


Terrain viabilisé en bordure


Étude de sol réalisée construction nécessitant des pieux


Possibilité d'accompagnement avec un constructeur local partenaire via un contrat CCMI (Contrat de Construction de Maison Individuelle).

Etat des risques et pollutions

Les informations sur les risques auxquels ce bien est exposé sont disponibles sur le site Géorisques : www.georisques.gouv.fr.

Caractéristiques du bien

Composition du bien

  • Type de bien : Terrain

Localisation du bien

SEVRIER (74320) , HAUTE-SAVOIE (74) - AUVERGNE-RHÔNE-ALPES

Ce bien n'est pas géolocalisé, pour connaitre sa géolocalisation, merci de contacter l'agence.

Nos professionnels vous accompagnent

Contactez notre agence !

283 Route de la Vieille Eglise 74410 ST JORIOZ

Appeler l’agence Tél : +33 6 61 93 33 85

* Champs obligatoires

Nous vous informons de l’existence de la liste d’opposition au démarchage téléphonique « BLOCTEL » sur laquelle vous pouvez vous inscrire (https://www.bloctel.gouv.fr).

En complétant le formulaire «CONTACTEZ NOTRE AGENCE », je reconnais expressément que je consens au traitement de mes données personnelles et que je dispose du droit de retirer mon consentement à tout moment en m'adressant à support@fnaim.fr.
En savoir plus sur la gestion de vos données et droits : consulter nos mentions légales, « article 5/ Données à caractère personnel ».

En envoyant ce message, vous acceptez les conditions d'utilisation du site. Plus d'infos