Fnaim.fr
Menu

Appartement 3 pièces 59m² TOULOUSE 31400 TOULOUSE
Réf. 31232103162

Achat Appartement 3 pièces 59m² TOULOUSE 31400

285 000 Honoraires charge vendeur

2 chambres Balcon Parking / Garage

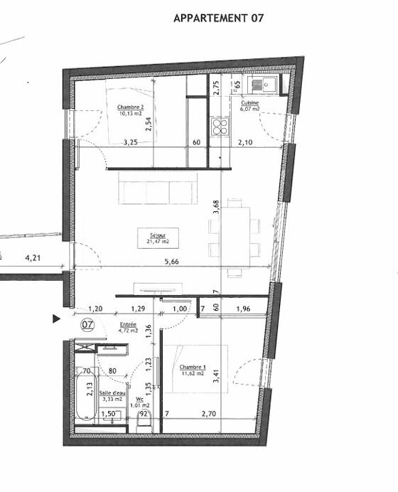
Description du bien

Située dans un quartier résidentiel calme et recherché à Pouvourville.
Cet appartement contemporain neuve offre un cadre de vie privilégié à seulement quelques minutes des commodités, des écoles, et des grands axes.

D'une surface habitable de plus de 58m2, il se compose d'une pièce de vie avec sa cuisine ouverte donnant sur un balcon, de deux chambres avec placards, d'une salle d'eau, Wc séparé, une cave et une place de parking sécurisée.

Prestations de qualité : Climatisation réversible, menuiseries en aluminium, carrelage grand format, volets roulants motorisés, normes RE2020.

Livraison prévue : 2026
Frais de notaire réduits - Garantie décennale - personnalisation possible selon l'avancée du projet
Contactez-nous dès maintenant pour en savoir plus, ou organiser une rencontre avec le constructeur.

Etat des risques et pollutions

Les informations sur les risques auxquels ce bien est exposé sont disponibles sur le site Géorisques : www.georisques.gouv.fr.

Caractéristiques du bien

Composition du bien

  • Type d'habitation : Appartement
  • Cuisine : Kitchenette
  • Nombre de pièce(s) : 3
  • Nombre de chambre(s) : 2

Aménagement du bien

Extérieur

  • Terrasse : Non
  • Balcon : Oui

Partie Commune

  • Ascenseur : Non
  • Surface habitable : 59 m²
  • Parking : Oui

Localisation du bien

TOULOUSE (31400) , HAUTE-GARONNE (31) - OCCITANIE

Ce bien n'est pas géolocalisé, pour connaitre sa géolocalisation, merci de contacter l'agence.

Consommation énergétique

DPE non soumis
mention indiquée sous la responsabilité de l’agence immobilière

Nos professionnels vous accompagnent

Contactez notre agence !

33 AVENUE TOLOSANE BP 42277 31520 RAMONVILLE ST AGNE

Appeler l’agence Tél : 0561286128

* Champs obligatoires

Nous vous informons de l’existence de la liste d’opposition au démarchage téléphonique « BLOCTEL » sur laquelle vous pouvez vous inscrire (https://www.bloctel.gouv.fr).

En complétant le formulaire «CONTACTEZ NOTRE AGENCE », je reconnais expressément que je consens au traitement de mes données personnelles et que je dispose du droit de retirer mon consentement à tout moment en m'adressant à support@fnaim.fr.
En savoir plus sur la gestion de vos données et droits : consulter nos mentions légales, « article 5/ Données à caractère personnel ».

En envoyant ce message, vous acceptez les conditions d'utilisation du site. Plus d'infos