Fnaim.fr
Menu

Acheter

Exclusivité
Réf. 19135MP

Achat Local commercial

299 500 Honoraires charge acquéreur inclus : 5,1% TTC (284993 € hors honoraires)

Description du bien


IMMO DE FRANCE OUEST VOUS PROPOSE EN EXCLUSIVITE :
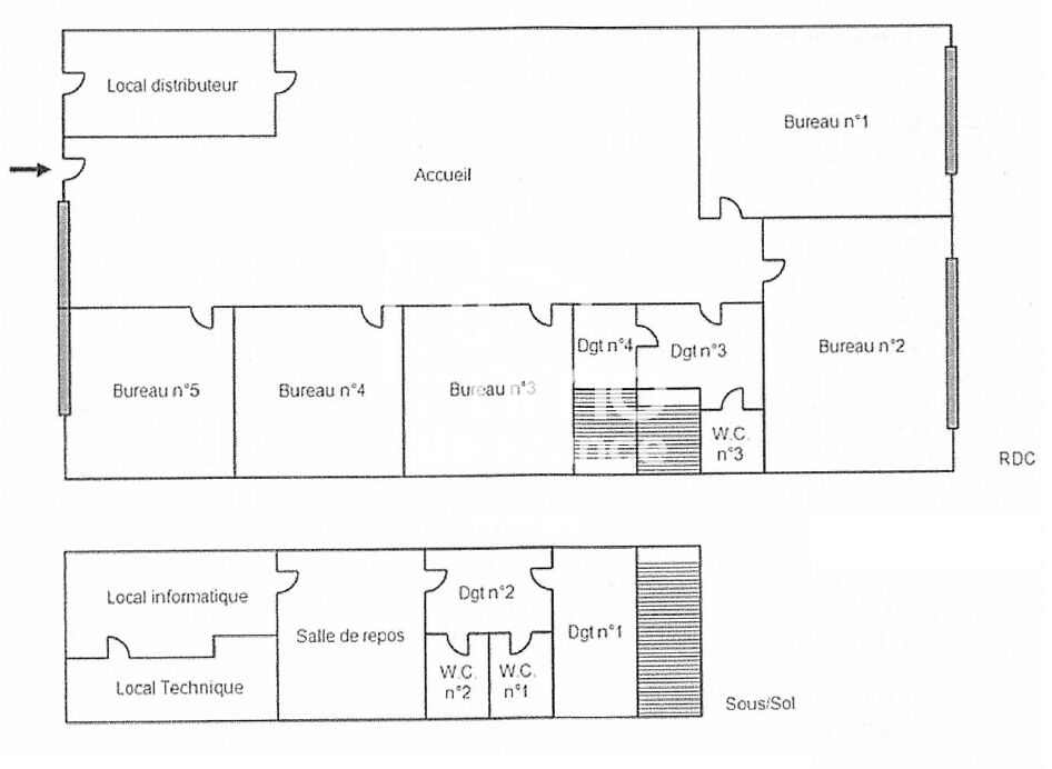
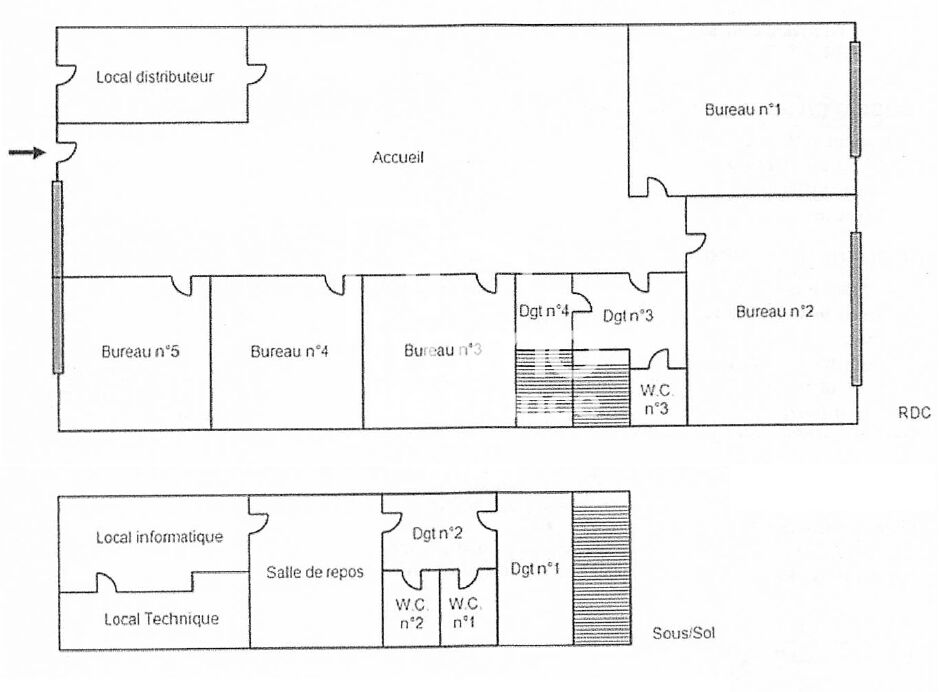
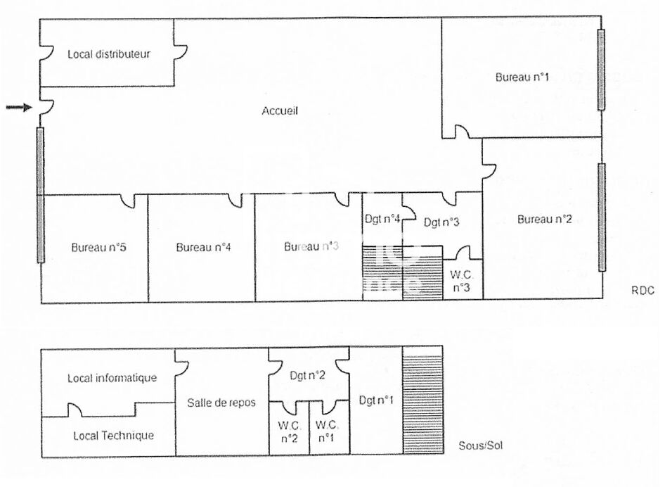
Situé dans le centre ville d'Angers, boulevard Saint Michel, au pied du tramway et des commerces, local commercial d'une superficie totale de 133 m², répartit sur deux niveaux :

- Rez-de-chaussée : vaste espace d'accueil de 45 m², 5 bureaux, wc et local.
- Sous-sol : dégagement, cuisine, local technique.
Excellent état général, vitrine en verre sécurité de 6m avec accès PMR.

Ce local commercial bénéficie d'un emplacement stratégique offrant visibilité et accessibilité. Ideal pour une activité de bureau commercial (assurance, architecte...) ou pour toute profession libérale.

Libre de locataire le 1er janvier 2026.

Etat des risques et pollutions

Les informations sur les risques auxquels ce bien est exposé sont disponibles sur le site Géorisques : www.georisques.gouv.fr.

Caractéristiques du bien

Composition du bien

Informations sur la copropriété

  • Bien soumis au statut de la copropriété
  • Nombre de lots : 649
  • Quote part charges courantes : 1907 €/an
  • Procédure en cours : Non

Consommation énergétique

  • G (541 kWh/m² an)
    C (15 kgCO2/m².an)
    Plus d'info
    541
    15
    15
  • DPE réalisé après le 1er juillet 2021.
  • Non communiqué
    Non communiqué
  • Logement à consommation énergétique excessive : classe G

Nos professionnels vous accompagnent

Contactez notre agence !

14-16 Place Pierre MENDES FRANCE 49100 ANGERS

Appeler l’agence Tél : 0256531628

* Champs obligatoires

Nous vous informons de l’existence de la liste d’opposition au démarchage téléphonique « BLOCTEL » sur laquelle vous pouvez vous inscrire (https://www.bloctel.gouv.fr).

En complétant le formulaire «CONTACTEZ NOTRE AGENCE », je reconnais expressément que je consens au traitement de mes données personnelles et que je dispose du droit de retirer mon consentement à tout moment en m'adressant à support@fnaim.fr.
En savoir plus sur la gestion de vos données et droits : consulter nos mentions légales, « article 5/ Données à caractère personnel ».

En envoyant ce message, vous acceptez les conditions d'utilisation du site. Plus d'infos