Fnaim.fr
Menu

Acheter

Exclusivité
Réf. 75811default

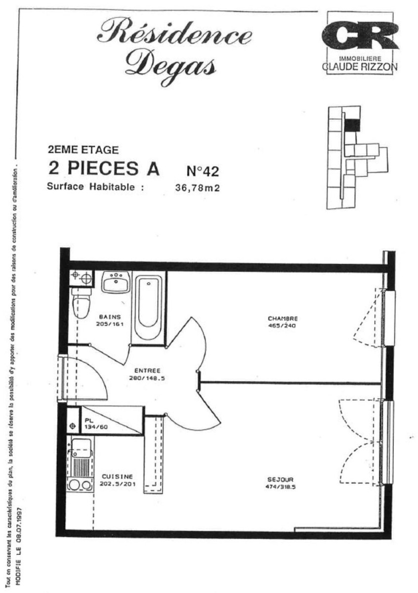
Achat Appartement 2 pièces 37m² VANDOEUVRE LES NANCY 54500

93 000 Honoraires charge vendeur

1 chambre Parking / Garage

Description du bien

L'IMMOBILIERE CLAUDE RIZZON 54 vous propose d'acquérir cet appartement de type 2 pièces A de 36 m2 situé dans une résidence calme et bien entretenue, à proximité de la fac de sciences, des écoles et facultés, de la ligne 1, des commerces et de toutes commodités.

Ce bien se compose d'une entrée avec placard, d'une kitchenette équipée dans la pièce de vie, d'une chambre et d'une salle de bains avec W.C.

Cet appartement est vendu avec un garage et une cave.

Actuellement loué 495 euros hors charges par mois depuis le 25/10/2024.

Ce logement est idéal pour un investisseur souhaitant se constituer un patrimoine de qualité.

N'hésitez pas à nous contacter afin de venir visiter cet agréable appartement en fonction de vos disponibilités.

Référence interne : #1248

Etat des risques et pollutions

Les informations sur les risques auxquels ce bien est exposé sont disponibles sur le site Géorisques : www.georisques.gouv.fr.

Caractéristiques du bien

Composition du bien

  • Type d'habitation : Appartement
  • Cuisine : Type de cuisine Non communique m²
  • Nombre de pièce(s) : 2
  • Nombre de chambre(s) : 1
  • Salles de bain : 1

Aménagement du bien

Extérieur

  • Terrasse : Non
  • Balcon : Non

Partie Commune

  • Ascenseur : Non
  • Surface habitable : 37 m²
  • Parking : Oui

Informations sur la copropriété

  • Bien soumis au statut de la copropriété
  • Nombre de lots : 70
  • Quote part charges courantes : 1080 €/an
  • Procédure en cours : Non

Localisation du bien

VANDOEUVRE LES NANCY (54500) , MEURTHE-ET-MOSELLE (54) - GRAND-EST

Consommation énergétique

  • D (253 kWh/m² an)
    B (7 kgCO2/m².an)
    Plus d'info
    253
    7
    7
  • DPE réalisé après le 1er juillet 2021.
  • Entre 800 € TTC / an et 1120 € TTC / an
    Non communiqué

Nos professionnels vous accompagnent

Contactez notre agence !

1, ROUTE DE BRIEY 57160 CHATEL ST GERMAIN

Appeler l’agence Tél : +33383156868

* Champs obligatoires

Nous vous informons de l’existence de la liste d’opposition au démarchage téléphonique « BLOCTEL » sur laquelle vous pouvez vous inscrire (https://www.bloctel.gouv.fr).

En complétant le formulaire «CONTACTEZ NOTRE AGENCE », je reconnais expressément que je consens au traitement de mes données personnelles et que je dispose du droit de retirer mon consentement à tout moment en m'adressant à support@fnaim.fr.
En savoir plus sur la gestion de vos données et droits : consulter nos mentions légales, « article 5/ Données à caractère personnel ».

En envoyant ce message, vous acceptez les conditions d'utilisation du site. Plus d'infos