LES ANNONCES
Acheter

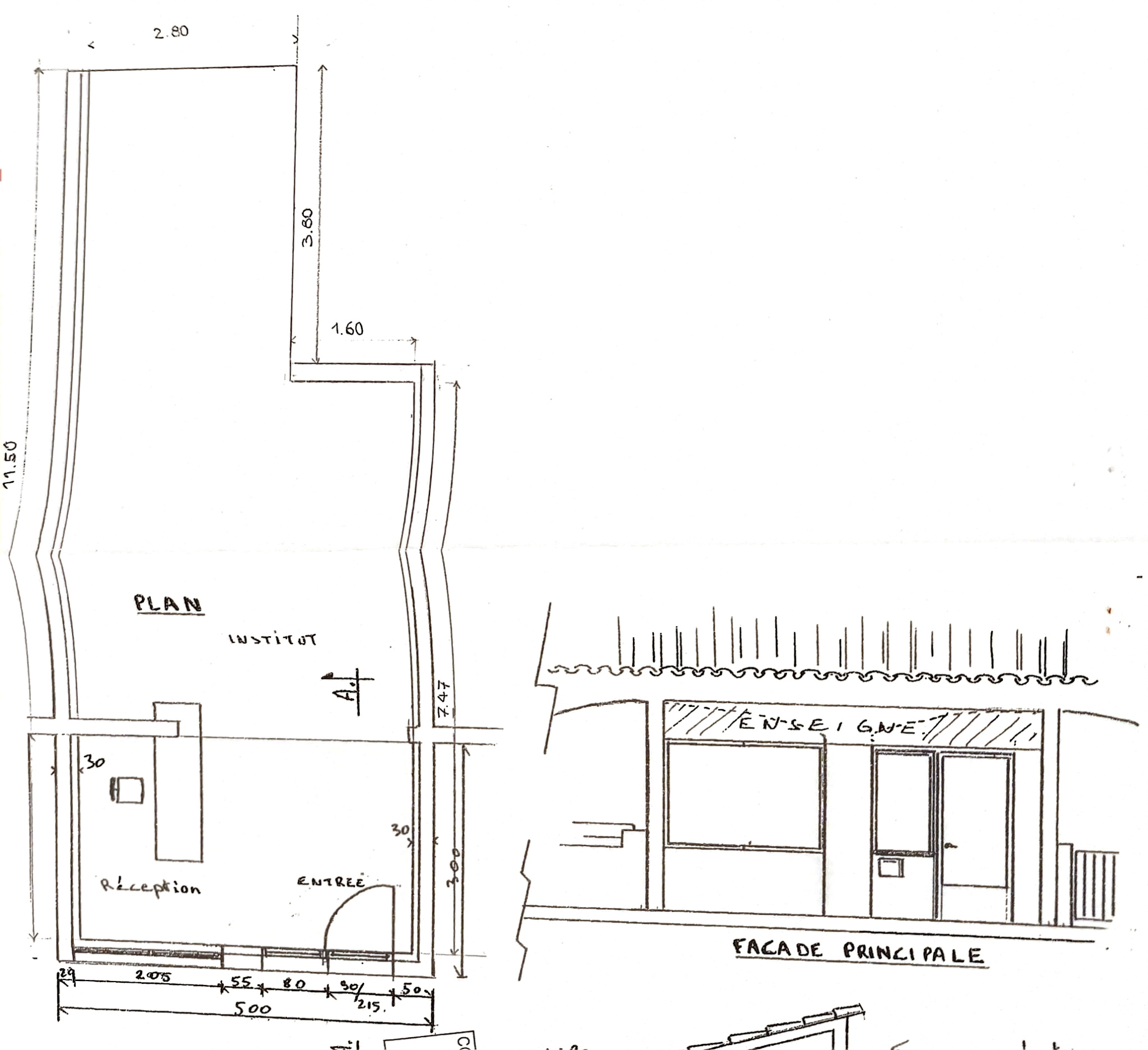
À Latour-Bas-Elne, au sein de la zone commerciale, découvrez ces murs commerciaux d'une superficie de 55,28 m2.
Emplacement no1, recherché
Grande vitrine avec belle visibilité
Parking gratuit à proximité immédiate
Local en très bon état, aucun travaux à prévoir
Convient pour tout type de commerce
Charges de copropriété : env. 600 EUR/an Taxe foncière : 681 EUR/an Copropriété de 25 lots aucune procédure en cours
Une opportunité à ne pas manquer !
Contactez votre conseiller MBS Immobilier Deniz TAS au 07 81 76 82 60 / 04 30 44 70 09 ou deniz@mbs-immobilier.fr
Deniz TAS agent commercial inscrit au RSAC de Perpignan sous le no418449799.
Frais d'agence inclus à charge vendeur
Notre barème sur www.mbs-immobilier.fr
Conformément à l'article L.561.5 du code monétaire et financier, une pièce d'identité sera demandée préalablement à une visite.