Fnaim.fr
Menu

Acheter

Visite virtuelle
Exclusivité
Réf. DOM14220

Achat Maison 4 pièces 89m² VILLENEUVE D ASCQ 59491

199 000 Honoraires charge vendeur

3 chambres Jardin

Description du bien

Liberkeys vous propose en exclusivité à Villeneuve d'Ascq dans le quartier Flers-Breucq, cette maison à fort potentiel de 4 pièces et d'environ 89 m² (surface de référence DPE à 67 m2 + combles partiellement aménagés, 1 chambre de 15 m² et une petite pièce de 6 m² ) située dans un environnement calme, tout en restant à proximité de tout ce qui est nécessaire au quotidien.

Ce bien constitue une belle opportunité pour un premier achat en résidence principale ou même un investissement locatif étant donné les travaux à réaliser pouvant constituer des charges déductibles (combles à aménager, enduits et peinture murs et plafonds, sol du rez de chaussée, cuisine, salle de bains). A noter que toutes les fenêtres sont en double vitrage PVC.

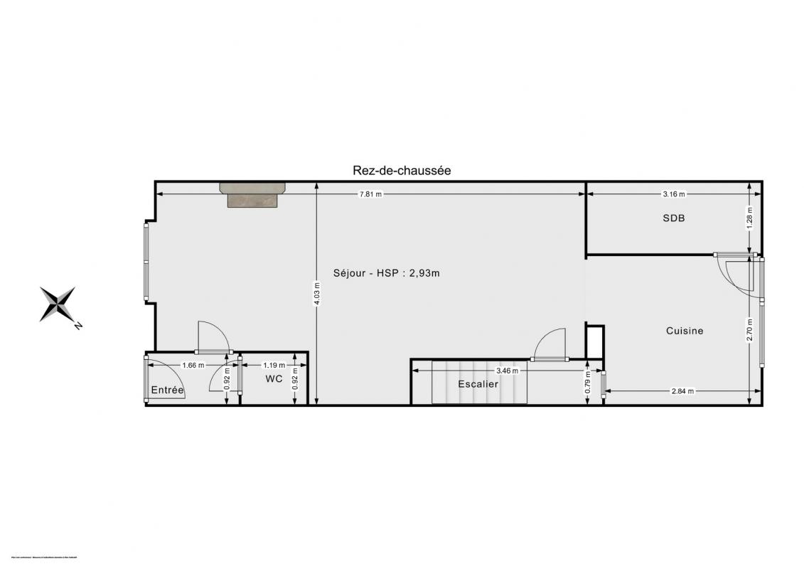
La distribution des pièces est optimale avec au rez de chaussée, une pièce de vie lumineuse d'environ 26 m², une cuisine séparée et équipée de 8 m², une salle d'eau, un WC, une petite véranda donnant accès au jardin et sa dépendance.

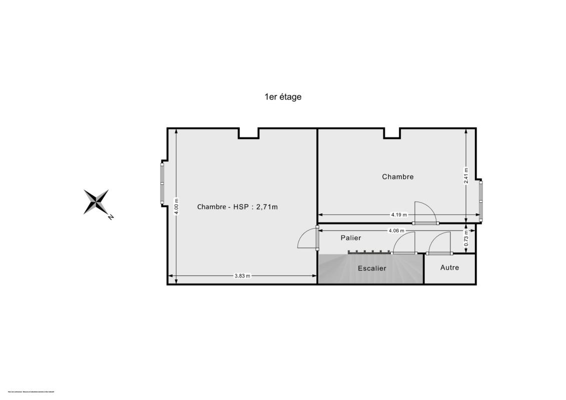
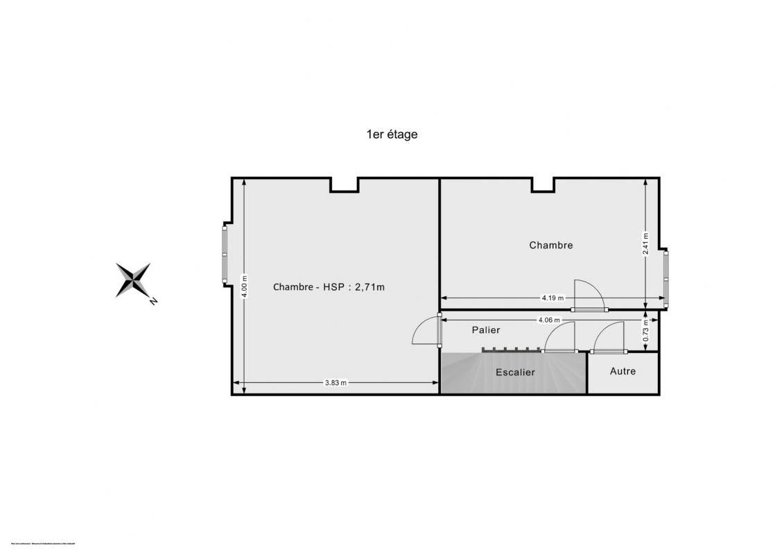
Au premier étage: deux chambres de plus de 9 et 15 m², un palier avec une zone de rangement. Au second étage: une chambre de 15 m², une zone non aménagée pouvant aisément devenir un bureau d'environ 6 m²

Côté environnement et vie de quartier, la maison est à quelques pas des arrêt de Tram "Le Sart " et " Planche Epinoy ", et tous les commerces sont accessibles à pieds ! (supermarché Match, Picard, petits commerces de la rue Jean Jaurès, boulangerie, bureau de poste, Aldi etc...).

Infos complémentaires:
- Taxe foncière de 936 €
- La maison a été entretenue régulièrement, factures à l'appui (réparations de chaudière, travaux de toiture, réfection complète de l'installation électrique, raccordement au tout à l'égout etc...)
- Fenêtres en PVC double vitrage partout

Ce bien vous plaît ? pensez à consulter la visite virtuelle et contactez moi directement. Lo Certo Sébastien, agent commercial immatriculé au RSAC de Lille sous le numéro 837791896. Référence annonce : DOM14220. Les honoraires sont à la charge du vendeur.

Etat des risques et pollutions

Les informations sur les risques auxquels ce bien est exposé sont disponibles sur le site Géorisques : www.georisques.gouv.fr.

Caractéristiques du bien

Composition du bien

  • Type d'habitation : Maison
  • Nombre de chambres : 3
  • Cuisine : 337

Aménagement du bien

  • Cave : Non
  • Garage / Parking : Non
    • Surface habitable : 89 m²

    Localisation du bien

    VILLENEUVE D ASCQ (59491) , NORD (59) - HAUTS-DE-FRANCE

    Consommation énergétique

    • D (235 kWh/m² an)
      D (49 kgCO2/m².an)
      Plus d'info
      235
      49
      49
    • DPE réalisé après le 1er juillet 2021.
    • Entre 1480 € TTC / an et 2050 € TTC / an
      Non communiqué

    Nos professionnels vous accompagnent

    Contactez notre agence !

    20 RUE DE MONTHOLON 75009 PARIS 09

    Appeler l’agence Tél : 06 75 62 08 80

    * Champs obligatoires

    Nous vous informons de l’existence de la liste d’opposition au démarchage téléphonique « BLOCTEL » sur laquelle vous pouvez vous inscrire (https://www.bloctel.gouv.fr).

    En complétant le formulaire «CONTACTEZ NOTRE AGENCE », je reconnais expressément que je consens au traitement de mes données personnelles et que je dispose du droit de retirer mon consentement à tout moment en m'adressant à support@fnaim.fr.
    En savoir plus sur la gestion de vos données et droits : consulter nos mentions légales, « article 5/ Données à caractère personnel ».

    En envoyant ce message, vous acceptez les conditions d'utilisation du site. Plus d'infos