Fnaim.fr
Menu

Acheter

Exclusivité
Réf. 421258LDG

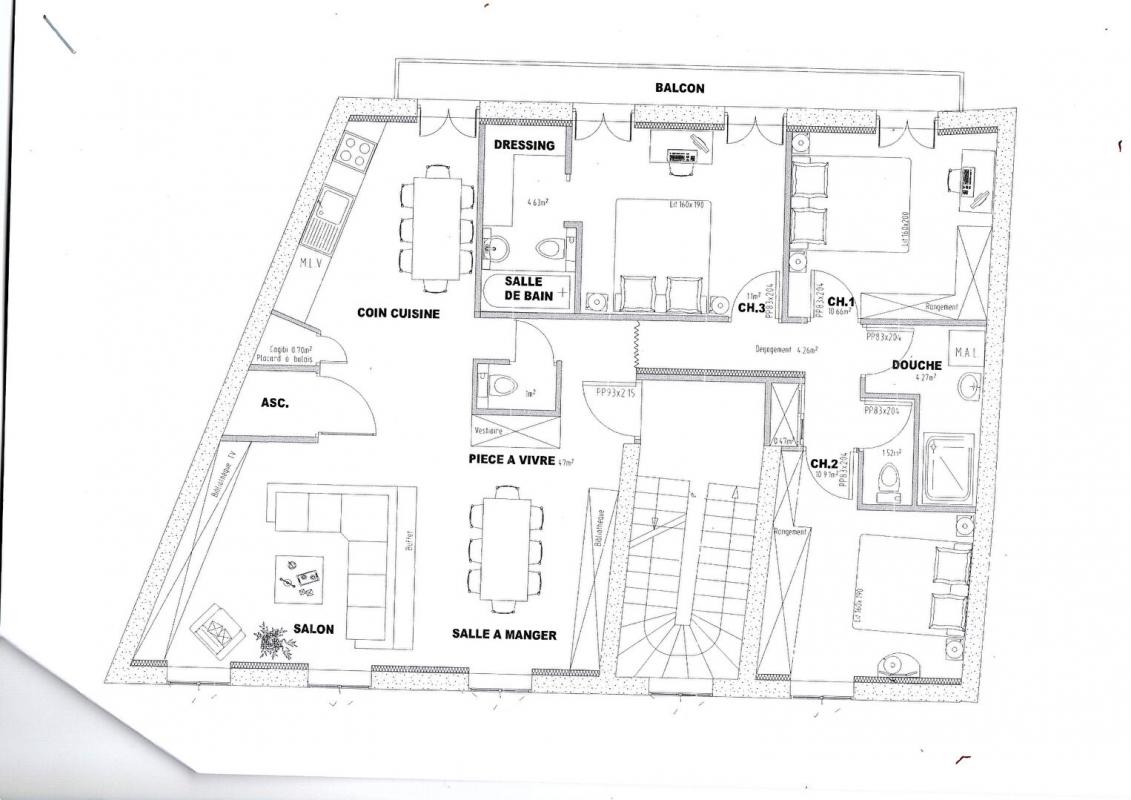
Achat Appartement 5 pièces 97m² VICHY 03200

360 000 Honoraires charge vendeur

3 chambres Balcon Ascenseur Parking / Garage

Description du bien

3 lots encore disponibles dans le centre ville de Vichy, a 100m des 4 chemins, Philippe laboudigue vous propose en exclusivité, dans une nouvelle résidence "Célestine" entierement réhabilitée , un splendide appartement rénové avec des materiaux de qualité et aux normes en vigueur!!!!!
Accueil sur place tous les vendredis de 16 à 18h!
Plusieurs possibilité d'agencement vous sont offertes tout en respectant le batiment classé au patrimoine vichyssois!
Situé au 2eme étage,ascenseur desservant directement l'appartement avec sa piece de vie de 47m2 traversante!
3 ou 4 chambres (au choix) avec suite parentale ( dressing,coin bureau,,salle d'eau et wc)!
Cuisine ouverte aménagée ,balcon filant sur toute la facade!
Ce bien sera livré avec une cave(11m2) et deux places de parking dans la résidence!
Chauffage electrique avec convecteurs a inertie!
Local vélos fermé, acces sécurisé pietons et vehicules!
Le bien bénéficiera de tous les avantages du neuf:
sols,electricité,plomberie,peintures,isolation phonique et thermique....
Livraison été 2026 avec échéancier de paiement!
Petite copropriété de 11 lots avec faibles charges.
Quelques lots encore disponibles!
Une visite?

Les informations sur les risques auxquels ce bien est exposé sont disponibles sur le site Géorisques : www.georisques.gouv.fr.

Mandat exclusif N° 421258
PRIX : 360000 euros charges vendeur
Selon l'article L.561.5 du Code Monétaire et Financier, pour l'organisation de la visite, la présentation d'une pièce d'identité vous sera demandée.
Cette présente annonce a été rédigée sous la responsabilité éditoriale de Philippe LABOUDIGUE agissant en qualité de conseiller immobilier indépendant auprès de la SAS PROPRIETES PRIVEES, au capital de 40 000 euros, ZAC LE CHÊNE FERRÉ - 44 ALLÉE DES CINQ CONTINENTS 44120 VERTOU; SIRET 487 624 777 00040, RCS Nantes

Copropriété de 11 lots - dont 10 lots habitation. ().

Charges annuelles : 1840 euros.
Philippe LABOUDIGUE (EI) Agent Commercial - Numéro RSAC : Cusset 439 997 933 - .

Etat des risques et pollutions

Les informations sur les risques auxquels ce bien est exposé sont disponibles sur le site Géorisques : www.georisques.gouv.fr.

Caractéristiques du bien

Composition du bien

  • Type d'habitation : Appartement
  • Cuisine : 337
  • Nombre de pièce(s) : 5
  • Nombre de chambre(s) : 3
  • Salles de bain : 1

Aménagement du bien

Extérieur

  • Terrasse : Non
  • Balcon : Oui

Partie Commune

  • Ascenseur : Oui
  • Surface habitable : 97 m²
  • Parking : Oui

Informations sur la copropriété

  • Bien soumis au statut de la copropriété
  • Nombre de lots : 11
  • Quote part charges courantes : 1840 €/an
  • Procédure en cours : Non

Localisation du bien

VICHY (03200) , ALLIER (03) - AUVERGNE-RHÔNE-ALPES

Consommation énergétique

  • C (127 kWh/m² an)
    A (9 kgCO2/m².an)
    Plus d'info
    127
    9
    9
  • DPE réalisé après le 1er juillet 2021.
  • Entre 1450 € TTC / an et 1850 € TTC / an
    Non communiqué

Nos professionnels vous accompagnent

Contactez notre agence !

44 Allée des Cinq Continents ZAC Le Chêne Ferré 44120 VERTOU

Appeler l’agence Tél : 06 09 11 06 96

* Champs obligatoires

Nous vous informons de l’existence de la liste d’opposition au démarchage téléphonique « BLOCTEL » sur laquelle vous pouvez vous inscrire (https://www.bloctel.gouv.fr).

En complétant le formulaire «CONTACTEZ NOTRE AGENCE », je reconnais expressément que je consens au traitement de mes données personnelles et que je dispose du droit de retirer mon consentement à tout moment en m'adressant à support@fnaim.fr.
En savoir plus sur la gestion de vos données et droits : consulter nos mentions légales, « article 5/ Données à caractère personnel ».

En envoyant ce message, vous acceptez les conditions d'utilisation du site. Plus d'infos