Fnaim.fr
Menu

Réf. VA20199-BARRIO

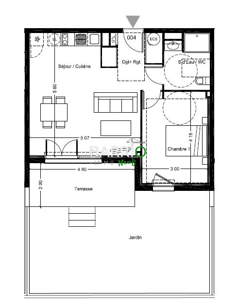
Achat Appartement 4 pièces 114m² ST CYPRIEN 66750

499 000 Honoraires charge acquéreur inclus

3 chambres Ascenseur Parking / Garage

Description du bien

Dans un quartier calme et résidentiel de Saint-Cyprien, la résidence neuve BLUE GARDEN propose un cadre de vie serein et intimiste.

Elle vous séduira par son architecture contemporaine et ses prestations soignées.

Cet appartement T4 de plus de 113m2 orienté Sud Est offre de beaux volumes, une grande luminosité grâce aux larges baies vitrées, et un véritable confort de vie, été comme hiver. Il bénéficie d'un agréable jardin privatif avec terrasse.

Pensés pour un usage à l'année, il dispose de prestations de qualité :
- carrelage grand format
- volets roulants électriques
- climatisation
- salles d'eau aménagée
- stationnement privatif et garage

La résidence est sécurisée, équipée d'un ascenseur, et répond aux dernières normes d'isolation thermique et phonique.
Idéal pour une résidence principale ou un investissement, à deux pas des plages, des commodités et du coeur de Saint-Cyprien.

Détails et disponibilité sur demande !



Dans une copropriété de 70 lots. Aucune procédure n'est en cours. Non soumis au DPE. Les informations sur les risques auxquels ce bien est exposé sont disponibles sur le site Géorisques : georisques.gouv.fr.

Etat des risques et pollutions

Les informations sur les risques auxquels ce bien est exposé sont disponibles sur le site Géorisques : www.georisques.gouv.fr.

Caractéristiques du bien

Composition du bien

  • Type d'habitation : Appartement
  • Cuisine : Type de cuisine Non communique
  • Nombre de pièce(s) : 4
  • Nombre de chambre(s) : 3

Aménagement du bien

Extérieur

  • Terrasse : Non
  • Balcon : Non

Partie Commune

  • Ascenseur : Oui
  • Surface habitable : 114 m²
  • Parking : Oui

Informations sur la copropriété

  • Bien soumis au statut de la copropriété
  • Nombre de lots : 70
  • Procédure en cours : Non

Localisation du bien

ST CYPRIEN (66750) , PYRENEES-ORIENTALES (66) - OCCITANIE

Ce bien n'est pas géolocalisé, pour connaitre sa géolocalisation, merci de contacter l'agence.

Consommation énergétique

DPE non soumis
mention indiquée sous la responsabilité de l’agence immobilière

Nos professionnels vous accompagnent

Contactez notre agence !

24 Chemin de Palau 66700 ARGELES SUR MER

Appeler l’agence Tél : 0644668535

* Champs obligatoires

Nous vous informons de l’existence de la liste d’opposition au démarchage téléphonique « BLOCTEL » sur laquelle vous pouvez vous inscrire (https://www.bloctel.gouv.fr).

En complétant le formulaire «CONTACTEZ NOTRE AGENCE », je reconnais expressément que je consens au traitement de mes données personnelles et que je dispose du droit de retirer mon consentement à tout moment en m'adressant à support@fnaim.fr.
En savoir plus sur la gestion de vos données et droits : consulter nos mentions légales, « article 5/ Données à caractère personnel ».

En envoyant ce message, vous acceptez les conditions d'utilisation du site. Plus d'infos