Fnaim.fr
Menu

Acheter

Achat Terrain 557m²

165 000 Honoraires charge vendeur

Description du bien


L'agence Immobilière Kahûte vous propose au coeur d'un lotissement de standing « le parc Neptune ", ce terrain constructible de 557m2 en zone UC et en CES non réglementé dans un environnement calme, verdoyant et recherché.
RARE, entièrement plat, il est idéalement situé sur les hauteurs de St-Chamond à proximité immédiate du stade Pauze, du complexe sportif et du parc Labesse.

Accessibilité :
A 5mn des commerces et commodités, il est entouré d'un environnement résidentiel, à seulement 10mn à pied de l'école Ste Marie et à 4 mn en voiture de la gare de St Chamond.
Depuis la gare de Saint Chamond, vous aurez accès à la gare de Chateaucreux en 10 min et à la gare de la Part Dieu en 38 min.
Vous accèderez également au centre-ville de Saint Etienne en 20 minutes en voiture

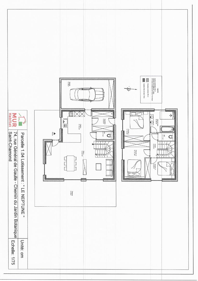
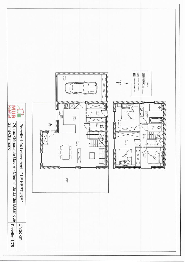
Exemple d'un projet de maison de 99m2 (plan ci-joint en photo) à 182000 Euro soit maison + terrain à 347000Euro
Une adresse rare et recherchée à découvrir.
3 autres lots sont également disponibles : 642m2, 763m2 et 1000m2

Les informations sur les risques auxquels ce bien est exposé sont disponibles sur le site Géorisques : www.georisques.gouv.fr

Pour plus de renseignements : Jean Pierre Gerin 07 61 98 46 46

Etat des risques et pollutions

Les informations sur les risques auxquels ce bien est exposé sont disponibles sur le site Géorisques : www.georisques.gouv.fr.

Caractéristiques du bien

Composition du bien

  • Type de bien : Terrain

Localisation du bien

Ce bien n'est pas géolocalisé, pour connaitre sa géolocalisation, merci de contacter l'agence.

Nos professionnels vous accompagnent

Contactez notre agence !

86 bis avenue de Lanessan 69410 CHAMPAGNE AU MONT D OR

Appeler l’agence Tél : 0761984646

* Champs obligatoires

Nous vous informons de l’existence de la liste d’opposition au démarchage téléphonique « BLOCTEL » sur laquelle vous pouvez vous inscrire (https://www.bloctel.gouv.fr).

En complétant le formulaire «CONTACTEZ NOTRE AGENCE », je reconnais expressément que je consens au traitement de mes données personnelles et que je dispose du droit de retirer mon consentement à tout moment en m'adressant à support@fnaim.fr.
En savoir plus sur la gestion de vos données et droits : consulter nos mentions légales, « article 5/ Données à caractère personnel ».

En envoyant ce message, vous acceptez les conditions d'utilisation du site. Plus d'infos