Fnaim.fr
Menu

Exclusivité
Réf. 85956547

Achat Appartement 1 pièce 17m² DIJON 21000

70 000 Honoraires charge vendeur

1 chambre

Description du bien

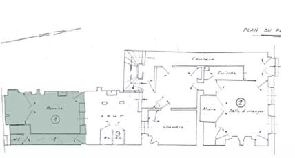
Centre historique de Dijon, donnant sur une petite cour, une chambre avec alcôve, d'une surface Carrez de 17,97 m² avec un couloir privatif (7,22 m² de surface), une cave au-dessous.
A rénover pour aménagement éventuel de studio. Arrivée d'eau; autorisation donnée par la copropriété d'ouvrir cette pièce sur le couloir privatif afin de l'agrandir.
Aucun système de chauffage actuellement.

Idéal investisseur !

Nombre de lots copropriété : 14
Montant annuel de la quote-part charges : 370 €

Prix de vente du bien : 70 000 euros
Honoraires charge vendeur

Classe énergie : NA
Classe climat : NA

Les informations sur les risques auxquels ce bien est exposé sont disponibles sur le site Géorisques : https://www.georisques.gouv.fr/

Etat des risques et pollutions

Les informations sur les risques auxquels ce bien est exposé sont disponibles sur le site Géorisques : www.georisques.gouv.fr.

Caractéristiques du bien

Composition du bien

  • Type d'habitation : Appartement
  • Cuisine : Type de cuisine Non communique
  • Nombre de pièce(s) : 1
  • Nombre de chambre(s) : 1

Aménagement du bien

Extérieur

  • Terrasse : Non
  • Balcon : Non

Partie Commune

  • Ascenseur : Non
  • Surface habitable : 17 m²

Localisation du bien

DIJON (21000) , COTE-D'OR (21) - BOURGOGNE-FRANCHE-COMTÉ

Consommation énergétique

DPE non soumis
mention indiquée sous la responsabilité de l’agence immobilière

Nos professionnels vous accompagnent

Contactez notre agence !

9 PLACE DU PRESIDENT THOMAS WILSON 31000 TOULOUSE

Appeler l’agence Tél : +33 5 61 21 52 01

* Champs obligatoires

Nous vous informons de l’existence de la liste d’opposition au démarchage téléphonique « BLOCTEL » sur laquelle vous pouvez vous inscrire (https://www.bloctel.gouv.fr).

En complétant le formulaire «CONTACTEZ NOTRE AGENCE », je reconnais expressément que je consens au traitement de mes données personnelles et que je dispose du droit de retirer mon consentement à tout moment en m'adressant à support@fnaim.fr.
En savoir plus sur la gestion de vos données et droits : consulter nos mentions légales, « article 5/ Données à caractère personnel ».

En envoyant ce message, vous acceptez les conditions d'utilisation du site. Plus d'infos