Fnaim.fr
Menu

Acheter

Exclusivité
Réf. 25185049

Achat Appartement 2 pièces 21m² ST LARY SOULAN 65170

72 000 Honoraires charge vendeur

1 chambre Ascenseur Parking / Garage

Description du bien

Immobilier SAINT LARY SOULAN

Situé au pied des pistes, au PLA D'ADET la station de SAINT-LARY SOULAN.

Votre agence BELLES VACANCES IMMOBILIER, vous propose cet appartement de Type 2, avec balcon.
Vendu Meublé et en sus : Cellier à skis privatif - Parking extérieur avec badge.

D'une superficie de 21.85 m², d'une capacité de 4 Couchages.

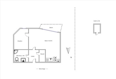
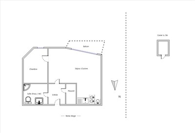
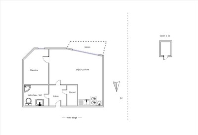
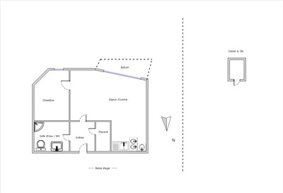
Cet appartement lumineux exposé plein sud se compose :
* d'une entrée avec placard
* d'un séjour de 2 couchages, baie vitrée, balcon côté pistes
* d'une kitchenette équipée ouverte sur le séjour
* d'une chambre composée d'un lit en 140
* d'une salle d'eau avec toilette

Ce bien dispose en sus d'un casier à skis.
La résidence bénéficie d'un parking extérieur avec badge.
D'un Gardien à l'année.
D'un arrêt navette devant la résidence.

CHARGES DE COPROPRIETE ANNUELLES : 1 338.72 €
TAXES FONCIÈRES : 635 €
TAXE HABITATION : 696 €

Le syndic de cette résidence est l'AGENCE BELLES VACANCES.

Au pied des pistes, proche de tout commerce et à 6mn du centre du village par le téléphérique, cet appartement est le lieu idéal pour vos vacances avec un potentiel locatif en toute saison

Alors n'attendez plus, laissez vous tenter !

Prix Honoraire Frais d'Agence Inclus : 72 000 €
Honoraires d'agence : 7 000 € TTC

Philippe notre conseiller est joignable au numéro suivant :
05.62.39.48.72 OU 06.45.40.07.17

Etat des risques et pollutions

Les informations sur les risques auxquels ce bien est exposé sont disponibles sur le site Géorisques : www.georisques.gouv.fr.

Caractéristiques du bien

Composition du bien

  • Type d'habitation : Appartement
  • Cuisine : Type de cuisine Non communique m²
  • Nombre de pièce(s) : 2
  • Nombre de chambre(s) : 1

Aménagement du bien

Extérieur

  • Terrasse : Non
  • Balcon : Non

Partie Commune

  • Ascenseur : Oui
  • Surface habitable : 21 m²
  • Parking : Oui

Localisation du bien

ST LARY SOULAN (65170) , HAUTES-PYRENEES (65) - OCCITANIE

Ce bien n'est pas géolocalisé, pour connaitre sa géolocalisation, merci de contacter l'agence.

Consommation énergétique

  • D (287 kWh/m² an)
    B (0 kgCO2/m².an)
    Plus d'info
    287
    N/C
  • DPE réalisé après le 1er juillet 2021.
  • Entre 550 € TTC / an et 810 € TTC / an
    Non communiqué

Nos professionnels vous accompagnent

Contactez notre agence !

avenue des Thermes 65170 ST LARY SOULAN

Appeler l’agence Tél : 06.45.40.07.17

* Champs obligatoires

Nous vous informons de l’existence de la liste d’opposition au démarchage téléphonique « BLOCTEL » sur laquelle vous pouvez vous inscrire (https://www.bloctel.gouv.fr).

En complétant le formulaire «CONTACTEZ NOTRE AGENCE », je reconnais expressément que je consens au traitement de mes données personnelles et que je dispose du droit de retirer mon consentement à tout moment en m'adressant à support@fnaim.fr.
En savoir plus sur la gestion de vos données et droits : consulter nos mentions légales, « article 5/ Données à caractère personnel ».

En envoyant ce message, vous acceptez les conditions d'utilisation du site. Plus d'infos