Achat Maison 3 pièces 61m² QUIBERON 56170
339 500 € Honoraires charge acquéreur inclus : 2,8% TTC (329994 € hors honoraires)
2 chambres Jardin Parking / Garage

2 chambres Jardin Parking / Garage
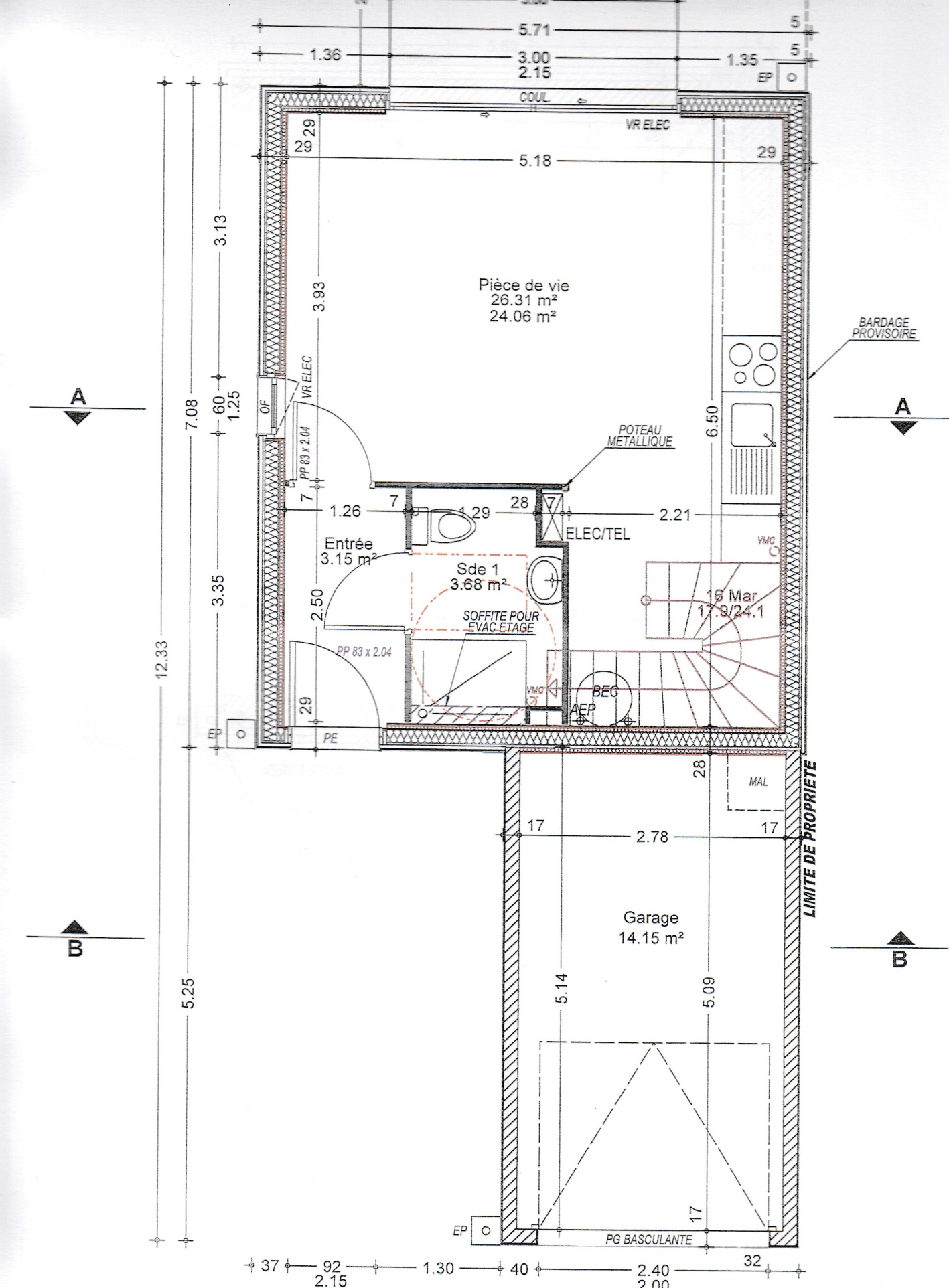
Entre la côte sauvage et le centre-ville venez découvir cette maison construite en 2017. Le rez-de-chaussée propose une pièce avec cuisine ouvrant au sud sur terrasse et jardin. Salle d'eau wc.
A l'étage 2 chambres agrémentées de placards aménagés, salle d'eau avec wc.
Jardin, garage et place de parking.
Plage et commerces à 10 mn à pied. Contact Guylaine Mazé 06 01 93 79 33