Fnaim.fr
Menu

Acheter

Visite virtuelle
Exclusivité
Réf. DOM20881

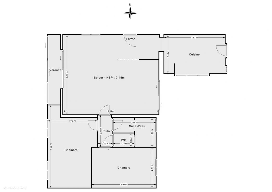
Achat Maison 3 pièces 65m² NANTES 44100

307 000 Honoraires charge acquéreur inclus : 3,9% TTC (295533 € hors honoraires)

2 chambres Jardin Parking / Garage

Description du bien

Liberkeys vous propose cette maison lumineuse de plain-pied sur parcelle de 315m², exposée Sud, Est et Ouest. Entrée sur salon parqueté de 25m² avec baie vitrée sur jardin, cuisine équipée, 2 chambres (10 et 13m²), salle de bain avec douche, WC séparé. Quartier Dervallieres-Zola.

Jardin paisible clos de 105m² exposé Sud, espace vert de 33m² à l'avant. Garage 25m² avec eau et électricité et allée privative pour 2 à 3 véhicules.

Entièrement rénovée en 2021 : isolation chanvre, élec/plomberie neuves, chaudière gaz à condensation, VMC, fenêtres double vitrage, toiture cuisine neuve, ravalement 2024.

Possibilité de surélévation (+50m²) ou aménagement des combles, l'idéal pour la création d'une chambre ou d'un bureau.

Proche transports (C3, C6, C20), commerces à pied, val de Chézine et gare accessibles à vélo. Centre ville de Nantes à 15 min via la ligne C3.
Aucun travaux à prévoir - Quartier paisible - Bonne entente entre voisins.

Etat des risques et pollutions

Les informations sur les risques auxquels ce bien est exposé sont disponibles sur le site Géorisques : www.georisques.gouv.fr.

Caractéristiques du bien

Composition du bien

  • Type d'habitation : Maison
  • Nombre de chambres : 2
  • Cuisine : 337

Aménagement du bien

  • Cave : Non
  • Garage / Parking : Oui
    • Surface habitable : 65 m²
    • Parking : Oui

    Localisation du bien

    NANTES (44100) , LOIRE-ATLANTIQUE (44) - PAYS-DE-LA-LOIRE

    Consommation énergétique

    • C (156 kWh/m² an)
      D (31 kgCO2/m².an)
      Plus d'info
      156
      31
      31
    • DPE réalisé après le 1er juillet 2021.
    • Entre 1020 € TTC / an et 1440 € TTC / an
      Non communiqué

    Nos professionnels vous accompagnent

    Contactez notre agence !

    20 RUE DE MONTHOLON 75009 PARIS 09

    Appeler l’agence Tél : 07 65 20 30 22

    * Champs obligatoires

    Nous vous informons de l’existence de la liste d’opposition au démarchage téléphonique « BLOCTEL » sur laquelle vous pouvez vous inscrire (https://www.bloctel.gouv.fr).

    En complétant le formulaire «CONTACTEZ NOTRE AGENCE », je reconnais expressément que je consens au traitement de mes données personnelles et que je dispose du droit de retirer mon consentement à tout moment en m'adressant à support@fnaim.fr.
    En savoir plus sur la gestion de vos données et droits : consulter nos mentions légales, « article 5/ Données à caractère personnel ».

    En envoyant ce message, vous acceptez les conditions d'utilisation du site. Plus d'infos