Fnaim.fr
Menu

Acheter

Réf. 85993122

Achat Maison 4 pièces 85m² LA BAULE ESCOUBLAC 44500

367 500 Honoraires charge vendeur

3 chambres Balcon Parking / Garage

Description du bien

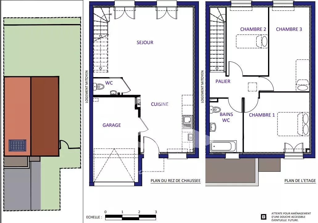
A 700 m des commerces et de la gare de PORNICHET. Les résidences de L'HERMIONE vous proposent 8 maisons en cours de construction, VENDUES EN L'ETAT FUTUR D'ACHEVEMENT, comprenant au rez-de-chaussée : une pièce à vivre de 37,40 m2, un wc, un garage. A l'étage : un palier desservant trois chambres, une salle de bains/toilette. Le tout sur jardin de 206 m2.

Frais de notaire réduits 2,3 %. Livraison prévisionnelle : 1er trimestre 2026. Maison à partir de 367 500 €TTC.

Votre contact : Benjamin Avenel 06 01 65 91 92 +33 6 01 65 91 92 - +33 2 51 10 84 93

Etat des risques et pollutions

Les informations sur les risques auxquels ce bien est exposé sont disponibles sur le site Géorisques : www.georisques.gouv.fr.

Caractéristiques du bien

Composition du bien

  • Type d'habitation : Maison
  • Nombre de chambres : 3
  • Nombre de salles de bain : 1

Aménagement du bien

  • Cave : Non
  • Garage / Parking : Oui
    • Surface habitable : 85 m²
    • Parking : Oui

    Localisation du bien

    LA BAULE ESCOUBLAC (44500) , LOIRE-ATLANTIQUE (44) - PAYS-DE-LA-LOIRE

    Ce bien n'est pas géolocalisé, pour connaitre sa géolocalisation, merci de contacter l'agence.

    Consommation énergétique

    DPE non soumis
    mention indiquée sous la responsabilité de l’agence immobilière

    Nos professionnels vous accompagnent

    Contactez notre agence !

    31 AVENUE DU GENERAL DE GAULLE 44380 PORNICHET

    Appeler l’agence Tél : +33 2 51 10 84 93

    * Champs obligatoires

    Nous vous informons de l’existence de la liste d’opposition au démarchage téléphonique « BLOCTEL » sur laquelle vous pouvez vous inscrire (https://www.bloctel.gouv.fr).

    En complétant le formulaire «CONTACTEZ NOTRE AGENCE », je reconnais expressément que je consens au traitement de mes données personnelles et que je dispose du droit de retirer mon consentement à tout moment en m'adressant à support@fnaim.fr.
    En savoir plus sur la gestion de vos données et droits : consulter nos mentions légales, « article 5/ Données à caractère personnel ».

    En envoyant ce message, vous acceptez les conditions d'utilisation du site. Plus d'infos