Fnaim.fr
Menu

Acheter

Réf. 32389.TYS

Achat Maison 4 pièces 91m²

188 640 Honoraires charge acquéreur inclus : 4,8% TTC (180000 € hors honoraires)

3 chambres Jardin Parking / Garage

Description du bien


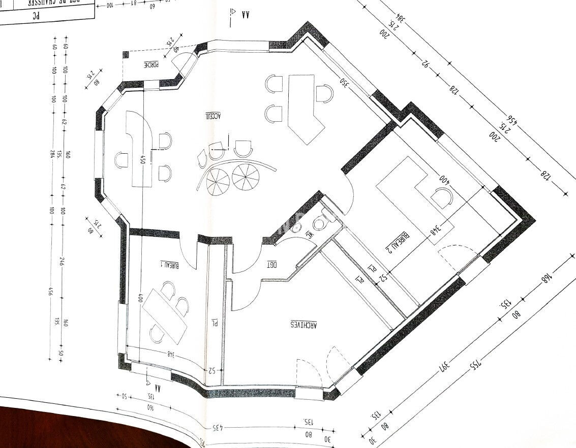
À vendre Local commercial de plain-pied avec possibilité d'aménagement en habitation !

Ce bien rare situé dans un lotissement calme, à proximité immédiate du centre-ville, des écoles, des commerces et des transports.

Actuellement aménagée en local commercial, cette maison contemporaine de plain-pied d'environ 91 m² offre de belles prestations et se compose comme suit :

-Un hall d'entrée spacieux avec espace d'accueil

-Trois bureaux cloisonnés avec placards intégrés

Un WC indépendant

À l'extérieur, vous disposerez de cinq places de stationnement privatives, idéales pour votre activité professionnelle ou pour un futur usage résidentiel.

Atout majeur : ce bien offre la possibilité de changement de destination en habitation, pour un projet de vie ou un investissement locatif.

À découvrir rapidement !



Sébastien TARDY (EI) Agent Commercial - Numéro RSAC : 533 970 265 - SAINT MALO.

Etat des risques et pollutions

Les informations sur les risques auxquels ce bien est exposé sont disponibles sur le site Géorisques : www.georisques.gouv.fr.

Caractéristiques du bien

Composition du bien

  • Type d'habitation : Maison
  • Nombre de chambres : 3
  • Cuisine : Type de cuisine Non communique

Aménagement du bien

  • Cave : Non
  • Garage / Parking : Oui
    • Surface habitable : 91 m²
    • Parking : Oui

    Localisation du bien

    Ce bien n'est pas géolocalisé, pour connaitre sa géolocalisation, merci de contacter l'agence.

    Consommation énergétique

    • D (196 kWh/m² an)
      B (6 kgCO2/m².an)
      Plus d'info
      196
      6
      6
    • DPE réalisé après le 1er juillet 2021.
    • Entre 1390 € TTC / an et 1910 € TTC / an
      Non communiqué

    Nos professionnels vous accompagnent

    Contactez notre agence !

    33 Rue Nationale 35190 TINTENIAC

    Appeler l’agence Tél : 0299681439

    * Champs obligatoires

    Nous vous informons de l’existence de la liste d’opposition au démarchage téléphonique « BLOCTEL » sur laquelle vous pouvez vous inscrire (https://www.bloctel.gouv.fr).

    En complétant le formulaire «CONTACTEZ NOTRE AGENCE », je reconnais expressément que je consens au traitement de mes données personnelles et que je dispose du droit de retirer mon consentement à tout moment en m'adressant à support@fnaim.fr.
    En savoir plus sur la gestion de vos données et droits : consulter nos mentions légales, « article 5/ Données à caractère personnel ».

    En envoyant ce message, vous acceptez les conditions d'utilisation du site. Plus d'infos