Fnaim.fr
Menu

Visite virtuelle
Réf. VA2056-VIGNOBLE

Achat Appartement 3 pièces 64m² BARR 67140

244 900 Honoraires charge acquéreur inclus

2 chambres Ascenseur Parking / Garage

Description du bien

Idéalement située sur la route des Vins d'Alsace, entre Obernai et Sélestat, la ville de Barr vous séduira par ses nombreux atouts, notamment la proximité des établissements scolaires (de la maternelle au lycée), supermarchés, restaurants, médecins, pharmacie, médiathèque, associations sportives, etc.
La commune de BARR dispose de sa propre gare ferroviaire, permettant de relier facilement les principales villes alentours, de Strasbourg à Colmar, en passant par Sélestat. Vous pourrez rejoindre rapidement les axes autoroutiers principaux (A35). Cette construction neuve respecte la norme en vigueur RE2020.

Frais de notaires réduits*
Eligilbe Prêt à Taux Zéro (PTZ)

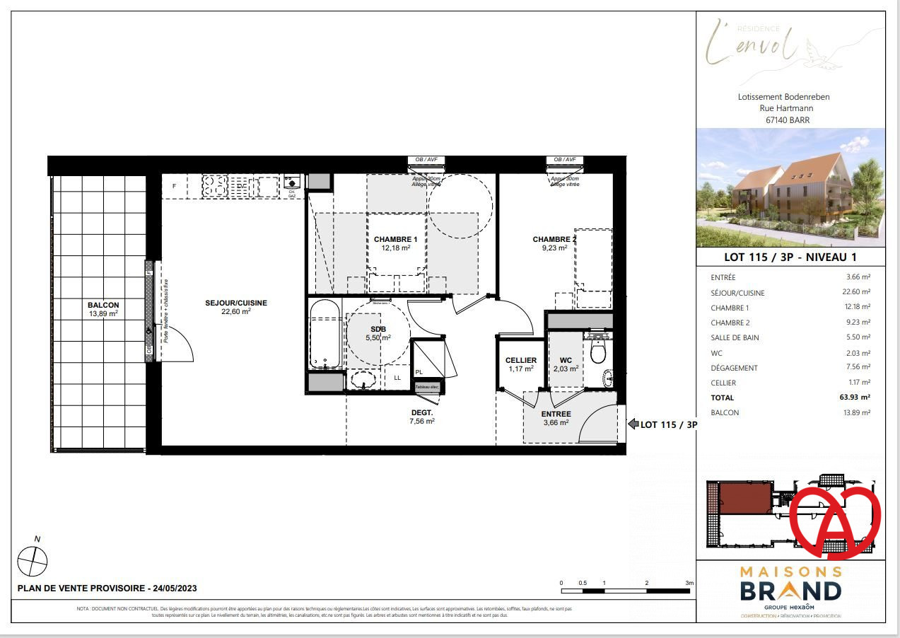
Nous vous proposons de découvrir dans la nouvelle Résidence 'L'Envol' cet appartement neuf F3 au 1er étage de 64.01m².

Le bien comprend :
- une entrée avec cellier ;
- un séjour ouvert sur cuisine de plus de 22,60m² ;
- une chambre avec espace de rangement de plus de 12m² ;
- une seconde chambre ;
- une salle de bains ;
- un toilette séparé avec lave-mains.
Un balcon de 11.70m² complète le bien.

Possibilité d'acquérir une place de parking et un garage en sous-sol (infos sur demande).

Les prestations intérieures
Menuiseries bicolore
Portes laquées
Chauffage au sol
Peinture lisse
Choix exclusif de revêtements de sols
Volet roulant électrique
Placards
Les prestations extérieuresEspaces communs végétalisés
Jardins clôturés, engazonnés et arborés
Grandes terrasses
Stationnements intérieurs et extérieurs
Local à vélos
Caves
Pour tout renseignement :
Karen MONJAL
O6.22.98.35.97 ou O3.88.O8.91.O9
Agence Alsacienne Immobilier
4, Grand Rue 67140 BARR


D'autres biens disponibles dans la même Résidence :
Appartement au RDC 4 pièces - 90,39 m² - 353 900 ?
Appartement au 1er étage 3 pièces - 66.52 m² - 259 900 ?
Appartement au 1er étage 4 pièces - 90,39 m² - 353 900 ?
*Dans le neuf, les frais relatifs à l'établissement de l'acte de vente et des droits fiscaux s'élèvent entre 2 à 3 % du prix de vente (contre 7 à 8% dans l'ancien).

Dans une copropriété de 13 lots. Aucune procédure n'est en cours. Non soumis au DPE. Les informations sur les risques auxquels ce bien est exposé sont disponibles sur le site Géorisques : georisques.gouv.fr. Ce bien vous est proposé par un agent commercial (Entreprise individuelle).

Etat des risques et pollutions

Les informations sur les risques auxquels ce bien est exposé sont disponibles sur le site Géorisques : www.georisques.gouv.fr.

Caractéristiques du bien

Composition du bien

  • Type d'habitation : Appartement
  • Cuisine : Type de cuisine Non communique
  • Nombre de pièce(s) : 3
  • Nombre de chambre(s) : 2
  • Salles de bain : 1

Aménagement du bien

Extérieur

  • Terrasse : Non
  • Balcon : Non

Partie Commune

  • Ascenseur : Oui
  • Surface habitable : 64 m²
  • Parking : Oui

Informations sur la copropriété

  • Bien soumis au statut de la copropriété
  • Nombre de lots : 13
  • Procédure en cours : Non

Localisation du bien

BARR (67140) , BAS-RHIN (67) - GRAND-EST

Ce bien n'est pas géolocalisé, pour connaitre sa géolocalisation, merci de contacter l'agence.

Consommation énergétique

DPE non soumis
mention indiquée sous la responsabilité de l’agence immobilière

Nos professionnels vous accompagnent

Contactez notre agence !

2, rue Louis Pasteur 67220 VILLE

Appeler l’agence Tél : 0622983597

* Champs obligatoires

Nous vous informons de l’existence de la liste d’opposition au démarchage téléphonique « BLOCTEL » sur laquelle vous pouvez vous inscrire (https://www.bloctel.gouv.fr).

En complétant le formulaire «CONTACTEZ NOTRE AGENCE », je reconnais expressément que je consens au traitement de mes données personnelles et que je dispose du droit de retirer mon consentement à tout moment en m'adressant à support@fnaim.fr.
En savoir plus sur la gestion de vos données et droits : consulter nos mentions légales, « article 5/ Données à caractère personnel ».

En envoyant ce message, vous acceptez les conditions d'utilisation du site. Plus d'infos