Fnaim.fr
Menu

Achat Maison 7 pièces 187m²

1 290 000 Honoraires charge vendeur

4 chambres Jardin Balcon

Description du bien


Biarritz - Parc D'Hiver - Vente belle villa d'environ 190m², auxquels s'ajoutent une véranda, un garage et une piscine le tout sur une parcelle arborée de 700m² au sein de ce quartier convoité offrant commerces, écoles et transports en communs.
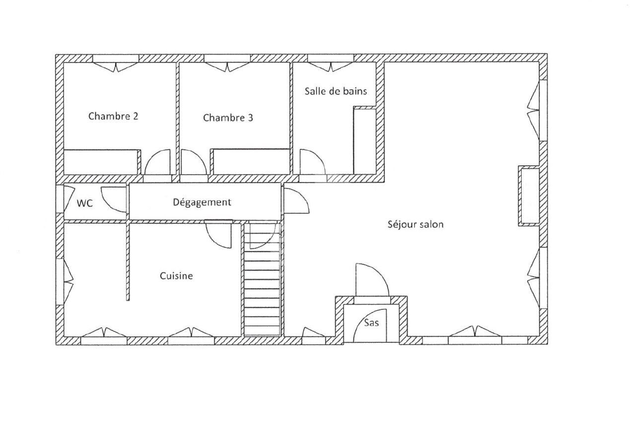
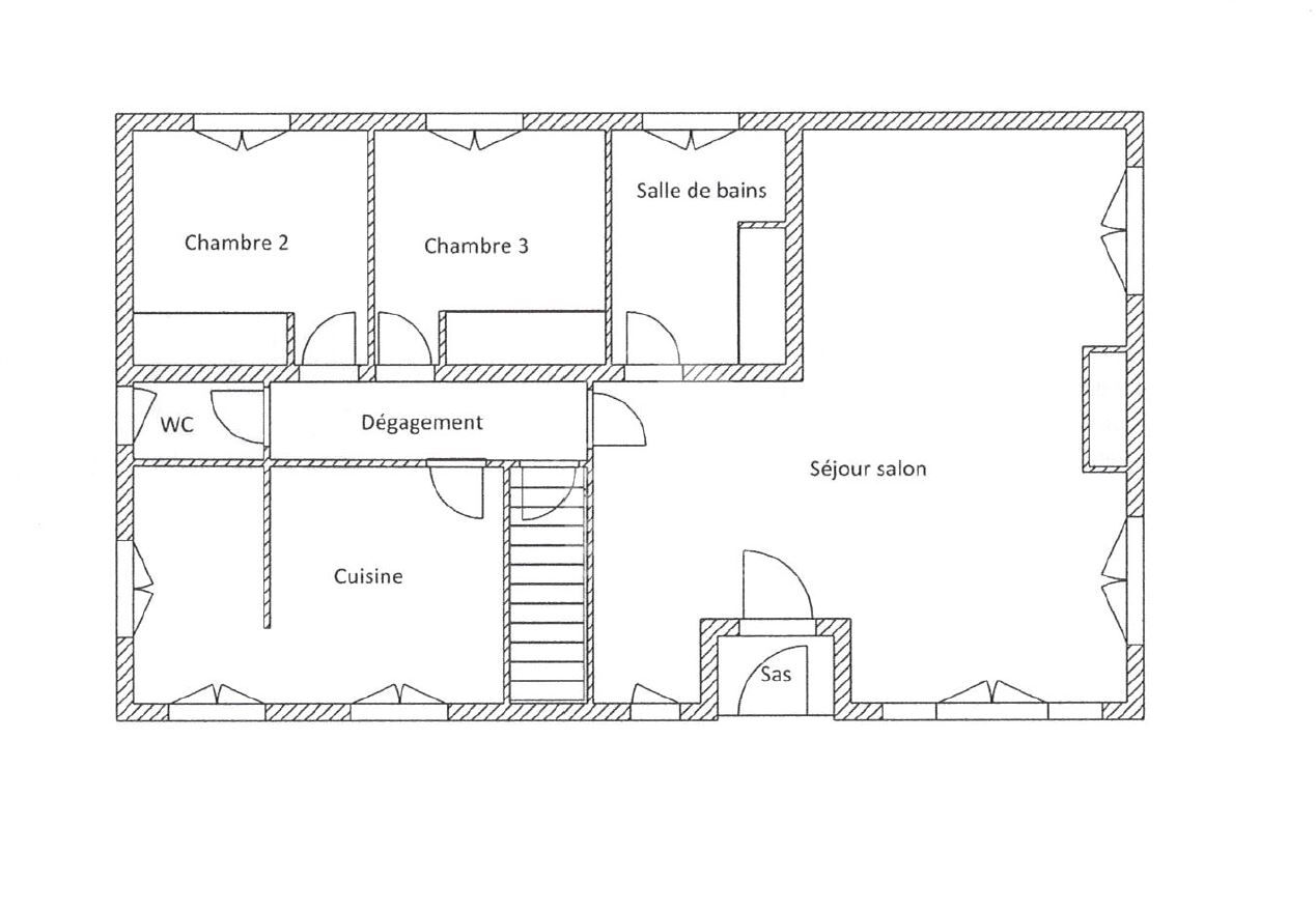
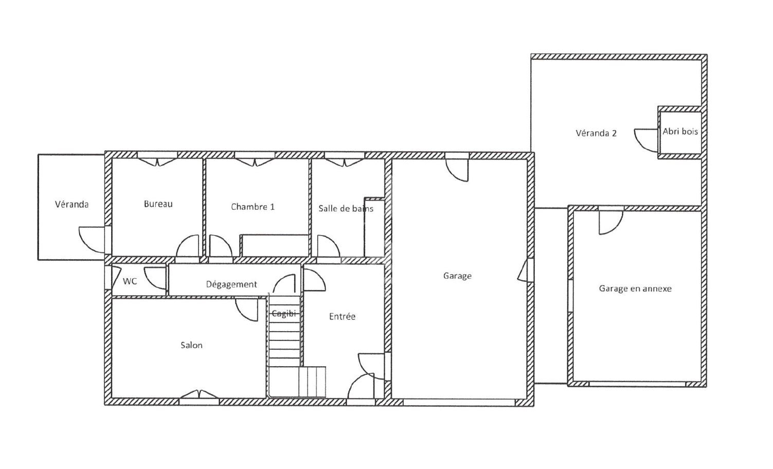
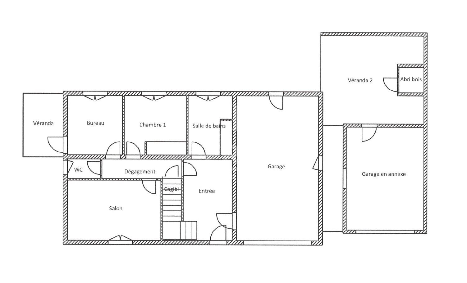
Au rez-de-chaussée, vous trouverez un hall d'accueil donnant accès à l'étage ainsi qu'à deux chambres, une salle de bain, des toilettes séparées ainsi que deux pièces à aménager selon vos besoins. L'étage offre près de 45m² de pièce de vie lumineuse et sans vis-à-vis ouvrant sur balcon, une cuisine, une salle à manger, deux chambres, une grande salle de bain et des WC séparées. La distribution intérieure et l'escalier extérieur permettent la création de deux appartements distincts. Une pompe à chaleur a récemment installée. Après un rafraichissement elle promet une vie des plus agréables.
ERA CAP OCEAN - 98 avenue de Biarritz - 64600 Anglet Téléphone : 05.59.41.42.30 Toutes nos annonces sur www.era-immobilier-anglet.fr

Céline FRESCHI (EI) Agent Commercial - Numéro RSAC : 829198696 - Bayonne.

Etat des risques et pollutions

Les informations sur les risques auxquels ce bien est exposé sont disponibles sur le site Géorisques : www.georisques.gouv.fr.

Caractéristiques du bien

Composition du bien

  • Type d'habitation : Maison
  • Nombre de chambres : 4
  • Nombre de salles de bain : 2
  • Cuisine : Type de cuisine Non communique

Aménagement du bien

  • Cave : Non
  • Garage / Parking : Non
    • Surface habitable : 187 m²

    Localisation du bien

    Ce bien n'est pas géolocalisé, pour connaitre sa géolocalisation, merci de contacter l'agence.

    Consommation énergétique

    • E (249 kWh/m² an)
      E (52 kgCO2/m².an)
      Plus d'info
      249
      52
      52
    • DPE réalisé après le 1er juillet 2021.
    • Entre 2470 € TTC / an et 3390 € TTC / an
      Non communiqué

    Nos professionnels vous accompagnent

    Contactez notre agence !

    98, avenue de Biarritz 64600 ANGLET

    Appeler l’agence Tél : 0559414230

    * Champs obligatoires

    Nous vous informons de l’existence de la liste d’opposition au démarchage téléphonique « BLOCTEL » sur laquelle vous pouvez vous inscrire (https://www.bloctel.gouv.fr).

    En complétant le formulaire «CONTACTEZ NOTRE AGENCE », je reconnais expressément que je consens au traitement de mes données personnelles et que je dispose du droit de retirer mon consentement à tout moment en m'adressant à support@fnaim.fr.
    En savoir plus sur la gestion de vos données et droits : consulter nos mentions légales, « article 5/ Données à caractère personnel ».

    En envoyant ce message, vous acceptez les conditions d'utilisation du site. Plus d'infos