Fnaim.fr
Menu

Acheter

Réf. LP63-XSJ-3U4

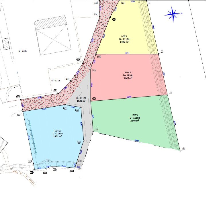
Achat Terrain 2 146m² STE COLOMBE 40700

39 000 Honoraires charge acquéreur inclus

Description du bien

Terrain proche de Saint Sever, venez implanter votre future maison sur ce beau terrain plat 2146 m2. Terrain constructible avec chemin d'accès. Assainissement individuel à prévoir, eau, télécom et électricité en bordure de terrain (terrain viabilisé). Ce terrain n'attend plus que votre projet n'hésitez pas à contacter votre AGENCE ORPI LUBET SAINT SEVER au 05.58.45.93.04
Référence agence : 686

Etat des risques et pollutions

Les informations sur les risques auxquels ce bien est exposé sont disponibles sur le site Géorisques : www.georisques.gouv.fr.

Caractéristiques du bien

Composition du bien

  • Type de bien : Terrain

Localisation du bien

STE COLOMBE (40700) , LANDES (40) - NOUVELLE-AQUITAINE

Ce bien n'est pas géolocalisé, pour connaitre sa géolocalisation, merci de contacter l'agence.

Nos professionnels vous accompagnent

Contactez notre agence !

10 Avenue Sadi Carnot 40000 MONT DE MARSAN

Appeler l’agence Tél : 05 58 75 20 06

* Champs obligatoires

Nous vous informons de l’existence de la liste d’opposition au démarchage téléphonique « BLOCTEL » sur laquelle vous pouvez vous inscrire (https://www.bloctel.gouv.fr).

En complétant le formulaire «CONTACTEZ NOTRE AGENCE », je reconnais expressément que je consens au traitement de mes données personnelles et que je dispose du droit de retirer mon consentement à tout moment en m'adressant à support@fnaim.fr.
En savoir plus sur la gestion de vos données et droits : consulter nos mentions légales, « article 5/ Données à caractère personnel ».

En envoyant ce message, vous acceptez les conditions d'utilisation du site. Plus d'infos