Fnaim.fr
Menu

Acheter

Visite virtuelle
Exclusivité
Réf. getkey_u_468291581

Achat Maison 6 pièces 167m² GENSAC LA PALLUE 16130

274 900 Honoraires charge acquéreur inclus : 5,7% TTC (260001 € hors honoraires)

5 chambres Jardin

Description du bien

Maison de Caractère à Gensac La Pallue - Environnement Bucolique
Située au 9 chemin du Gouffre, 16130 Gensac La Pallue, cette belle maison de caractère vous séduira par son cadre idyllique et son charme authentique.

Descriptif :
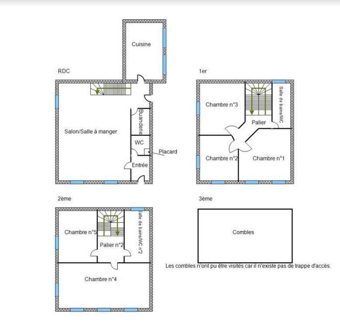
- Rez-de-chaussée : une entrée avec placard et WC, un vaste salon séjour lumineux avec emplacement prévu pour poêle, une cuisine aménagée et un cellier.
- 1er étage : trois chambres avec placards, une salle de bains avec WC.
- 2ème étage : deux chambres, une salle de bains avec WC.

Les atouts :
- Garage
- Jardin clos avec puits
- Chauffage au gaz de ville
- Assainissement tout à l'égout

Cette maison offre un potentiel certain et nécessite quelques travaux de rafraîchissement pour révéler tout son charme.

Venez découvrir ce havre de paix dans un environnement verdoyant, à seulement quelques minutes de Cognac !

IMPORTANT:
Chers clients: inutile d'aller déranger le vendeur !
Le propriétaire nous a sollicité pour le travail de commercialisation et de visites.

Chers confrères agents immobiliers & mandataires.
Si vous avez un client acquéreur pour ce bien ? contactez nous
Nous serons ravi de faire un inter-agence nous partagerons nos honoraires pour le plus grand bonheur de nos clients respectifs.

Honoraires inclus de 5.73% TTC à la charge de l'acquéreur. Prix hors honoraires 260 000 €. Classe énergie D, Classe climat D Montant estimé des dépenses annuelles d'énergie pour un usage standard : entre 2970.00 € et 4080.00 € sur les années 2021, 2022 et 2023 (abonnements compris). Les informations sur les risques auxquels ce bien est exposé sont disponibles sur le site Géorisques : georisques.gouv.fr.

Bien présenté par Agences de France par délégation.
Agences de France - SIREN : 899413603 - Titulaire de la carte T : 29012021000000009 non habilité à percevoir des fonds

Etat des risques et pollutions

Les informations sur les risques auxquels ce bien est exposé sont disponibles sur le site Géorisques : www.georisques.gouv.fr.

Caractéristiques du bien

Composition du bien

  • Type d'habitation : Maison
  • Nombre de chambres : 5
  • Nombre de salles de bain : 2
  • Cuisine : 19

Aménagement du bien

  • Cave : Non
  • Garage / Parking : Non
    • Surface habitable : 167 m²

    Localisation du bien

    GENSAC LA PALLUE (16130) , CHARENTE (16) - NOUVELLE-AQUITAINE

    Consommation énergétique

    • D (202 kWh/m² an)
      D (41 kgCO2/m².an)
      Plus d'info
      202
      41
      41
    • DPE réalisé après le 1er juillet 2021.
    • Entre 2970 € TTC / an et 4080 € TTC / an
      01/01/2021

    Nos professionnels vous accompagnent

    Contactez notre agence !

    38 rue Jim Sevellec 29200 BREST

    Appeler l’agence Tél : 06 88 18 36 89

    * Champs obligatoires

    Nous vous informons de l’existence de la liste d’opposition au démarchage téléphonique « BLOCTEL » sur laquelle vous pouvez vous inscrire (https://www.bloctel.gouv.fr).

    En complétant le formulaire «CONTACTEZ NOTRE AGENCE », je reconnais expressément que je consens au traitement de mes données personnelles et que je dispose du droit de retirer mon consentement à tout moment en m'adressant à support@fnaim.fr.
    En savoir plus sur la gestion de vos données et droits : consulter nos mentions légales, « article 5/ Données à caractère personnel ».

    En envoyant ce message, vous acceptez les conditions d'utilisation du site. Plus d'infos