Fnaim.fr
Menu

Acheter

Exclusivité
Réf. 4855-5562773

Achat Maison 8 pièces 160m² ARCENS 07310

199 000 Honoraires charge vendeur

3 chambres Jardin Balcon Parking / Garage

Description du bien

EXCLUSIVITÉ : Ardèche. Arcens. 20 mns Le Cheylard.

VILLA années 80 de 160 m² env. sur 1300 m² de terrain plat.

+ terrain de 2300 m² avec accès rivière.

Non-attenant joli pré de 2500 m² env. + bois.

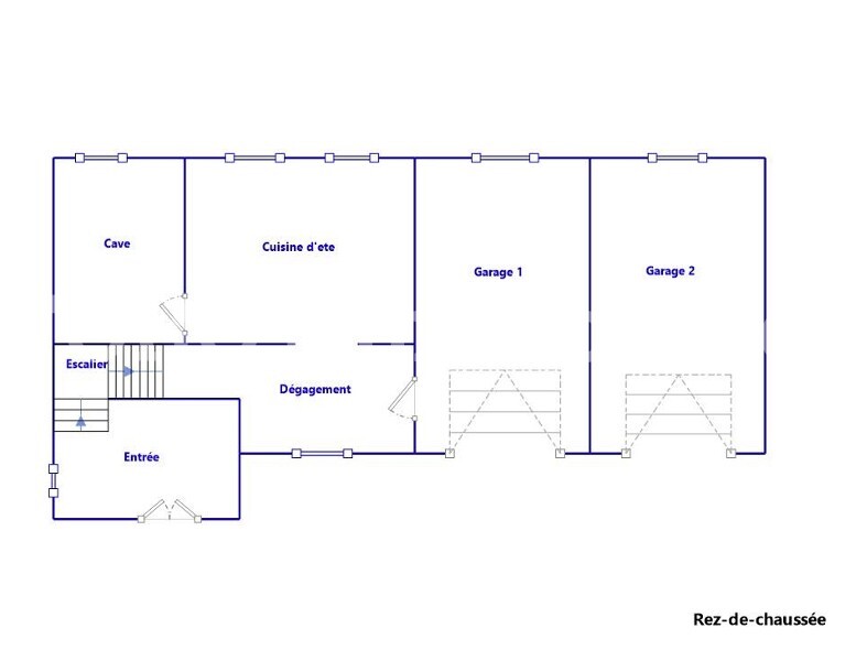
En rdc : hall, cuisine d'été (poss. studio), cave, 2 garages.

A l'étage : hall, cuisine, séjour + véranda (60 m2), 2 chambres, salle d'eau,wc.

Chauffage électrique + cheminée. Tout à l'égout.

Prix : 199.000 €. (honoraires charge vendeur)

CLASSE ÉNERGIE : F CLASSE CLIMAT C.
Logement à consommation énergétique excessive
Montant estimé des dépenses annuelles d'énergie pour un usage standard selon les prix de référence de 2021 à 2023 : 3540 à 4820 €.

Réf : 4855

Votre contact FOROT Immobilier : Thierry GIRARD au 04 75 06 40 02.

Etat des risques et pollutions

Les informations sur les risques auxquels ce bien est exposé sont disponibles sur le site Géorisques : www.georisques.gouv.fr.

Caractéristiques du bien

Composition du bien

  • Type d'habitation : Maison
  • Nombre de chambres : 3
  • Cuisine : 18

Aménagement du bien

  • Cave : Non
  • Garage / Parking : Oui
    • Surface habitable : 160 m²
    • Parking : Oui

    Localisation du bien

    ARCENS (07310) , ARDECHE (07) - AUVERGNE-RHÔNE-ALPES

    Consommation énergétique

    • G (422 kWh/m² an)
      C (13 kgCO2/m².an)
      Plus d'info
      422
      13
      13
    • DPE réalisé après le 1er juillet 2021.
    • Entre 3540 € TTC / an et 4820 € TTC / an
      Non communiqué
    • Logement à consommation énergétique excessive : classe G

    Nos professionnels vous accompagnent

    Contactez notre agence !

    14, Avenue Boissy d'Anglas 07270 LAMASTRE

    Appeler l’agence Tél : 04-75-29-43-71

    * Champs obligatoires

    Nous vous informons de l’existence de la liste d’opposition au démarchage téléphonique « BLOCTEL » sur laquelle vous pouvez vous inscrire (https://www.bloctel.gouv.fr).

    En complétant le formulaire «CONTACTEZ NOTRE AGENCE », je reconnais expressément que je consens au traitement de mes données personnelles et que je dispose du droit de retirer mon consentement à tout moment en m'adressant à support@fnaim.fr.
    En savoir plus sur la gestion de vos données et droits : consulter nos mentions légales, « article 5/ Données à caractère personnel ».

    En envoyant ce message, vous acceptez les conditions d'utilisation du site. Plus d'infos