Fnaim.fr
Menu

Acheter

Achat Appartement 5 pièces 123m² BOURGES 18000

149 900 Honoraires charge acquéreur inclus : 7,1% TTC (140001 € hors honoraires)

3 chambres Parking / Garage

Description du bien

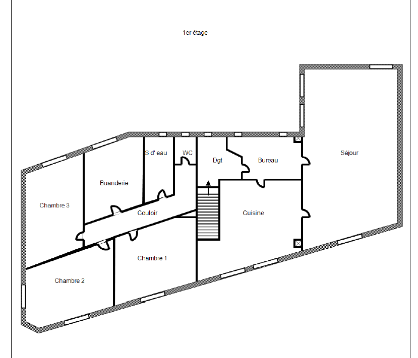
À deux pas de la rue d'Auron, découvrez ce bel appartement de 123 m2, situé au 1er et dernier étage d'une petite copropriété bénévole de seulement deux lots, sans charges hormis l'assurance de l'immeuble.
Il se compose d'un vaste séjour-salon lumineux de plus de 41 m2, d'une cuisine aménagée et équipée avec coin repas, ainsi que d'un espace nuit distinct comprenant trois chambres, une salle d'eau rénovée, un WC indépendant, une buanderie et de nombreux rangements. Les travaux d'isolation des combles et le double vitrage sont déjà réalisés.
L'appartement dispose également d'un garage attenant avec accès direct depuis son sas privatif isolé, d'une cave et d'une cour commune. En supplément, il est possible d'acquérir un grand garage de 30 m2.
Ce bien offre de nombreuses possibilités : résidence principale confortable, premier achat, projet de colocation étudiante grâce à la proximité de l'école Hubert de Curien et de l'Estacom, ou encore division en deux appartements indépendants.
Un emplacement recherché, de beaux volumes et un fort potentiel.

Etat des risques et pollutions

Les informations sur les risques auxquels ce bien est exposé sont disponibles sur le site Géorisques : www.georisques.gouv.fr.

Caractéristiques du bien

Composition du bien

  • Type d'habitation : Appartement
  • Cuisine : Equipée
  • Nombre de pièce(s) : 5
  • Nombre de chambre(s) : 3

Aménagement du bien

Extérieur

  • Terrasse : Non
  • Balcon : Non

Partie Commune

  • Ascenseur : Non
  • Surface habitable : 123 m²
  • Parking : Oui

Localisation du bien

BOURGES (18000) , CHER (18) - CENTRE-VAL-DE-LOIRE

Ce bien n'est pas géolocalisé, pour connaitre sa géolocalisation, merci de contacter l'agence.

Consommation énergétique

  • C (162 kWh/m² an)
    D (34 kgCO2/m².an)
    Plus d'info
    162
    34
    34
  • DPE réalisé après le 1er juillet 2021.
  • Entre 1811 € TTC / an et 2451 € TTC / an
    01/01/2021

Nos professionnels vous accompagnent

Contactez notre agence !

2 RUE DU FOUR AU ROI 18000 BOURGES

Appeler l’agence Tél : 02 48 27 27 95

* Champs obligatoires

Nous vous informons de l’existence de la liste d’opposition au démarchage téléphonique « BLOCTEL » sur laquelle vous pouvez vous inscrire (https://www.bloctel.gouv.fr).

En complétant le formulaire «CONTACTEZ NOTRE AGENCE », je reconnais expressément que je consens au traitement de mes données personnelles et que je dispose du droit de retirer mon consentement à tout moment en m'adressant à support@fnaim.fr.
En savoir plus sur la gestion de vos données et droits : consulter nos mentions légales, « article 5/ Données à caractère personnel ».

En envoyant ce message, vous acceptez les conditions d'utilisation du site. Plus d'infos