Fnaim.fr
Menu

Acheter

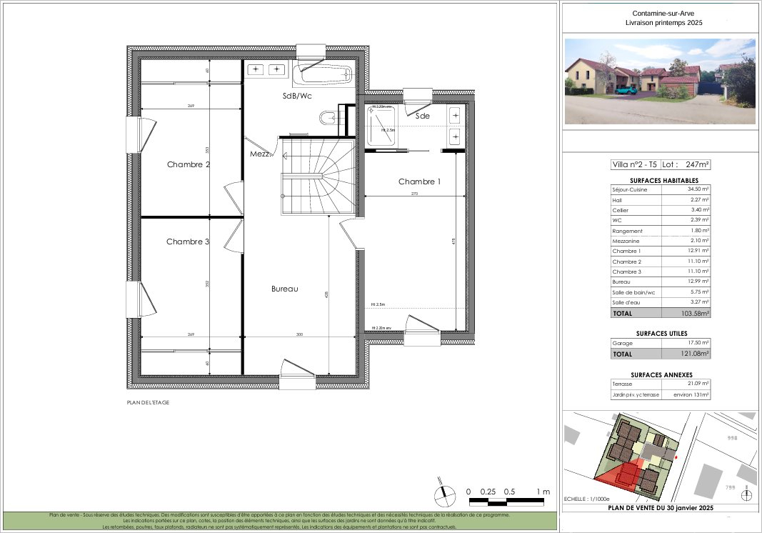
Achat Maison 5 pièces 103m²

515 000 Honoraires charge vendeur

3 chambres Jardin Parking / Garage

Description du bien


Villa contemporaine de 103 m² à Contamine-sur-Arve (74), dans un cadre verdoyant

Frais de notaire OFFERT jusqu'au 31 octobre 2025.

Située au coeur d'un environnement calme et verdoyant, cette villa de 103 m² répartie sur deux niveaux vous séduira par ses prestations de qualité et la possibilité de personnaliser les matériaux selon vos goûts.

Au rez-de-chaussée, vous trouverez un hall d'entrée, un bel espace de vie lumineux de 34,50 m² avec séjour et cuisine ouverte, un cellier, des WC indépendants ainsi qu'un espace de rangement.

L'étage propose une configuration modulable selon vos besoins :

Version standard : 4 chambres, dont une suite parentale avec salle d'eau privative, une salle de bain avec WC et une mezzanine.

Autres possibilités : une suite parentale, 3 chambres ou bien une suite parentale, 2 chambres et un bureau.

Le confort est assuré par un système de chauffage performant via pompe à chaleur.

À l'extérieur, vous profiterez d'un jardin privatif de 135 m² exposé ouest, idéal pour vos moments de détente, ainsi qu'une terrasse de 21,90 m². Un garage de 17,90 m² complète le bien, avec une mitoyenneté limitée à cette seule partie. Un local à vélo est également à disposition.

Une situation idéale :
Contamine-sur-Arve bénéficie d'un emplacement stratégique, à seulement 8 km de Bonneville, 11 km d'Annemasse, 13 km de La Roche-sur-Foron, 15 km de Genève, 37 km d'Annecy et 58 km du Mont-Blanc. La commune est facilement accessible grâce à un réseau routier bien développé.

Etat des risques et pollutions

Les informations sur les risques auxquels ce bien est exposé sont disponibles sur le site Géorisques : www.georisques.gouv.fr.

Caractéristiques du bien

Composition du bien

  • Type d'habitation : Maison
  • Nombre de chambres : 3
  • Nombre de salles de bain : 1
  • Cuisine : Type de cuisine Non communique

Aménagement du bien

  • Cave : Non
  • Garage / Parking : Oui
    • Surface habitable : 103 m²
    • Parking : Oui

    Localisation du bien

    Ce bien n'est pas géolocalisé, pour connaitre sa géolocalisation, merci de contacter l'agence.

    Consommation énergétique

    DPE non soumis
    mention indiquée sous la responsabilité de l’agence immobilière

    Nos professionnels vous accompagnent

    Contactez notre agence !

    20 RUE VICTOR HUGO 69250 NEUVILLE SUR SAONE

    Appeler l’agence Tél : 0683357710

    * Champs obligatoires

    Nous vous informons de l’existence de la liste d’opposition au démarchage téléphonique « BLOCTEL » sur laquelle vous pouvez vous inscrire (https://www.bloctel.gouv.fr).

    En complétant le formulaire «CONTACTEZ NOTRE AGENCE », je reconnais expressément que je consens au traitement de mes données personnelles et que je dispose du droit de retirer mon consentement à tout moment en m'adressant à support@fnaim.fr.
    En savoir plus sur la gestion de vos données et droits : consulter nos mentions légales, « article 5/ Données à caractère personnel ».

    En envoyant ce message, vous acceptez les conditions d'utilisation du site. Plus d'infos