Fnaim.fr
Menu

Acheter

Visite virtuelle
Exclusivité
Réf. DOM11501

Achat Maison 4 pièces 85m² ST DENIS 93200

299 000 Honoraires charge vendeur

3 chambres Jardin

Description du bien

Liberkeys, via son agent spécialisé du secteur M. Nicolas Vallée vous propose de découvrir cette charmante maison à rénover entièrement de 85 m² située dans un quartier paisible de Saint-Denis. Idéalement placée à proximité du métro Pleyel, accessible en seulement 600 mètres, cette propriété séduira aussi bien les familles que les investisseurs en quête d'un cadre de vie agréable et pratique.

Maison comportant des travaux, nombreuses possibilités.
Devis effectués : entre 80.000€ et 150.000€ selon projet.

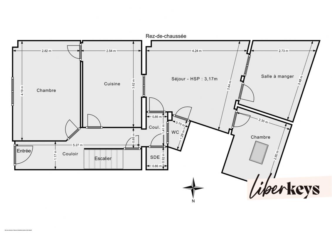
Elle comprend: entrée sur courette, au rdc : entrée, une chambre, cuisine, salle à manger, wc, salle d'eau, 2 bureaux, accès sous sol (15m²).
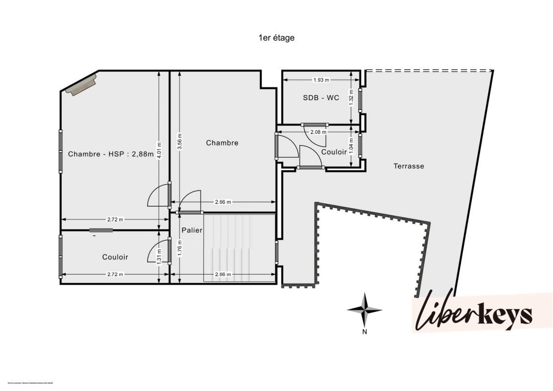
A l'étage : Cuisine, 2 chambres, une salle de bains avec wc, accès à la terrasse de 28m².
Possibilité de tous réagencer, surélevé ou de créer 2 appartements.

La localisation de cette maison est un véritable atout avec un accès rapide aux métros, commerces de proximité, restaurants et établissements scolaires de qualité. Les familles apprécieront la proximité avec les espaces verts, parfaits pour les sorties dominicales.

L'atmosphère conviviale de ce quartier est renforcée par la dynamique culturelle de Saint-Denis, à deux pas de monuments historiques tels que la Basilique Saint-Denis, pour des enrichissements culturels au quotidien.

Ce bien vous plaît ? Visitez-le virtuellement en 3D sur le site de Liberkeys ou contactez directement votre conseiller. Référence annonce : DOM11501. Date de réalisation du diagnostic : 19/12/2023. Les honoraires sont à la charge du vendeur.

Etat des risques et pollutions

Les informations sur les risques auxquels ce bien est exposé sont disponibles sur le site Géorisques : www.georisques.gouv.fr.

Caractéristiques du bien

Composition du bien

  • Type d'habitation : Maison
  • Nombre de chambres : 3
  • Nombre de salles de bain : 1
  • Cuisine : 337

Aménagement du bien

  • Cave : Non
  • Garage / Parking : Non
    • Surface habitable : 85 m²

    Localisation du bien

    ST DENIS (93200) , SEINE-SAINT-DENIS (93) - ILE-DE-FRANCE

    Consommation énergétique

    • G (477 kWh/m² an)
      G (105 kgCO2/m².an)
      Plus d'info
      477
      105
      105
    • DPE réalisé après le 1er juillet 2021.
    • Entre 2440 € TTC / an et 3350 € TTC / an
      Non communiqué
    • Logement à consommation énergétique excessive : classe G

    Nos professionnels vous accompagnent

    Contactez notre agence !

    20 RUE DE MONTHOLON 75009 PARIS 09

    Appeler l’agence Tél : 07 62 66 62 09

    * Champs obligatoires

    Nous vous informons de l’existence de la liste d’opposition au démarchage téléphonique « BLOCTEL » sur laquelle vous pouvez vous inscrire (https://www.bloctel.gouv.fr).

    En complétant le formulaire «CONTACTEZ NOTRE AGENCE », je reconnais expressément que je consens au traitement de mes données personnelles et que je dispose du droit de retirer mon consentement à tout moment en m'adressant à support@fnaim.fr.
    En savoir plus sur la gestion de vos données et droits : consulter nos mentions légales, « article 5/ Données à caractère personnel ».

    En envoyant ce message, vous acceptez les conditions d'utilisation du site. Plus d'infos