Fnaim.fr
Menu

Achat Appartement 2 pièces 36m² URRUGNE 64122

175 000 Honoraires charge acquéreur inclus : 5.4% TTC (165515 € hors honoraires)

1 chambre Parking / Garage

Description du bien

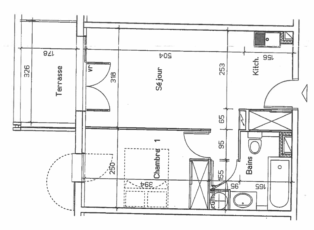
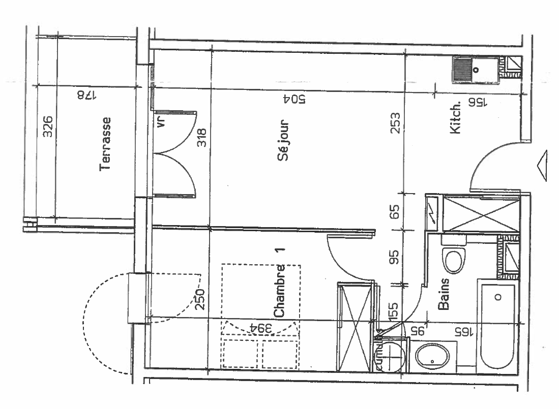
URRUGNE près centre bourg, dans jolie résidence au calme, agréable T2 avec Terrasse Vue sur la Rhune et 2 Parkings extérieurs privatifs.
L'appartement est composé d'une entrée donnant sur le Séjour avec Cuisine attenante. Accès sur Terrasse. Placards dans l'entrée. 1 Chambre avec placard. 1 Salle de bains avec WC. 2 Emplacements de Sationnement extérieur privatifs.

Etat des risques et pollutions

Les informations sur les risques auxquels ce bien est exposé sont disponibles sur le site Géorisques : www.georisques.gouv.fr.

Caractéristiques du bien

Composition du bien

  • Type d'habitation : Appartement
  • Cuisine : Américaine
  • Nombre de pièce(s) : 2
  • Nombre de chambre(s) : 1
  • Salles de bain : 1

Aménagement du bien

Extérieur

  • Terrasse : Non
  • Balcon : Non

Partie Commune

  • Ascenseur : Non
  • Surface habitable : 36 m²
  • Parking : Oui

Localisation du bien

URRUGNE (64122) , PYRENEES-ATLANTIQUES (64) - NOUVELLE-AQUITAINE

Ce bien n'est pas géolocalisé, pour connaitre sa géolocalisation, merci de contacter l'agence.

Consommation énergétique

  • C (147 kWh/m² an)
    A (4 kgCO2/m².an)
    Plus d'info
    147
    4
    4
  • DPE réalisé après le 1er juillet 2021.
  • Entre 513 € TTC / an et 693 € TTC / an
    Non communiqué

Nos professionnels vous accompagnent

Contactez notre agence !

20 RUE DE LA BERGERIE 64200 BIARRITZ

Appeler l’agence Tél : 05.59.24.19.19

* Champs obligatoires

Nous vous informons de l’existence de la liste d’opposition au démarchage téléphonique « BLOCTEL » sur laquelle vous pouvez vous inscrire (https://www.bloctel.gouv.fr).

En complétant le formulaire «CONTACTEZ NOTRE AGENCE », je reconnais expressément que je consens au traitement de mes données personnelles et que je dispose du droit de retirer mon consentement à tout moment en m'adressant à support@fnaim.fr.
En savoir plus sur la gestion de vos données et droits : consulter nos mentions légales, « article 5/ Données à caractère personnel ».

En envoyant ce message, vous acceptez les conditions d'utilisation du site. Plus d'infos