Fnaim.fr
Menu

Réf. UF-A30046OVI06

Achat Appartement 5 pièces 124m² BEAUSOLEIL 06240

2 463 000 Honoraires charge vendeur

4 chambres

Description du bien

A30046OVI06 - Beausoleil : À sa création en 1904, on hésita à nommer la ville Monte-Carlo Supérieur, Beauséjour ou encore Mont-Fleuri, mais c'est finalement son caractère solaire qui valut à Beausoleil l'évidence de son nom.
Entre Nice et la frontière italienne, au coeur de la partie la plus huppée de la Côte d'Azur, Beausoleil résume à elle seule toute l'excellence d'un art de vivre prisé aux portes de Monaco.

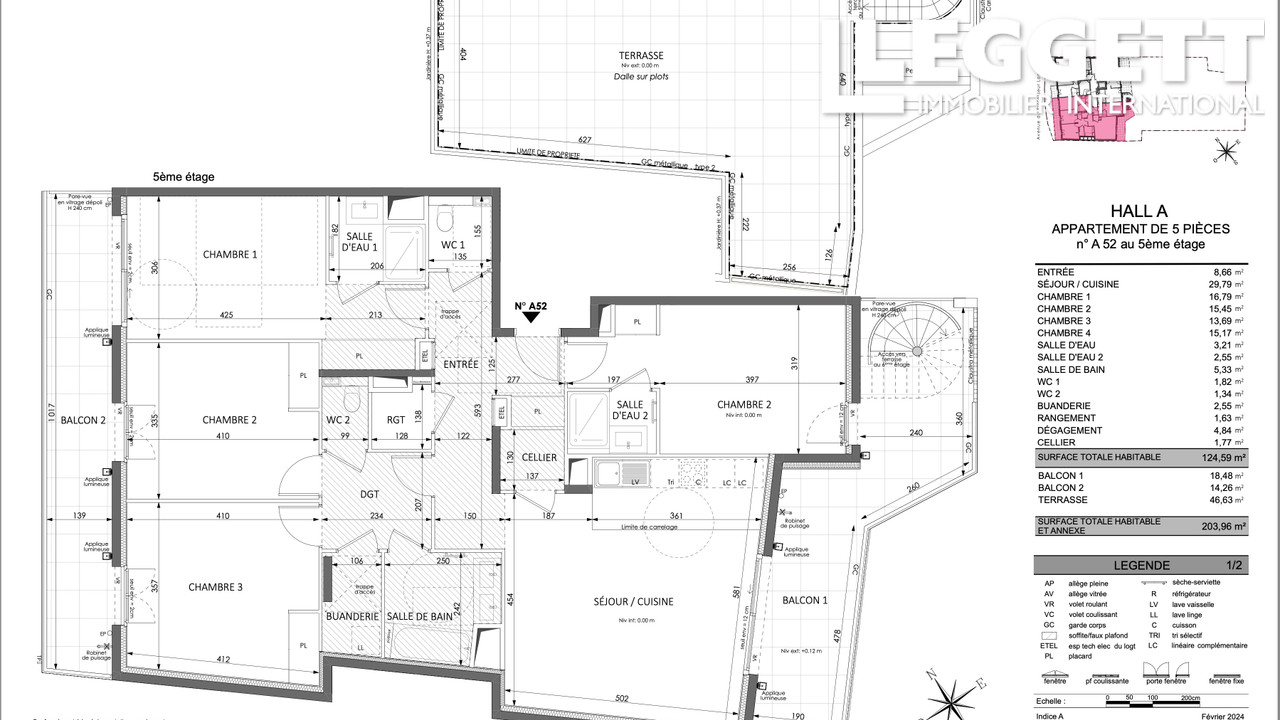
Appartement situé en dernier étage avec terrasse privative sur le toit, il comprend : une entrée, un séjour avec une terrasse attenante, cuisine ouverte, 4 chambres dont 3 avec salle de douche, 1 salle de bains, 3 wc, nombreux rangements. Toutes les pièces ouvrent sur une terrasse ou un balcon.
Terrasse sur le toit de 50m2.
Double garage en sous-sol.
Prestations contemporaines et luxueuses.
Projet réalisé par un promoteur français de renommée internationale.
Livraison 3ème trimestre 2027

Les informations sur les risques auxquels ce bien est exposé sont disponibles sur le site Géorisques : https://www.georisques.gouv.fr

Etat des risques et pollutions

Les informations sur les risques auxquels ce bien est exposé sont disponibles sur le site Géorisques : www.georisques.gouv.fr.

Caractéristiques du bien

Composition du bien

  • Type d'habitation : Appartement
  • Cuisine : Simple
  • Nombre de pièce(s) : 5
  • Nombre de chambre(s) : 4
  • Salles de bain : 3

Aménagement du bien

Extérieur

  • Terrasse : Non
  • Balcon : Non

Partie Commune

  • Ascenseur : Non
  • Surface habitable : 124 m²

Localisation du bien

BEAUSOLEIL (06240) , ALPES-MARITIMES (06) - PROVENCE-ALPES-COTE-D-AZUR

Ce bien n'est pas géolocalisé, pour connaitre sa géolocalisation, merci de contacter l'agence.

Consommation énergétique

DPE non soumis
mention indiquée sous la responsabilité de l’agence immobilière

Nos professionnels vous accompagnent

Contactez notre agence !

42 RUE DE RIBERAC 24340 LA ROCHEBEAUCOURT ET ARGENTINE

Appeler l’agence Tél : 05 53 56 62 54

* Champs obligatoires

Nous vous informons de l’existence de la liste d’opposition au démarchage téléphonique « BLOCTEL » sur laquelle vous pouvez vous inscrire (https://www.bloctel.gouv.fr).

En complétant le formulaire «CONTACTEZ NOTRE AGENCE », je reconnais expressément que je consens au traitement de mes données personnelles et que je dispose du droit de retirer mon consentement à tout moment en m'adressant à support@fnaim.fr.
En savoir plus sur la gestion de vos données et droits : consulter nos mentions légales, « article 5/ Données à caractère personnel ».

En envoyant ce message, vous acceptez les conditions d'utilisation du site. Plus d'infos