Fnaim.fr
Menu

Acheter

Réf. 84053896

Achat Terrain 2 059m² STE LUCIE DE PORTO VECCHIO 20144

650 000 Honoraires charge vendeur

Description du bien

RV842-E7 – Arasu

À deux pas de la baie de Saint-Cyprien, ce terrain d’environ 2 059 m² fait partie d’un lotissement confidentiel de 15 lots, au cœur d’un cadre naturel et résidentiel.

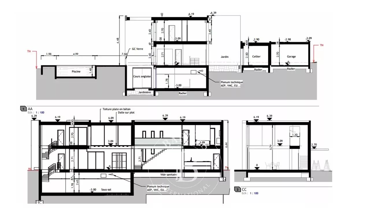
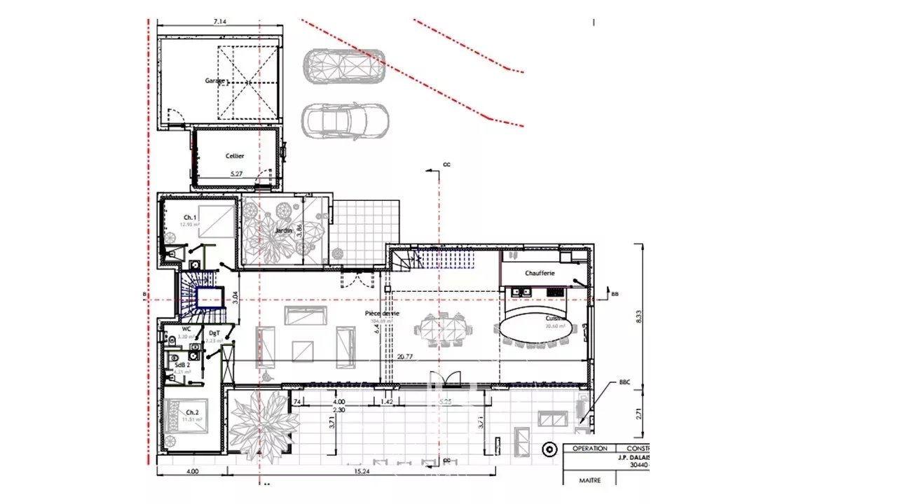
Vendu avec un permis de construire purgé pour une villa de 240 m², un garage de 50 m² et une piscine de 65 m². Le suivi du chantier est assuré par l’architecte du domaine.

Terrain viabilisé et raccordé au tout-à-l’égout, idéal pour profiter de la douceur de vivre corse entre mer et maquis.

Proche de l’aéroport de Figari et du port de Porto-Vecchio, emplacement privilégié pour une résidence secondaire ou un projet familial.

Honoraires à la charge du vendeur.

Frais de permis et maîtrise d’œuvre en supplément.

Etat des risques et pollutions

Les informations sur les risques auxquels ce bien est exposé sont disponibles sur le site Géorisques : www.georisques.gouv.fr.

Caractéristiques du bien

Composition du bien

  • Type de bien : Terrain

Localisation du bien

STE LUCIE DE PORTO VECCHIO (20144) , CORSE-DU-SUD (2A)

Ce bien n'est pas géolocalisé, pour connaitre sa géolocalisation, merci de contacter l'agence.

Nos professionnels vous accompagnent

Contactez notre agence !

ROUTE DE CALA ROSSA 20137 LECCI

Appeler l’agence Tél : +33 4 95 76 16 16

* Champs obligatoires

Nous vous informons de l’existence de la liste d’opposition au démarchage téléphonique « BLOCTEL » sur laquelle vous pouvez vous inscrire (https://www.bloctel.gouv.fr).

En complétant le formulaire «CONTACTEZ NOTRE AGENCE », je reconnais expressément que je consens au traitement de mes données personnelles et que je dispose du droit de retirer mon consentement à tout moment en m'adressant à support@fnaim.fr.
En savoir plus sur la gestion de vos données et droits : consulter nos mentions légales, « article 5/ Données à caractère personnel ».

En envoyant ce message, vous acceptez les conditions d'utilisation du site. Plus d'infos