Fnaim.fr
Menu

Acheter

Réf. 83475176

Achat Terrain 2 499m² STE LUCIE DE PORTO VECCHIO 20144

650 000 Honoraires charge vendeur

Description du bien

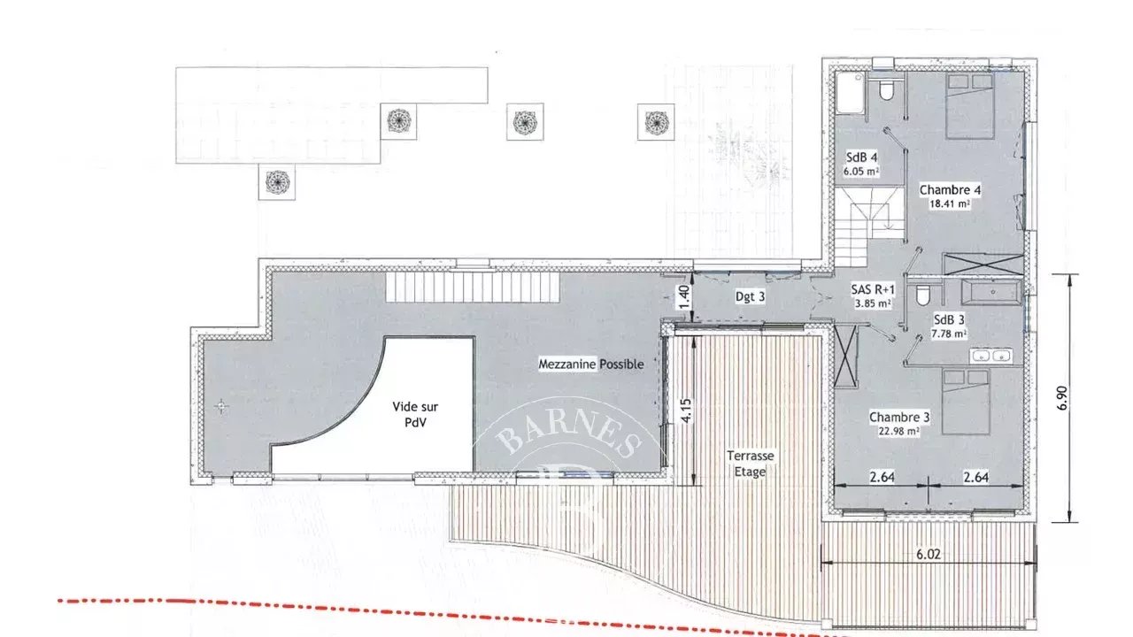
RV842-E2 – Arasu

Dans la baie de Saint Cyprien, à deux pas de la mer, ce terrain d'environ 2 499 m² offre un cadre de vie exceptionnel.

Le projet inclut une villa contemporaine de 210 m² avec hall d’entrée, séjour lumineux avec cuisine ouverte, 2 chambres, salle de douche, cellier, 2 garages, et une suite parentale avec dressing et salle d’eau à l’étage. Une piscine de 63 m² complète ce havre de paix.

Situé dans un lotissement de 15 lots viabilisés, au calme et à quelques minutes à pied de la plage, proche de l’aéroport de Figari et du port de Porto Vecchio.

Honoraires à la charge du vendeur.

Etat des risques et pollutions

Les informations sur les risques auxquels ce bien est exposé sont disponibles sur le site Géorisques : www.georisques.gouv.fr.

Caractéristiques du bien

Composition du bien

  • Type de bien : Terrain

Localisation du bien

STE LUCIE DE PORTO VECCHIO (20144) , CORSE-DU-SUD (2A)

Ce bien n'est pas géolocalisé, pour connaitre sa géolocalisation, merci de contacter l'agence.

Nos professionnels vous accompagnent

Contactez notre agence !

ROUTE DE CALA ROSSA 20137 LECCI

Appeler l’agence Tél : +33 4 95 76 16 16

* Champs obligatoires

Nous vous informons de l’existence de la liste d’opposition au démarchage téléphonique « BLOCTEL » sur laquelle vous pouvez vous inscrire (https://www.bloctel.gouv.fr).

En complétant le formulaire «CONTACTEZ NOTRE AGENCE », je reconnais expressément que je consens au traitement de mes données personnelles et que je dispose du droit de retirer mon consentement à tout moment en m'adressant à support@fnaim.fr.
En savoir plus sur la gestion de vos données et droits : consulter nos mentions légales, « article 5/ Données à caractère personnel ».

En envoyant ce message, vous acceptez les conditions d'utilisation du site. Plus d'infos