Fnaim.fr
Menu

Réf. UF-A25371JAB74

Achat Appartement 3 pièces 66m² ABONDANCE 74360

396 500 Honoraires charge vendeur

2 chambres

Description du bien

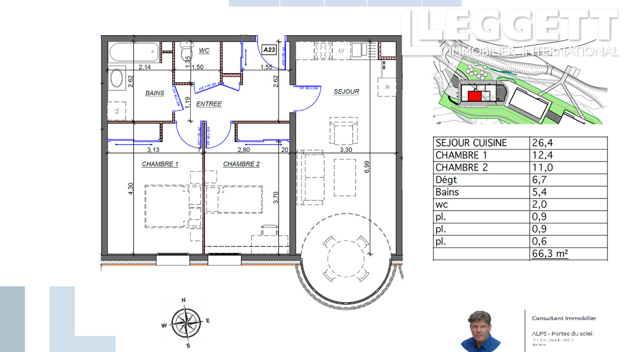
A25371JAB74 - Les Chalets d'Offaz, un programme de charme bénéficiant d'un emplacement exceptionnel en front de neige, au coeur du village d'Abondance en Haute-Savoie. Situé à seulement 30 minutes du lac Léman, cet appartement d'exception offre un cadre de vie unique entre montagne et lac. Niché dans cette résidence exposée plein sud, ce magnifique appartement de 66.30m² est situé au 2e étage et dispose d'un espace fenêtre circulaire qui réinvente la relation intérieur/extérieur avec une vue panoramique. Il comprend une entrée avec dressing, un vaste séjour de 26,40 m² avec cuisine ouverte, deux chambres, une salle de bain ainsi qu'un WC séparé. une Cave et un casier à skis viennent compléter ce bien. possibilité d'achat d'un box fermé . Il est également possible d'acquérir l'appartement prêt à décorer, vous permettant ainsi de l'aménager entièrement à votre goût, tout en bénéficiant d'un prix plus attractif de 338 800 €.

Les informations sur les risques auxquels ce bien est exposé sont disponibles sur le site Géorisques : https://www.georisques.gouv.fr

Etat des risques et pollutions

Les informations sur les risques auxquels ce bien est exposé sont disponibles sur le site Géorisques : www.georisques.gouv.fr.

Caractéristiques du bien

Composition du bien

  • Type d'habitation : Appartement
  • Cuisine : Simple
  • Nombre de pièce(s) : 3
  • Nombre de chambre(s) : 2
  • Salles de bain : 1

Aménagement du bien

Extérieur

  • Terrasse : Non
  • Balcon : Non

Partie Commune

  • Ascenseur : Non
  • Surface habitable : 66 m²

Localisation du bien

ABONDANCE (74360) , HAUTE-SAVOIE (74) - AUVERGNE-RHÔNE-ALPES

Ce bien n'est pas géolocalisé, pour connaitre sa géolocalisation, merci de contacter l'agence.

Consommation énergétique

DPE non soumis
mention indiquée sous la responsabilité de l’agence immobilière

Nos professionnels vous accompagnent

Contactez notre agence !

42 RUE DE RIBERAC 24340 LA ROCHEBEAUCOURT ET ARGENTINE

Appeler l’agence Tél : 05 53 56 62 54

* Champs obligatoires

Nous vous informons de l’existence de la liste d’opposition au démarchage téléphonique « BLOCTEL » sur laquelle vous pouvez vous inscrire (https://www.bloctel.gouv.fr).

En complétant le formulaire «CONTACTEZ NOTRE AGENCE », je reconnais expressément que je consens au traitement de mes données personnelles et que je dispose du droit de retirer mon consentement à tout moment en m'adressant à support@fnaim.fr.
En savoir plus sur la gestion de vos données et droits : consulter nos mentions légales, « article 5/ Données à caractère personnel ».

En envoyant ce message, vous acceptez les conditions d'utilisation du site. Plus d'infos