Fnaim.fr
Menu

Acheter

Réf. 76_29831

Achat Local Professionnel 280m² LE HAVRE 76600

350 000 Honoraires charge vendeur

Description du bien

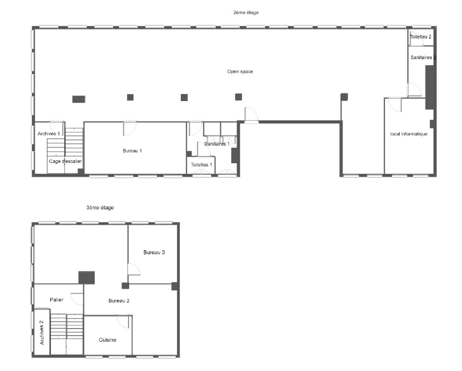
Situé en centre-ville et à proximité de la gare et du Palais de Justice, au pied du tramway, au 2ème et 3ème étage (duplex) d'un immeuble en copropriété à usage mixte, un plateau de bureaux d'environ 280 m² (203 m² au 2ème étage + 77 m² au 3ème étage).Le plateau est composé d'un open-space, de 4 bureaux, d'un local technique, de locaux d'archives et de sanitaires privatifs.* Bureaux lumineux.
* Chauffage collectif gaz.
* Faux-plafond avec luminaires.
* Moquette au sol.
* Câblage informatique.Cave d'environ 60 m² (dont 15 m² de dégagement), non comptabilisée dans la surface.2 places de parking incluses, situées dans la cour extérieure.
Possibilité d'acheter 3 places supplémentaires en sous-sol.Ce prix de vente s'entend HD (350 000 Euros) et honoraires HT inclus à la charge du vendeur.Retrouvez toutes nos annonces sur notre site internet LEM CBRE.

Etat des risques et pollutions

Les informations sur les risques auxquels ce bien est exposé sont disponibles sur le site Géorisques : www.georisques.gouv.fr.

Caractéristiques du bien

Composition du bien

  • Surface totale : 280 m²
  • Surface utile : 280 m²

Informations sur la copropriété

  • Bien soumis au statut de la copropriété
  • Procédure en cours : Non

Consommation énergétique

  • C (185 kWh/m² an)
    Non communiqué
    Plus d'info
    185
  • DPE réalisé avant le 1er juillet 2021.
  • Non communiqué
    Non communiqué

Nos professionnels vous accompagnent

Contactez notre agence !

57, BOULEVARD DES BELGES 76000 ROUEN

Appeler l’agence Tél : 02.35.44.73.75

* Champs obligatoires

Nous vous informons de l’existence de la liste d’opposition au démarchage téléphonique « BLOCTEL » sur laquelle vous pouvez vous inscrire (https://www.bloctel.gouv.fr).

En complétant le formulaire «CONTACTEZ NOTRE AGENCE », je reconnais expressément que je consens au traitement de mes données personnelles et que je dispose du droit de retirer mon consentement à tout moment en m'adressant à support@fnaim.fr.
En savoir plus sur la gestion de vos données et droits : consulter nos mentions légales, « article 5/ Données à caractère personnel ».

En envoyant ce message, vous acceptez les conditions d'utilisation du site. Plus d'infos