Fnaim.fr
Menu

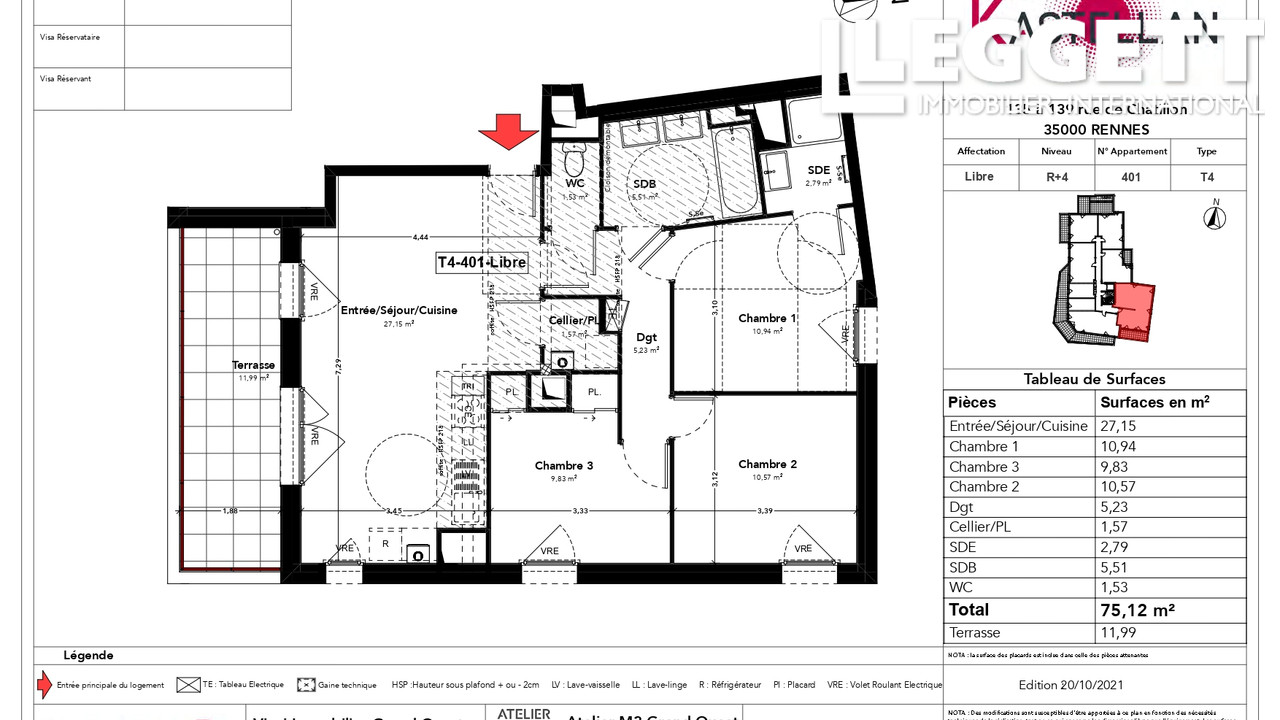
Réf. UF-A13418

Achat Appartement 4 pièces 75m² RENNES 35000

459 900 Honoraires charge vendeur

3 chambres

Description du bien

A13418 - Le nouveau Rennes se déplace vers la magnifique gare TGV et son quartier d'affaires EuroRennes, centre névralgique de la vie et des connexions de la capitale bretonne. C'est à deux pas de ce nouveau centre, au calme, dans le très prisé quartier Sainte Thérèse que LE KASTELLAN va s'ériger. Une, des prestations soignées, l'accès à une multitude de services, (commerces, métro à proximité, ...). Voilà les attraits d'une ville dynamique, constamment sur le podium des villes préférées des français.

D'autres biens de ce type (T4) sont disponibles, afin d'avoir plus de renseignements veuillez contacter l'agence.

Retrouvez notre brochure dédiée à la VEFA Le Kastellan: https://84dds8rsbi0c.swipepages.net/dev-rennes

Les informations sur les risques auxquels ce bien est exposé sont disponibles sur le site Géorisques : https://www.georisques.gouv.fr

Etat des risques et pollutions

Les informations sur les risques auxquels ce bien est exposé sont disponibles sur le site Géorisques : www.georisques.gouv.fr.

Caractéristiques du bien

Composition du bien

  • Type d'habitation : Appartement
  • Cuisine : Simple
  • Nombre de pièce(s) : 4
  • Nombre de chambre(s) : 3
  • Salles de bain : 2

Aménagement du bien

Extérieur

  • Terrasse : Non
  • Balcon : Non

Partie Commune

  • Ascenseur : Non
  • Surface habitable : 75 m²

Localisation du bien

RENNES (35000) , ILLE-ET-VILAINE (35) - BRETAGNE

Ce bien n'est pas géolocalisé, pour connaitre sa géolocalisation, merci de contacter l'agence.

Consommation énergétique

DPE non soumis
mention indiquée sous la responsabilité de l’agence immobilière

Nos professionnels vous accompagnent

Contactez notre agence !

42 RUE DE RIBERAC 24340 LA ROCHEBEAUCOURT ET ARGENTINE

Appeler l’agence Tél : 05 53 56 62 54

* Champs obligatoires

Nous vous informons de l’existence de la liste d’opposition au démarchage téléphonique « BLOCTEL » sur laquelle vous pouvez vous inscrire (https://www.bloctel.gouv.fr).

En complétant le formulaire «CONTACTEZ NOTRE AGENCE », je reconnais expressément que je consens au traitement de mes données personnelles et que je dispose du droit de retirer mon consentement à tout moment en m'adressant à support@fnaim.fr.
En savoir plus sur la gestion de vos données et droits : consulter nos mentions légales, « article 5/ Données à caractère personnel ».

En envoyant ce message, vous acceptez les conditions d'utilisation du site. Plus d'infos