Fnaim.fr
Menu

Exclusivité
Réf. 189Sylvestre

Achat Appartement 3 pièces 64m²

460 000 Honoraires charge acquéreur inclus : 4.6% TTC (439070 € hors honoraires)

2 chambres Ascenseur Parking / Garage

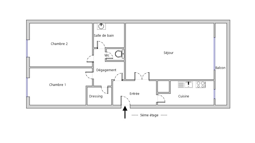
Description du bien


Le cabinet THISSE vous propose ce 3 pièces de 64 m² traversant, lumineux et ensoleillé au 5éme étage avec ascenseur dans une résidence moderne 1970 avec gardien.
Plan fonctionnel sans aucune perte de place.

Le bien comprend une entrée - un séjour de 19.90 m² ouvert sur balcon de 6 m² - cuisine 7.7 m² ( possibilité d'ouvrir sur séjour soit pièce à vivre 27.70 m ² ) - 2 chambres - 1 dressing - 1 salle de bain - WC séparés - cave - Chauffage et eau chaude collective ( gaz naturel ) - parking en sous -sol inclus accessible par ascenseur
8 min à pied gare Bécon les Bruyéres ou Asnières sur seine
Bien vendu occupé bail en cours jusqu'au 01/06/2027

Bien avec travaux à prévoir notamment double vitrage / DPE F

Bien soumis au statut de la copropriété - nb de lot : - syndic : Cabinet DUBREUIL - quote-part annuelles de charges : 4200 Euro dont 3900 Euro récupérables sur locataires.
Pour une visite contacter Geoffroy 0624987186

Etat des risques et pollutions

Les informations sur les risques auxquels ce bien est exposé sont disponibles sur le site Géorisques : www.georisques.gouv.fr.

Caractéristiques du bien

Composition du bien

  • Type d'habitation : Appartement
  • Cuisine : Type de cuisine Non communique
  • Nombre de pièce(s) : 3
  • Nombre de chambre(s) : 2
  • Salles de bain : 1

Aménagement du bien

Extérieur

  • Terrasse : Non
  • Balcon : Non

Partie Commune

  • Ascenseur : Oui
  • Surface habitable : 64 m²
  • Parking : Oui

Localisation du bien

Ce bien n'est pas géolocalisé, pour connaitre sa géolocalisation, merci de contacter l'agence.

Consommation énergétique

  • E (270 kWh/m² an)
    E (55 kgCO2/m².an)
    Plus d'info
    270
    55
    55
  • DPE réalisé après le 1er juillet 2021.
  • Entre 920 € TTC / an et 1300 € TTC / an
    Non communiqué

Nos professionnels vous accompagnent

Contactez notre agence !

18 RUE MADEMOISELLE 75015 PARIS 15

Appeler l’agence Tél : 0153686767

* Champs obligatoires

Nous vous informons de l’existence de la liste d’opposition au démarchage téléphonique « BLOCTEL » sur laquelle vous pouvez vous inscrire (https://www.bloctel.gouv.fr).

En complétant le formulaire «CONTACTEZ NOTRE AGENCE », je reconnais expressément que je consens au traitement de mes données personnelles et que je dispose du droit de retirer mon consentement à tout moment en m'adressant à support@fnaim.fr.
En savoir plus sur la gestion de vos données et droits : consulter nos mentions légales, « article 5/ Données à caractère personnel ».

En envoyant ce message, vous acceptez les conditions d'utilisation du site. Plus d'infos