Fnaim.fr
Menu

Réf. AVTE10000018

Achat Terrain 663m² ALLEVARD 38580

70 000 Honoraires charge vendeur

Description du bien

LOT 1 - DERNIER LOT DISPONIBLE ! TERRAIN CONSTRUCTIBLE, VIABILISE ET LIBRE DE CONSTRUCTEUR DE 663 M2.

Pour découvrir ce bien, un seul contact --> L'agence ALPES INVEST au O6 3O 22 89 55 !

L'agence ALPES INVEST a le plaisir de vous proposer en exclusivité ce superbe terrain constructible de 663 m2, idéalement situé sur la charmante commune d'Allevard-les-Bains, à proximité immédiate des commodités, des écoles et des commerces.
Un emplacement donc de choix qui conjugue parfaitement qualité de vie et praticité au quotidien.

Viabilisé et libre de constructeur, ce terrain offre une excellente exposition ainsi qu'une jolie vue dégagée sur les montagnes environnantes, réunissant donc toutes les conditions pour concrétiser un merveilleux projet de vie dans ce tout nouveau lotissement « Le Clos des Moulins ».

Côté caractéristiques techniques :
- Terrain viabilisé (assainissement, eau, électricité, télécommunications),
- Surface de plancher maximale : 200 m2.
- Emprise au sol maximale : 398 m2.

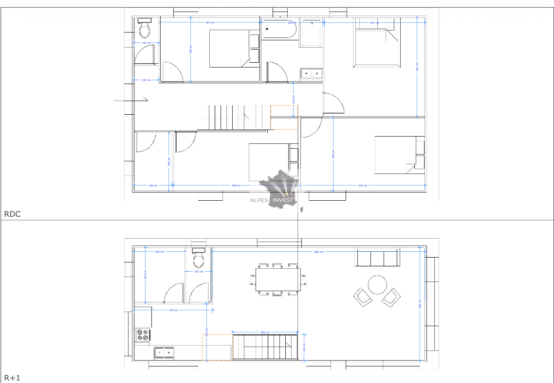
Pour information, un permis de construire a été accordé fin 2022 pour une maison individuelle de type T5, développant une surface de plancher de 130 m2 (projet disponible voir photos ci-jointes).

Rare à la vente, cette parcelle est proposée au prix attractif de 70 000 EUR (honoraires à la charge du vendeur inclus).

Vous souhaitez en savoir plus ou planifier une visite pour mieux vous projeter ?
N'attendez plus, contactez dès maintenant notre conseillère ALPES INVEST, MEOT Adeline au O6 3O 22 89 55.

Etat des risques et pollutions

Les informations sur les risques auxquels ce bien est exposé sont disponibles sur le site Géorisques : www.georisques.gouv.fr.

Caractéristiques du bien

Composition du bien

  • Type de bien : Terrain

Localisation du bien

ALLEVARD (38580) , ISERE (38) - AUVERGNE-RHÔNE-ALPES

Ce bien n'est pas géolocalisé, pour connaitre sa géolocalisation, merci de contacter l'agence.

Nos professionnels vous accompagnent

Contactez notre agence !

1 AVENUE MAURICE FRANCK 73110 LA ROCHETTE

Appeler l’agence Tél : 0476972094

* Champs obligatoires

Nous vous informons de l’existence de la liste d’opposition au démarchage téléphonique « BLOCTEL » sur laquelle vous pouvez vous inscrire (https://www.bloctel.gouv.fr).

En complétant le formulaire «CONTACTEZ NOTRE AGENCE », je reconnais expressément que je consens au traitement de mes données personnelles et que je dispose du droit de retirer mon consentement à tout moment en m'adressant à support@fnaim.fr.
En savoir plus sur la gestion de vos données et droits : consulter nos mentions légales, « article 5/ Données à caractère personnel ».

En envoyant ce message, vous acceptez les conditions d'utilisation du site. Plus d'infos