Fnaim.fr
Menu

Acheter

Exclusivité
Réf. V4690

Achat Maison 5 pièces 103m² LA CHATRE 36400

39 000 Honoraires charge vendeur

4 chambres Jardin Balcon

Description du bien

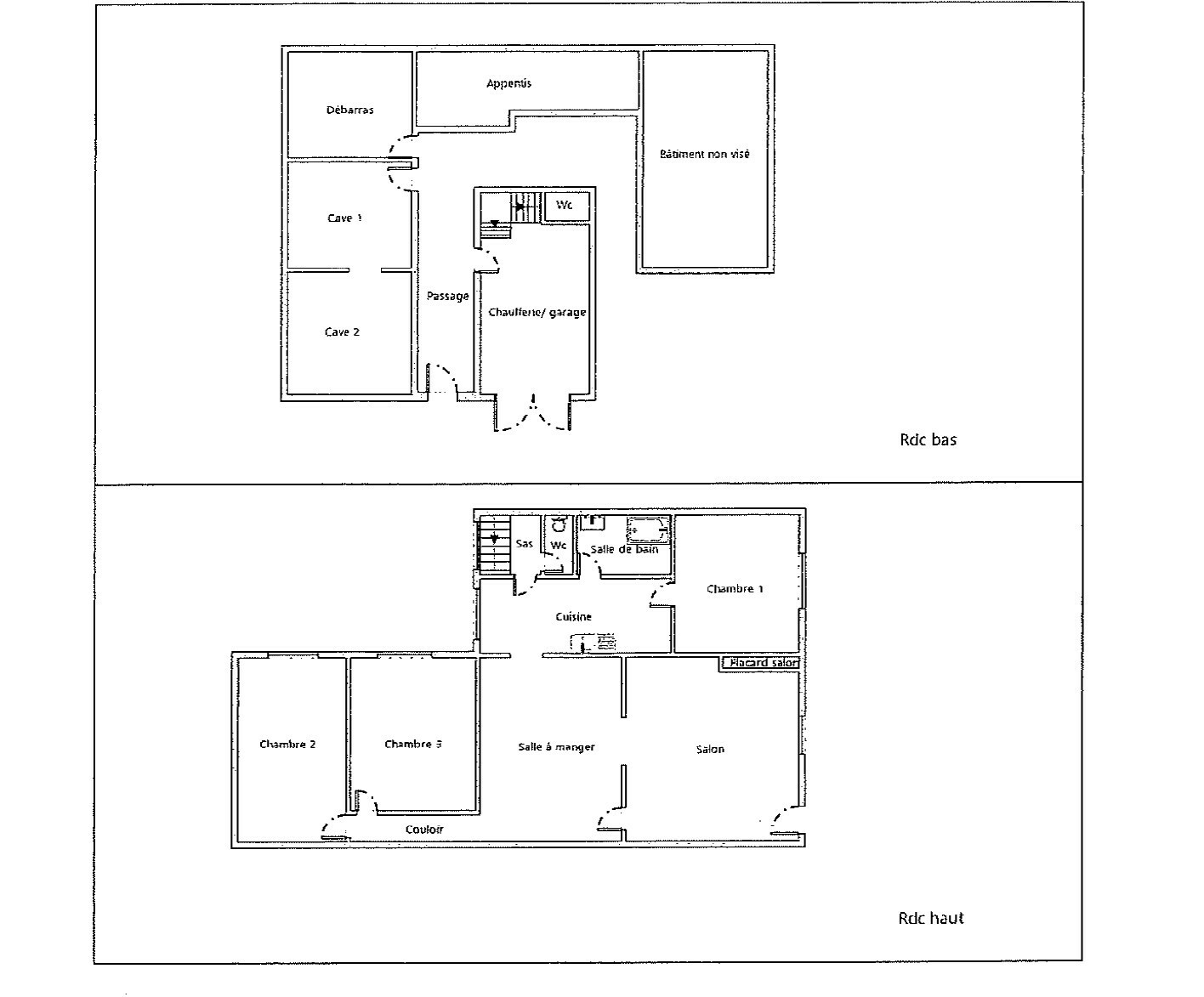
La Châtre (36400). No 7 rue du maquis. Maison de bourg à usage d'habitation mitoyenne des 2 côtés. comprenant Un rez-de-chaussée divisé en : Cuisine, salon (dont l'entrée se fait sur rue) avec placard et cheminée, salle à manger en demi-niveau (dont l'accès se fait du salon) avec un escalier menant aux combles, 3 chambres, salle de bains, toilettes, palier d'accès à la chaufferie et à l'arrière de la maison, Garage avec chaufferie et cuve fioul et passage vers l'arrière de la maison. Un premier étage mansardé divisé en plusieurs greniers non aménagés et non isolés. Un sous-sol divisé en 2 caves dont l'accès se fait par le passage précité.Superficie habitable de 103.36 mètres carrés et superficie au sol de 213.57 m2. Jardin à l'arrière de la maison avec des appentis et des dépendances en très mauvais état. Ensemble à rénover entière: visite HORIZON SUD BERRY IMMOBILIER - Sandra Dubreuil - 06 35 57 46 80 - Agent commercial - RSAC de Châteauroux no894 830 819. parcelle 296 mètres carrés cadastrée section AE numéro 120. rez-de-chaussée: entrée-salon (23.48 m2), salle à manger (19.24 m2), cuisine (11.74 m2), chambre (14.65 m'), salle de bain (3.69 m2), sas et escalier (1.11 M2), toilettes (1.29 m2), couloir (3.40 m2), chambre 2 (11.85 m2), chambre 3 (12.91 m2),chaufferie/garage (20.13 m2). cave 1 (19.99 m'), cave 2 (22.36 m2), atelier, appentis, débarras (25.63 m2). La maison est raccordée à l'assainissement communal.périmètre de protection des monuments historiques ET dans la zone submersible B2 du plan de Prévention des Risques d'Inondation (PPRI).Les prix indiqués s'entendent honoraires d'agence inclus. Frais de notaire en sus.
Logement à consommation énergétique excessive

Etat des risques et pollutions

Les informations sur les risques auxquels ce bien est exposé sont disponibles sur le site Géorisques : www.georisques.gouv.fr.

Caractéristiques du bien

Composition du bien

  • Type d'habitation : Maison
  • Nombre de chambres : 4
  • Nombre de salles de bain : 1
  • Cuisine : Type de cuisine Non communique

Aménagement du bien

  • Cave : Non
  • Garage / Parking : Non
    • Surface habitable : 103 m²

    Localisation du bien

    LA CHATRE (36400) , INDRE (36) - CENTRE-VAL-DE-LOIRE

    Ce bien n'est pas géolocalisé, pour connaitre sa géolocalisation, merci de contacter l'agence.

    Consommation énergétique

    DPE non soumis
    mention indiquée sous la responsabilité de l’agence immobilière

    Nos professionnels vous accompagnent

    Contactez notre agence !

    7 place des Victoires 37230 LUYNES

    Appeler l’agence Tél : 0247401010

    * Champs obligatoires

    Nous vous informons de l’existence de la liste d’opposition au démarchage téléphonique « BLOCTEL » sur laquelle vous pouvez vous inscrire (https://www.bloctel.gouv.fr).

    En complétant le formulaire «CONTACTEZ NOTRE AGENCE », je reconnais expressément que je consens au traitement de mes données personnelles et que je dispose du droit de retirer mon consentement à tout moment en m'adressant à support@fnaim.fr.
    En savoir plus sur la gestion de vos données et droits : consulter nos mentions légales, « article 5/ Données à caractère personnel ».

    En envoyant ce message, vous acceptez les conditions d'utilisation du site. Plus d'infos