Fnaim.fr
Menu

Réf. TTER2577

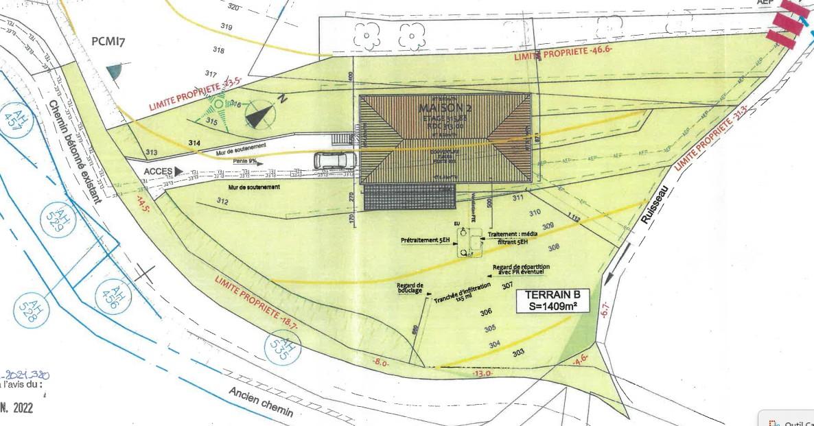
Achat Terrain 1 409m²

70 000 Honoraires charge vendeur

Description du bien

Terrain 1400 m² AVEC VUE à vendre sur Vals Les Bains avec permis pour maison RT 2012 - À seulement 10 minutes d'AUBENAS et à proximité immédiate du centre de VALS-LES-BAINS, charmante ville thermale, découvrez ce beau terrain d'environ 1400 m² situé sur les hauteurs, en position dominante.

Bénéficiant d'une exposition plein sud, il offre une vue dégagée sur la nature environnante, dans un cadre paisible et privilégié.

Le terrain dispose d'un permis de construire déjà accordé pour une maison conforme à la norme RT 2012, vous permettant de concrétiser votre projet rapidement tout en évitant les contraintes actuelles liées à la RE2020.

Les travaux de terrassement ainsi que l'accès ont déjà été réalisés, un véritable gain de temps pour démarrer votre construction.

Les réseaux se trouvent en bordure de parcelle, facilitant les raccordements. Un système d'assainissement individuel est à prévoir.

Idéalement situé, ce terrain allie proximité des commerces, des écoles et des commodités, avec le calme d'un environnement naturel préservé.

Une belle opportunité pour concrétiser votre projet de vie dans un cadre agréable et recherché.

N'hésitez pas à nous contacter pour plus d'informations ou pour organiser une visite. Honoraires à la charge du vendeur.
Vous pouvez consulter les barèmes d'honoraires à l'adresse suivante : https://www.07aasi.fr/nos-honoraires

Etat des risques et pollutions

Les informations sur les risques auxquels ce bien est exposé sont disponibles sur le site Géorisques : www.georisques.gouv.fr.

Caractéristiques du bien

Composition du bien

  • Type de bien : Terrain

Localisation du bien

Ce bien n'est pas géolocalisé, pour connaitre sa géolocalisation, merci de contacter l'agence.

Nos professionnels vous accompagnent

Contactez notre agence !

8 PLACE GENERAL DE GAULLE 07200 AUBENAS

Appeler l’agence Tél : 04 75 35 97 77

* Champs obligatoires

Nous vous informons de l’existence de la liste d’opposition au démarchage téléphonique « BLOCTEL » sur laquelle vous pouvez vous inscrire (https://www.bloctel.gouv.fr).

En complétant le formulaire «CONTACTEZ NOTRE AGENCE », je reconnais expressément que je consens au traitement de mes données personnelles et que je dispose du droit de retirer mon consentement à tout moment en m'adressant à support@fnaim.fr.
En savoir plus sur la gestion de vos données et droits : consulter nos mentions légales, « article 5/ Données à caractère personnel ».

En envoyant ce message, vous acceptez les conditions d'utilisation du site. Plus d'infos