Fnaim.fr
Menu

Visite virtuelle
Réf. VA6641-BIENALAMER

Achat Appartement 3 pièces 68m² PERROS GUIREC 22700

340 000 Honoraires charge vendeur

2 chambres Ascenseur Parking / Garage

Description du bien

L'agence 'MON BIEN A LA MER', spécialiste de l'immobilier neuf sur les Côtes Bretonnes, sélectionne auprès des promoteurs les meilleures opérations aux mêmes prix, sans commission d'agence. Bénéficiez de notre expertise indépendante, et de nos services (aide aux plans, maquette, drone, visite virtuelles). Nous vous présentons ce bien :


Petite résidence de standing en cours de finition sur le Port de Perros Guirec.
Tous commerces à pied, en retrait de la rue, livrée printemps-été 2026.
Frais de notaire réduits.

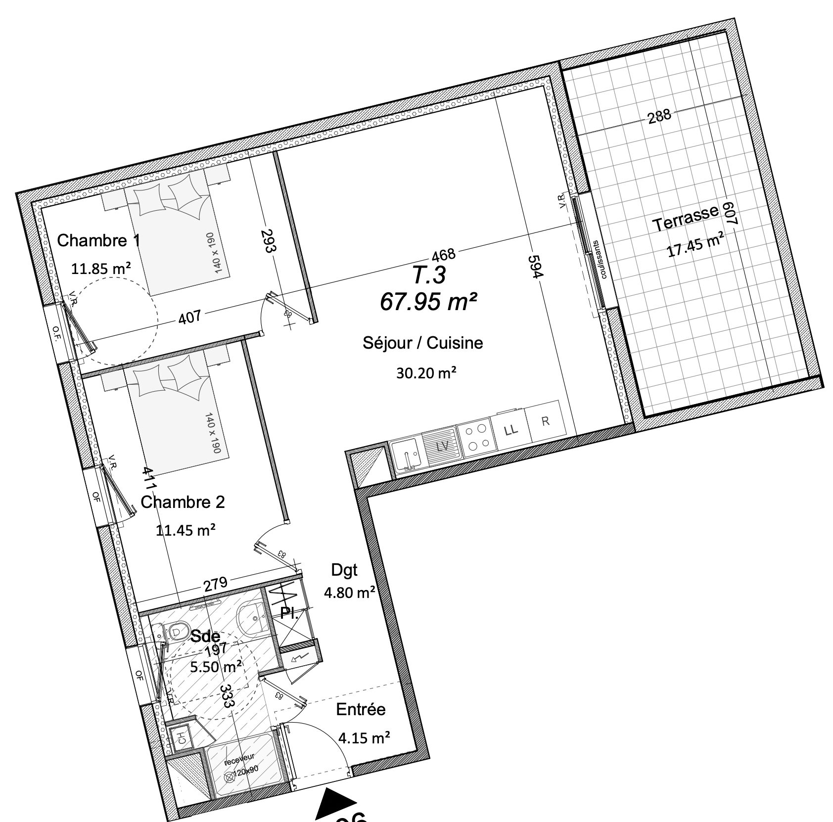
Spacieux T3 traversant au 1er étage en fond de résidence offrant :
- Grande terrasse de 2,88m de profondeur sur 6,07m.
- Deux chambres 11,85-11,45m2
- Séjour 30,2m2
- Salle d'eau douche à l'italienne sèche serviette wc 5,5m2
- Entrée + dégagement + placards 10m2
- Cuisine (meubles haut+bas+plaque de cuisson et hotte (possibilité de l'enlever avec moins value)
Parking

Prestations standing : Parquet dans les chambres, carrelage grand format et faïence, wc suspendus, volets roulants électriques, receveur douche extra-plat, chaudière gaz individuelle, logement connecté, placards aménagés, baies vitrées alu coulissantes.

Nous Consulter pour visites.

Honoraires à la charge du vendeur. Dans une copropriété de 22 lots. Aucune procédure n'est en cours. Non soumis au DPE. Les informations sur les risques auxquels ce bien est exposé sont disponibles sur le site Géorisques : georisques.gouv.fr.

Votre conseiller MON BIEN A LA MER : Gérant - .fr MON BIEN A LA MER
Carte T CPI 2201 2018 000 025 040
RCP ACM IARD B1 7025278

Etat des risques et pollutions

Les informations sur les risques auxquels ce bien est exposé sont disponibles sur le site Géorisques : www.georisques.gouv.fr.

Caractéristiques du bien

Composition du bien

  • Type d'habitation : Appartement
  • Cuisine : Type de cuisine Non communique
  • Nombre de pièce(s) : 3
  • Nombre de chambre(s) : 2
  • Salles de bain : 1

Aménagement du bien

Extérieur

  • Terrasse : Non
  • Balcon : Non

Partie Commune

  • Ascenseur : Oui
  • Surface habitable : 68 m²
  • Parking : Oui

Informations sur la copropriété

  • Bien soumis au statut de la copropriété
  • Nombre de lots : 22
  • Procédure en cours : Non

Localisation du bien

PERROS GUIREC (22700) , COTES-D'ARMOR (22) - BRETAGNE

Ce bien n'est pas géolocalisé, pour connaitre sa géolocalisation, merci de contacter l'agence.

Consommation énergétique

DPE non soumis
mention indiquée sous la responsabilité de l’agence immobilière

Nos professionnels vous accompagnent

Contactez notre agence !

23 Rue des Villeneuves Le Bignon 22400 MORIEUX

Appeler l’agence Tél : 0787285150

* Champs obligatoires

Nous vous informons de l’existence de la liste d’opposition au démarchage téléphonique « BLOCTEL » sur laquelle vous pouvez vous inscrire (https://www.bloctel.gouv.fr).

En complétant le formulaire «CONTACTEZ NOTRE AGENCE », je reconnais expressément que je consens au traitement de mes données personnelles et que je dispose du droit de retirer mon consentement à tout moment en m'adressant à support@fnaim.fr.
En savoir plus sur la gestion de vos données et droits : consulter nos mentions légales, « article 5/ Données à caractère personnel ».

En envoyant ce message, vous acceptez les conditions d'utilisation du site. Plus d'infos