Fnaim.fr
Menu

Exclusivité
Réf. 86876591

Achat Appartement 3 pièces 66m² LYON 6ème

415 000 Honoraires charge vendeur

2 chambres

Description du bien

EXCLUSIVITÉ - BELLECOMBE - Idéalement situé Petite rue de la Viabert, dans un environnement calme et très recherché, ce programme bénéficie d’une localisation stratégique : à moins de 10 minutes à pied des Brotteaux et de Charpennes, et seulement 15 minutes de la Gare Part-Dieu.

Découvrez un projet rare et confidentiel, signé par le constructeur Maison Amboise, composé de seulement 3 appartements en duplex, au sein d’un bâtiment intimiste d’un étage, entièrement situé sur cour intérieure, garantissant tranquillité et sérénité au quotidien.

Livraison prévue : juillet 2026

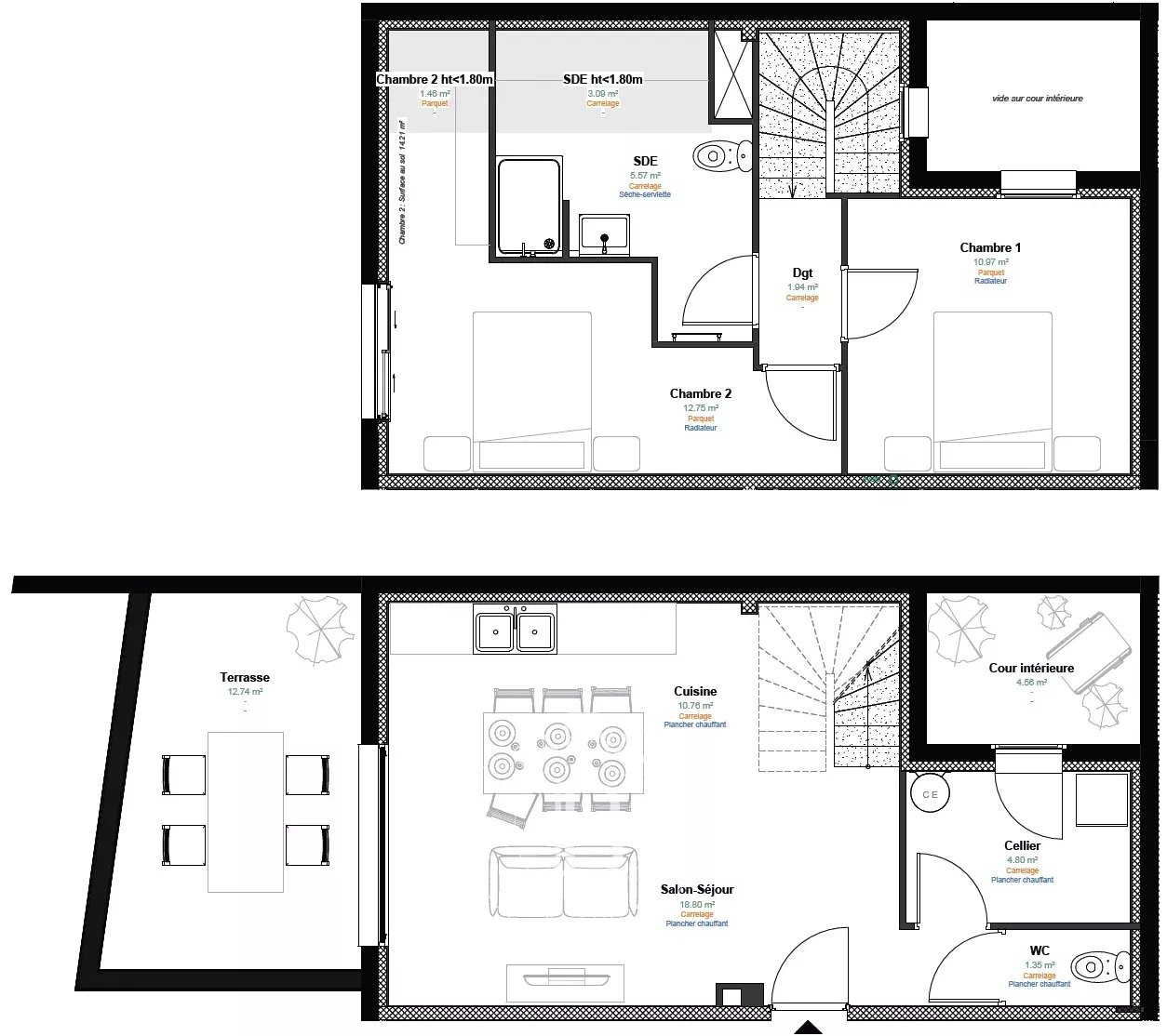
LOT 1 :
Surface : 67 m² (72 m² au sol)

Extérieurs : patio de 5 m² + terrasse de 13 m² exposée Ouest

Au rez-de-chaussée :
• Une belle pièce de vie avec cuisine ouverte de 30 m² avec accès à la terrasse
• Un cellier fonctionnel de 5 m²


À l’étage :
• Deux chambres confortables (13 m² et 11 m²)
• Une salle d’eau

Les avantages de ce bien :
• Confort thermique et phonique dernière génération
• Faibles consommations énergétiques (normes actuelles)
• Garantie constructeur (décennale, parfait achèvement…)
• Aucun travaux à prévoir
• Bien optimisé et fonctionnel

Prestations de qualité et...

Etat des risques et pollutions

Les informations sur les risques auxquels ce bien est exposé sont disponibles sur le site Géorisques : www.georisques.gouv.fr.

Caractéristiques du bien

Composition du bien

  • Type d'habitation : Appartement
  • Cuisine : Type de cuisine Non communique
  • Nombre de pièce(s) : 3
  • Nombre de chambre(s) : 2

Aménagement du bien

Extérieur

  • Terrasse : Non
  • Balcon : Non

Partie Commune

  • Ascenseur : Non
  • Surface habitable : 66 m²

Informations sur la copropriété

  • Bien soumis au statut de la copropriété
  • Nombre de lots : 20
  • Procédure en cours : Non

Localisation du bien

LYON 06 (69006) , RHONE (69) - AUVERGNE-RHÔNE-ALPES

Consommation énergétique

DPE non soumis
mention indiquée sous la responsabilité de l’agence immobilière

Nos professionnels vous accompagnent

Contactez notre agence !

14 Quai Général Sarrail 69006 LYON 06

Appeler l’agence Tél : +33 4 78 15 90 90

* Champs obligatoires

Nous vous informons de l’existence de la liste d’opposition au démarchage téléphonique « BLOCTEL » sur laquelle vous pouvez vous inscrire (https://www.bloctel.gouv.fr).

En complétant le formulaire «CONTACTEZ NOTRE AGENCE », je reconnais expressément que je consens au traitement de mes données personnelles et que je dispose du droit de retirer mon consentement à tout moment en m'adressant à support@fnaim.fr.
En savoir plus sur la gestion de vos données et droits : consulter nos mentions légales, « article 5/ Données à caractère personnel ».

En envoyant ce message, vous acceptez les conditions d'utilisation du site. Plus d'infos