Fnaim.fr
Menu

Réf. 86925047

Achat Local commercial 1 017m² REMIRE MONTJOLY 97354

3 560 655 Honoraires charge vendeur

Description du bien

Réservez votre rendez-vous grâce au lien suivant : https://plato.immo/c/D2WG

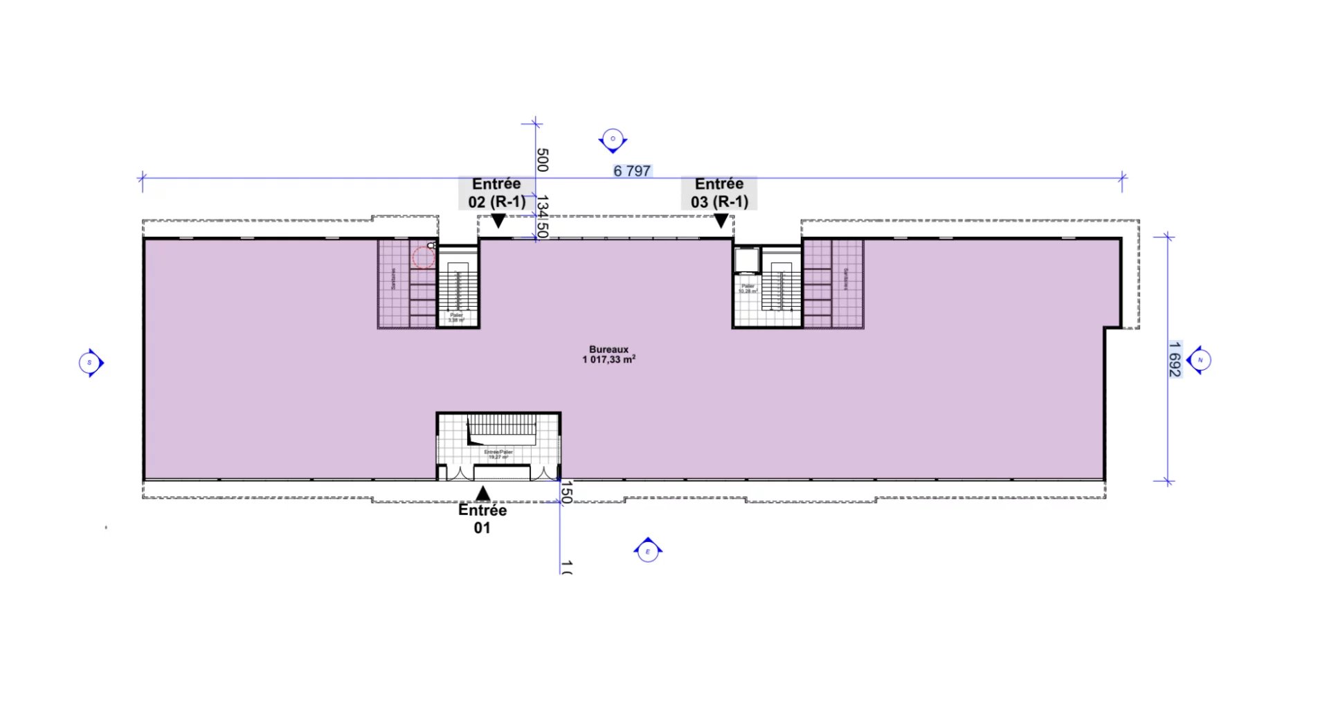
À Rémire-Montjoly, au cœur du secteur dynamique d’Attila Cabassou, découvrez une opportunité exceptionnelle avec ce local commercial de 1 017 m² au re-de-chaussée au sein de la résidence ITHACA.

Idéalement situé, à proximité immédiate de la pharmacie, et à seulement 15 minutes de l’Hyper U et du lycée Léon Gontran Damas, ce bien bénéficie d’un emplacement stratégique à fort passage, parfait pour développer votre activité.

La résidence sera également située en face d’un futur groupe scolaire comprenant un collège et un lycée, garantissant un flux régulier et une forte attractivité pour votre activité.

Ce local offre de très beaux volumes et une grande modularité, permettant d’accueillir tout type de projet : commerce, bureaux, showroom, espace de services ou activité professionnelle. Sa surface généreuse de 1 017 m² vous offre une liberté totale d’aménagement pour concrétiser vos ambitions.

Une opportunité unique pour implanter ou développer votre activité dans un secteur recherché.

Livraison prévue au 4e trimestre 2028.

Répartition du programme :
- 2 locaux commerciaux
- 10...

Etat des risques et pollutions

Les informations sur les risques auxquels ce bien est exposé sont disponibles sur le site Géorisques : www.georisques.gouv.fr.

Caractéristiques du bien

Composition du bien

  • Surface totale : 1017 m²

Consommation énergétique

DPE non soumis
mention indiquée sous la responsabilité de l’agence immobilière

Nos professionnels vous accompagnent

Contactez notre agence !

87 Lotissement BENEY 97300 CAYENNE

Appeler l’agence Tél : +594 5 94 10 62 20

* Champs obligatoires

Nous vous informons de l’existence de la liste d’opposition au démarchage téléphonique « BLOCTEL » sur laquelle vous pouvez vous inscrire (https://www.bloctel.gouv.fr).

En complétant le formulaire «CONTACTEZ NOTRE AGENCE », je reconnais expressément que je consens au traitement de mes données personnelles et que je dispose du droit de retirer mon consentement à tout moment en m'adressant à support@fnaim.fr.
En savoir plus sur la gestion de vos données et droits : consulter nos mentions légales, « article 5/ Données à caractère personnel ».

En envoyant ce message, vous acceptez les conditions d'utilisation du site. Plus d'infos