Fnaim.fr
Menu

Exclusivité
Réf. WYXW-PKC-R3V

Achat Appartement 2 pièces 20m² PARIS 20ème

185 000 Honoraires charge acquéreur inclus

1 chambre

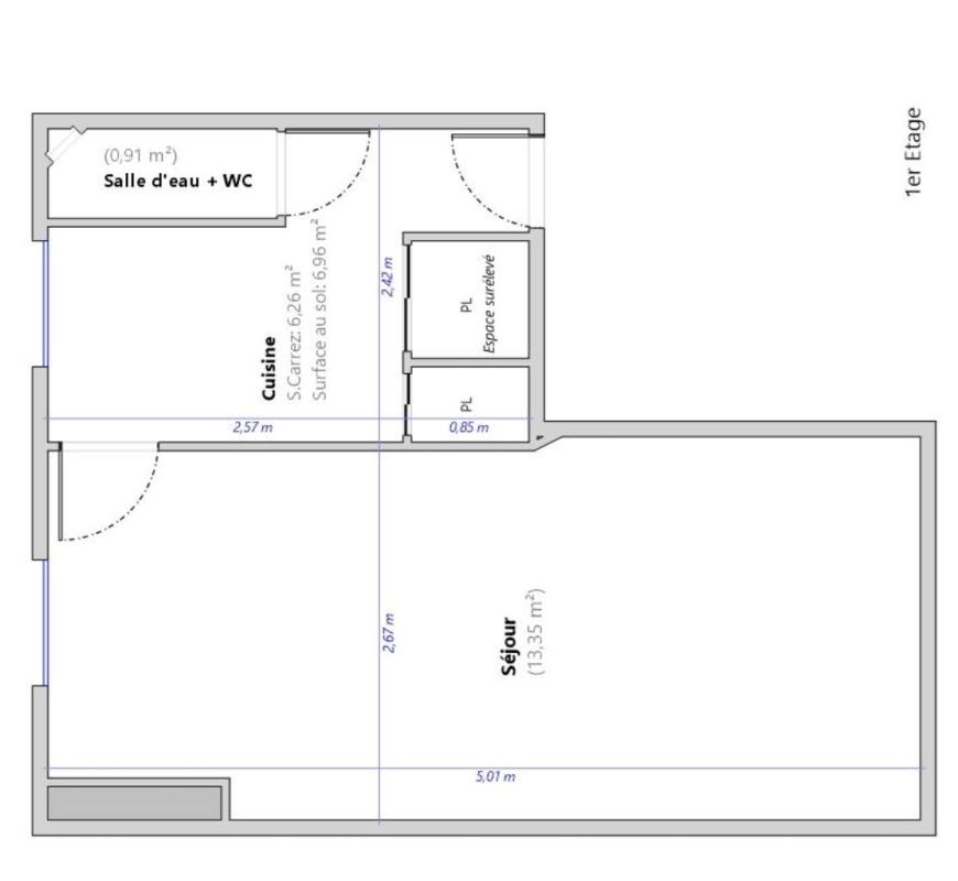
Description du bien

Situé au Impasse Rolleboise - Rue des Vignoles 75020 Au sein d'une impasse paisible cet appartement de deux pièces bénéficie d'une exposition Sud-Ouest offrant une belle luminosité tout au long de la journée.
D'une surface de 20,52 m² loi Carrez 21,37 m² au sol il se trouve au 1er étage d'un immeuble ancien. Il se compose d'une salle d'eau avec WC, d'une cuisine, une pièce de vie ou de nuit ! Quelques travaux sont à prévoir vous permettant d'aménager le bien selon vos envies. Vous profiterez d'un environnement agréable avec une véritable vie de quartier et des commerces et marchés à proximité.
DPE D, charges mensuelles de 65 € calme et lumineux ce bien est idéal pour un premier achat ou un investissement locatif ! Visitez le sans trop tarder...
Référence agence : 4725

Etat des risques et pollutions

Les informations sur les risques auxquels ce bien est exposé sont disponibles sur le site Géorisques : www.georisques.gouv.fr.

Caractéristiques du bien

Composition du bien

  • Type d'habitation : Appartement
  • Cuisine : Simple
  • Nombre de pièce(s) : 2
  • Nombre de chambre(s) : 1
  • Salles de bain : 1

Aménagement du bien

Extérieur

  • Terrasse : Non
  • Balcon : Non

Partie Commune

  • Ascenseur : Non
  • Surface habitable : 20 m²

Localisation du bien

PARIS 20 (75020) , PARIS (75) - ILE-DE-FRANCE

Consommation énergétique

  • D (255 kWh/m² an)
    B (9 kgCO2/m².an)
    Plus d'info
    255
    9
    9
  • DPE réalisé après le 1er juillet 2021.
  • Entre 610 € TTC / an et 870 € TTC / an
    Non communiqué

Nos professionnels vous accompagnent

Contactez notre agence !

33 BOULEVARD DE CHARONNE 75011 PARIS 11

Appeler l’agence Tél : 01 55 25 52 00

* Champs obligatoires

Nous vous informons de l’existence de la liste d’opposition au démarchage téléphonique « BLOCTEL » sur laquelle vous pouvez vous inscrire (https://www.bloctel.gouv.fr).

En complétant le formulaire «CONTACTEZ NOTRE AGENCE », je reconnais expressément que je consens au traitement de mes données personnelles et que je dispose du droit de retirer mon consentement à tout moment en m'adressant à support@fnaim.fr.
En savoir plus sur la gestion de vos données et droits : consulter nos mentions légales, « article 5/ Données à caractère personnel ».

En envoyant ce message, vous acceptez les conditions d'utilisation du site. Plus d'infos