Fnaim.fr
Menu

Réf. 1046V874M

Achat Maison 6 pièces 146m² L AIGLE 61300

296 000 Honoraires charge acquéreur inclus

3 chambres Jardin Parking / Garage

Description du bien

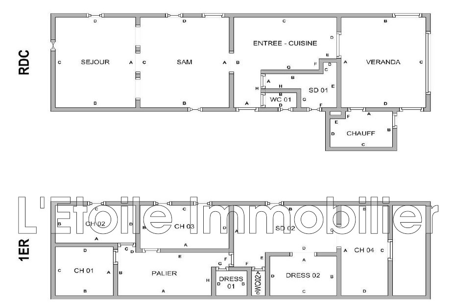
L'Étoile immobilier, vous propose de découvrir cette confortable maison restaurée, située à 7 kms de L'AIGLE, ville avec tous commerces, gare SNCF et écoles. Au rez-de-chaussée : entrée ouverte sur cuisine aménagée et équipée (plaque, hotte, four, lave-vaisselle, réfrigérateur), salle d'eau, WC, salle à manger lumineuse avec vue sur la mare et pièce de séjour de 47 m² avec cheminée ; à l'étage : palier desservant un bureau, deux chambres, un dressing, un WC et une chambre avec salle d'eau et dressing privatif. Chauffage par pompe à chaleur AIR/EAU. Chauffe-eau thermodynamique. Assainissement par micro-station. Nombreuses dépendances : chenil, double garage, bûcher, chalet, préau, cave, garage pour camping-car et voiture avec mezzanine. Le tout sur 4687 m² de terrain arboré agrémenté d'une belle mare.

Etat des risques et pollutions

Les informations sur les risques auxquels ce bien est exposé sont disponibles sur le site Géorisques : www.georisques.gouv.fr.

Caractéristiques du bien

Composition du bien

  • Type d'habitation : Maison
  • Nombre de chambres : 3
  • Cuisine : Equipée

Aménagement du bien

  • Cave : Non
  • Garage / Parking : Oui
    • Surface habitable : 146 m²
    • Parking : Oui

    Localisation du bien

    L AIGLE (61300) , ORNE (61) - NORMANDIE

    Ce bien n'est pas géolocalisé, pour connaitre sa géolocalisation, merci de contacter l'agence.

    Consommation énergétique

    • C (153 kWh/m² an)
      A (4 kgCO2/m².an)
      Plus d'info
      153
      4
      4
    • DPE réalisé après le 1er juillet 2021.
    • Entre 1020 € TTC / an et 1440 € TTC / an
      Non communiqué

    Nos professionnels vous accompagnent

    Contactez notre agence !

    26, Place du Général de Gaulle 61400 MORTAGNE AU PERCHE

    Appeler l’agence Tél : 02.33.25.01.01

    * Champs obligatoires

    Nous vous informons de l’existence de la liste d’opposition au démarchage téléphonique « BLOCTEL » sur laquelle vous pouvez vous inscrire (https://www.bloctel.gouv.fr).

    En complétant le formulaire «CONTACTEZ NOTRE AGENCE », je reconnais expressément que je consens au traitement de mes données personnelles et que je dispose du droit de retirer mon consentement à tout moment en m'adressant à support@fnaim.fr.
    En savoir plus sur la gestion de vos données et droits : consulter nos mentions légales, « article 5/ Données à caractère personnel ».

    En envoyant ce message, vous acceptez les conditions d'utilisation du site. Plus d'infos