Fnaim.fr
Menu

Réf. 1004TC439122TCL

Achat Maison 4 pièces 120m² TOUSSIEU 69780

499 000 Honoraires charge vendeur

3 chambres Jardin Parking / Garage

Description du bien

Offrez-vous la maison de vos rêves, idéalement située à proximité des commerces, avec le calme unique d'un village aux portes de Lyon.

(69780) Toussieu, Je vous propose, dans un village plein de charme, animé de commerces et entouré de nature, une maison de 120,45 m² avec un jardin de 240 M², une terrasse de 10,75 m². Vous bénéficiez aussi de 2 places de parking. Lot 7008

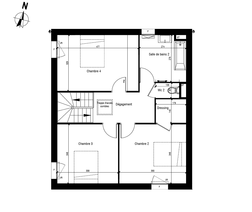
La maison offre au rez-de-chaussée, une cuisine ouverte sur un séjour de 37,70 m², donnant une pièce aérée et conviviale et s'ouvrant sur la terrasse et le jardin, ce qui apporte un maximum de luminosité à votre intérieur.
Vous trouverez également une chambre de 9,40 M², une salle de bain de 4,35 M², une buanderie et un WC séparé. Vous disposerez aussi d'un garage de 14,20 M².

A l'étage, il y a trois belles chambres de 12,50 M² à 16.25 M² dont une avec un dressing, une belle salle de bain de 7,35 m² et un WC séparé.

Tout ceci dans un style contemporain où les matériaux et les équipements ont été choisis pour vous offrir un confort moderne et un chez-soi agréable à vivre.

Produit unique et très rare sur le secteur.
Livraison : 3ème trimestre 2026 (frais de notaire réduits)
DPE non requis
Prix de vente : 499.000 euros
Mandat réf: 439122
Informations, réservations auprès de votre conseiller commercialisateur Coll Thierry pour ineuf-com au 06 62 37 23 23.
Pour visiter et vous accompagner dans votre projet, contactez Thierry Coll, agissant sous le statut conseiller immobilier indépendant auprès de la SAS Propriétés Privées au
06 62 37 23 23 ou par courriel à t.coll@proprietes-privees.com.
RCS 487 624 777 - Le professionnel vous conseille, garantit et sécurise votre projet immobilier.
Cette présente annonce a été rédigée sous la responsabilité éditoriale de Coll Thierry agissant sous le statut d'agent commercial immatriculé au RSAC BREST 878921915 auprès de la SAS PROPRIETES PRIVEES, Réseau national immobilier, au capital de 40000 euros, 44 ALLÉE DES CINQ CONTINENTS - ZAC LE CHÊNE FERRÉ, 44120 VERTOU, RCS Nantes n° 487 624 777 00040,
Copropriété de 35 lots - dont 35 lots habitation.

Etat des risques et pollutions

Les informations sur les risques auxquels ce bien est exposé sont disponibles sur le site Géorisques : www.georisques.gouv.fr.

Caractéristiques du bien

Composition du bien

  • Type d'habitation : Maison
  • Nombre de chambres : 3
  • Nombre de salles de bain : 1
  • Cuisine : Simple

Aménagement du bien

  • Cave : Non
  • Garage / Parking : Oui
    • Surface habitable : 120 m²
    • Parking : Oui

    Informations sur la copropriété

    • Bien soumis au statut de la copropriété
    • Nombre de lots : 35
    • Procédure en cours : Non

    Localisation du bien

    TOUSSIEU (69780) , RHONE (69) - AUVERGNE-RHÔNE-ALPES

    Ce bien n'est pas géolocalisé, pour connaitre sa géolocalisation, merci de contacter l'agence.

    Consommation énergétique

    DPE non soumis
    mention indiquée sous la responsabilité de l’agence immobilière

    Nos professionnels vous accompagnent

    Contactez notre agence !

    44 Allée des Cinq Continents. ZAC Le Chêne Ferré 44120 VERTOU

    Appeler l’agence Tél : 06 62 37 23 23

    * Champs obligatoires

    Nous vous informons de l’existence de la liste d’opposition au démarchage téléphonique « BLOCTEL » sur laquelle vous pouvez vous inscrire (https://www.bloctel.gouv.fr).

    En complétant le formulaire «CONTACTEZ NOTRE AGENCE », je reconnais expressément que je consens au traitement de mes données personnelles et que je dispose du droit de retirer mon consentement à tout moment en m'adressant à support@fnaim.fr.
    En savoir plus sur la gestion de vos données et droits : consulter nos mentions légales, « article 5/ Données à caractère personnel ».

    En envoyant ce message, vous acceptez les conditions d'utilisation du site. Plus d'infos