Fnaim.fr
Menu

Visite virtuelle
Réf. 445140SARZ

Achat Appartement 3 pièces 67m² PARIS 15ème

572 000 Honoraires charge acquéreur inclus : 4% TTC (549120 € hors honoraires)

2 chambres

Description du bien

Un appartement aux volumes exceptionnels et ouvert sur la nature :
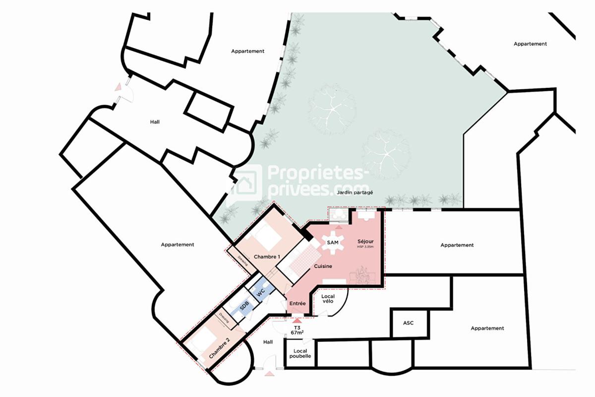
En rez-de-jardin, ce 3 pièces de 67,4 m² séduit par sa hauteur sous plafond impressionnante et rare de 3,35 m.

A proximité immédiate de la Seine, de la Tour Eiffel et de Beaugrenelle, découvrez ce bien rare niché au calme absolu, au sein d'un ensemble architectural emblématique des années 1990 .

- Au Rez-de-jardin, à proximité immédiaté du hall d'entrée et du local vélo
- Un séjour lumineux avec cuisine ouverte et espace salle à manger de 30m2
- Une distribution optimisée avec un coin nuit distinct :
- Deux chambres (12m2 et 15m2) équipées d'un dressing intégré portes coulissantes
- Une cave au-sous complète ce bien
- Local vélo à proximité

Le séjour s'ouvre sur un jardin de copropriété arboré, prolongé par une agréable terrasse en bois, véritable pièce de vie extérieure. Accessible par une porte-fenêtre.
L'exposition Est et les arbres apportent une atmosphère paisible, intime et verdoyante.

- Charges annuelles: 2700 euros
- Taxe foncière: 1 509 euros
- Pas de procédure en cours

Sols :
- Séjour : Parquet chêne massif mozaïque
- Chambres : Parquet
- Cuisine, Salle de bain, WC - Carrelage

Equipements :
- Cuisine équipée : Frigo, Congélateur, Lave-vaisselle, Evier, Four, Plaques, Hotte
- Porte d'entrée sécurisée
- Volets-roulants méchaniques sur toutes les fenêtres
- Volets eléctriques sur la porte-fenêtre

Transports :
- Métro Javel Ligne 10 (3min)
- RER C Javel (3min)
- Métro Félix Faure Ligne 8 (15min)
- Station Vélib (1min)

Espaces verts :
- Parc André Citroën - Ballon de Paris (4min)
-Île aux cygnes (15min)
- Parc Sainte-Périne (15min)

Commerces etc :
- Galeries Lafayette Beaugrenelle (15min)
- Hôpital Européen Georges Pompidou (9min)
- Radio France (15min)

Les atouts :
- Extérieur rare à Paris
- Calme absolu
- Volumes exceptionnels
- Résidence de standing avec façade en céramique typique
- Adresse recherchée à proximité immédiate des transports et commodités
- Parfait pour profession libérale

Un bien singulier, alliant nature, lumière et emplacement premium, idéal pour un cadre de vie unique au coeur de la capitale.

Prix de vente 572 000 euros dont 4,00 % honoraire inclus à la charge de l'acquéreur soit prix net vendeur 550 000 euros.

DPE E GES C
Montant estimé des dépenses annuelles d'énergie pour un usage standard entre 1770 et 2410 euros indexées aux années 2021, 2022 et 2023.

Mandat référence 445140

Pour visiter et vous accompagner dans votre projet, contactez Sarah ASLANI, au 0695603457 ou, par courriel à sa.aslani@proprietes-privees.com.
Selon l'article L.561.5 du Code Monétaire et Financier, pour l'organisation de la visite, la présentation d'une pièce d'identité vous sera demandée.
Cette présente annonce a été rédigée sous la responsabilité éditoriale de Sarah ASLANI agissant sous le statut d'agent commercial immatriculé au RSAC PARIS 934159542 auprès de SAS PROPRIETES PRIVEES, au capital de 44 920 euros, ZAC LE CHÊNE FERRÉ - 44 ALLÉE DES CINQ CONTINENTS 44120 VERTOU; SIRET 487 624 777 00040, RCS Nantes. Carte Professionnelle Transactions sur immeubles et fonds de commerce (T) et Gestion immobilière (G) n°CPI 4401 2016 000 010 388 délivrée par la CCI Nantes - Saint Nazaire. Compte séquestre n°30932508467 BPA SAINT-SEBASTIEN-SUR-LOIRE (44230). Garantie GALIAN-SMABTP - 89 rue de la Boétie, 75008 Paris - n°28137 J pour 2 000 000 euros pour T et 120 000 euros pour G. Assurance responsabilité civile professionnelle par GALIAN-SMABTP n° de police 28137.J
(4.00 % honoraires TTC à la charge de l'acquéreur.)
Copropriété de 318 lots.

Charges annuelles : 2700 euros.
Sarah ASLANI (EI) Agent Commercial - Numéro RSAC : PARIS 934159542 - .
Les informations sur les risques auxquels ce bien est exposé sont disponibles sur le site Géorisques : www. georisques. gouv. fr

Etat des risques et pollutions

Les informations sur les risques auxquels ce bien est exposé sont disponibles sur le site Géorisques : www.georisques.gouv.fr.

Caractéristiques du bien

Composition du bien

  • Type d'habitation : Appartement
  • Cuisine : Simple
  • Nombre de pièce(s) : 3
  • Nombre de chambre(s) : 2

Aménagement du bien

Extérieur

  • Terrasse : Non
  • Balcon : Non

Partie Commune

  • Ascenseur : Non
  • Surface habitable : 67 m²

Informations sur la copropriété

  • Bien soumis au statut de la copropriété
  • Nombre de lots : 318
  • Quote part charges courantes : 2700 €/an
  • Procédure en cours : Non

Localisation du bien

PARIS 15 (75015) , PARIS (75) - ILE-DE-FRANCE

Ce bien n'est pas géolocalisé, pour connaitre sa géolocalisation, merci de contacter l'agence.

Consommation énergétique

  • E (280 kWh/m² an)
    C (11 kgCO2/m².an)
    Plus d'info
    280
    11
    11
  • DPE réalisé après le 1er juillet 2021.
  • Entre 1770 € TTC / an et 2410 € TTC / an
    Non communiqué

Nos professionnels vous accompagnent

Contactez notre agence !

44 Allée des Cinq Continents. ZAC Le Chêne Ferré 44120 VERTOU

Appeler l’agence Tél : 06 95 60 34 57

* Champs obligatoires

Nous vous informons de l’existence de la liste d’opposition au démarchage téléphonique « BLOCTEL » sur laquelle vous pouvez vous inscrire (https://www.bloctel.gouv.fr).

En complétant le formulaire «CONTACTEZ NOTRE AGENCE », je reconnais expressément que je consens au traitement de mes données personnelles et que je dispose du droit de retirer mon consentement à tout moment en m'adressant à support@fnaim.fr.
En savoir plus sur la gestion de vos données et droits : consulter nos mentions légales, « article 5/ Données à caractère personnel ».

En envoyant ce message, vous acceptez les conditions d'utilisation du site. Plus d'infos