Fnaim.fr
Menu

Visite virtuelle
Exclusivité
Réf. DOM30546

Achat Appartement 3 pièces 68m² MONTAUBAN 82000

148 000 Honoraires charge acquéreur inclus : 4,4% TTC (141503 € hors honoraires)

2 chambres

Description du bien

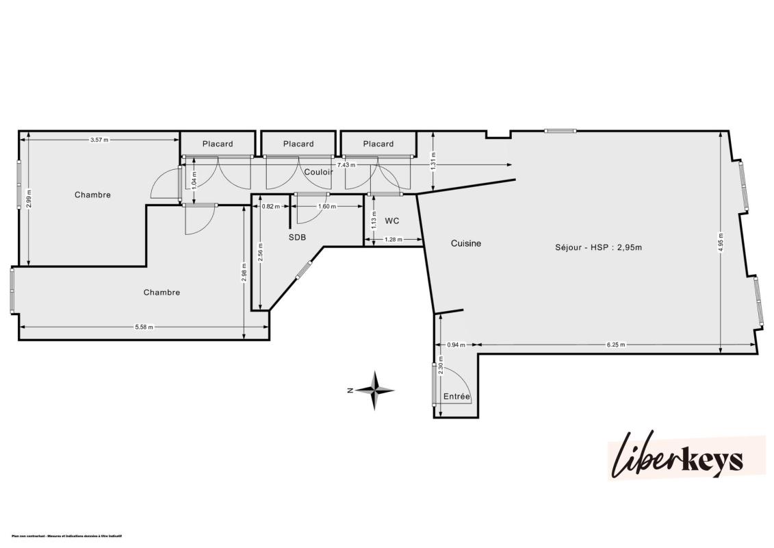
Liberkeys vous propose, en exclusivité, ce bel appartement 3 pièces de 64 m² loi Carrez, idéal pour un premier achat ou un investissement locatif à Montauban. Implanté dans un quartier pratique et recherché, ce bien se distingue par un séjour généreux de 31 m² qui offre de belles possibilités d'aménagement (espace salon, salle à manger et cuisine ouverte). L'entrée de 9 m² crée une circulation fluide, puis deux chambres (10 m² et 7 m²) s'adaptent aussi bien à une vie de famille qu'à un espace télétravail. Salle de bains fonctionnelle (3 m²) et WC séparés (1 m²) complètent ce plan efficace ainsi que de nombreux rangements.

Luminosité, volume et distribution optimisée sont les atouts de cet appartement facile à personnaliser.
À proximité : commerces, écoles et services municipaux, facilité d'accès aux transports et aux espaces verts -- un emplacement pratique pour la vie quotidienne à Montauban.

Informations financières : taxe foncière 1 100 € ; charges de copropriété 1 380 €/an (dont 600€ prévu pour travaux réalisés cette année).
Opportunité rare sur le marché local : prix attractif pour la surface et le potentiel proposés.

Ce bien vous plaît ? Visitez-le virtuellement en 3D sur le site de Liberkeys ou contactez directement votre conseiller. Fusina Cassandra, agent commercial immatriculé au RSAC de Toulouse sous le numéro 842 420 820. Référence annonce : DOM30546. Date de réalisation du diagnostic : 20/12/2021. Les honoraires sont à la charge de l'acheteur.

Etat des risques et pollutions

Les informations sur les risques auxquels ce bien est exposé sont disponibles sur le site Géorisques : www.georisques.gouv.fr.

Caractéristiques du bien

Composition du bien

  • Type d'habitation : Appartement
  • Cuisine : Simple
  • Nombre de pièce(s) : 3
  • Nombre de chambre(s) : 2
  • Salles de bain : 1

Aménagement du bien

Extérieur

  • Terrasse : Non
  • Balcon : Non

Partie Commune

  • Ascenseur : Non
  • Surface habitable : 68 m²

Informations sur la copropriété

  • Bien soumis au statut de la copropriété
  • Nombre de lots : 8
  • Quote part charges courantes : 1380 €/an
  • Procédure en cours : Non

Localisation du bien

MONTAUBAN (82000) , TARN-ET-GARONNE (82) - OCCITANIE

Consommation énergétique

  • C (143 kWh/m² an)
    B (10 kgCO2/m².an)
    Plus d'info
    143
    10
    10
  • DPE réalisé après le 1er juillet 2021.
  • Entre 1380 € TTC / an et 1920 € TTC / an
    Non communiqué

Nos professionnels vous accompagnent

Contactez notre agence !

20 RUE DE MONTHOLON 75009 PARIS 09

Appeler l’agence Tél : 06 78 27 58 94

* Champs obligatoires

Nous vous informons de l’existence de la liste d’opposition au démarchage téléphonique « BLOCTEL » sur laquelle vous pouvez vous inscrire (https://www.bloctel.gouv.fr).

En complétant le formulaire «CONTACTEZ NOTRE AGENCE », je reconnais expressément que je consens au traitement de mes données personnelles et que je dispose du droit de retirer mon consentement à tout moment en m'adressant à support@fnaim.fr.
En savoir plus sur la gestion de vos données et droits : consulter nos mentions légales, « article 5/ Données à caractère personnel ».

En envoyant ce message, vous acceptez les conditions d'utilisation du site. Plus d'infos